PRD Albury-Wodonga Suite 3, Ground Floor, 429 Swift Street Albury, NSW, 2640 02 6021 0442
Request An Appraisal

44 Allan Street
henty
NSW, 2658

$398,000

listing rooms 3
listing bathrooms 1
listing parking 1

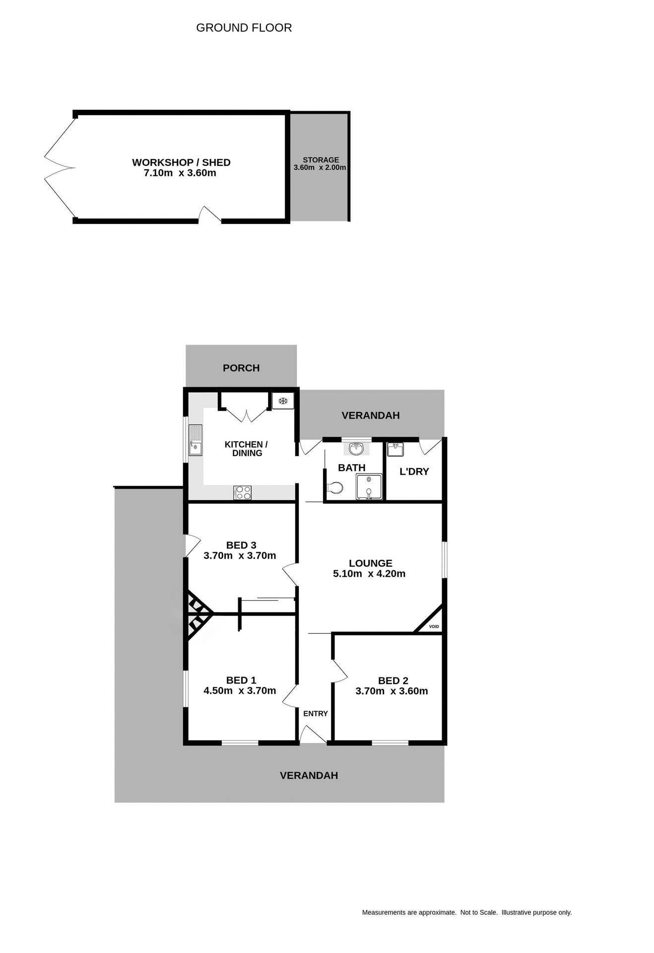
CHARACTER FILLED - LARGE CORNER ALLOTMENT

With its striking red brick charm and beautiful bullnose verandah, 44 Allan Street presents wonderful character features that welcome you through the front gate and into the home.

Set in the inviting township of Henty, the property sits on a generous corner allotment of approximately 1,012m2 and further features:

- Three well sized bedrooms; two with robes.
- Central lounge room with pressed metal ceilings, also featured in the bedrooms.
- An updated kitchen with ample cabinetry and electric cooking.
- A practical bathroom and separate laundry.
- Split system cooling / heating in the lounge and master bedroom.
- Single shed to the rear yard.
- Currently tenanted at $390 per week until 6/05/2026.

Council Rates: $1,015.21 approximate per annum.
Water Rates: $198.00 approximate per annum plus consumption.

Disclaimer: All information provided has been gathered with care from sources believed to be reliable; however, neither the vendor nor the agent makes any warranty as to its accuracy, completeness, or currency. Interested parties should not rely solely on these particulars and are advised to conduct their own independent enquiries, inspections, and verification to satisfy themselves of all relevant details.

Agents

Nearby Schools

About henty

median House price

380000

suburb growth

20.8%

median House rent

390

suburb rental yield

5.3%

Similar Properties

Source: Suburb Flyover Report Series, APM Pricefinder. PRD does not give any warranty in relation to the accuracy of the information contained in this report. If you intend to rely upon the information contained herein, you must take note that the Information, figures and projections have been provided by various sources and have not been verified by us. We have no belief one way or the other in relation to the accuracy of such information, figures and projections. PRD will not be liable for any loss or damage resulting from any statement, figure, calculation or any other information that you rely upon that is contained in the material. Prepared by PRD Research © All medians and volumes are calculated by PRD Research. Use with written permission only. All other responsibilities disclaimed.

Floorplan 1

Listing Enquiry

Listing Enquiry

1
2
3

Your Details

1
2
3

Your Enquiry

This site is protected by reCAPTCHA and the Google Privacy Policy and Terms of Service apply.

There was an error sending your enquiry. Please fill all required fields or try again later.

1
2
3

Thank you for your enquiry!

We look forward to assisting you.

Explore

PRD

 Connect with us

arrow