PRD Bendigo 03 5444 0344
PRD Castlemaine 03 5473 4129
Request An Appraisal

4 Mallee Place
epsom
VIC, 3551

LEASED

listing rooms 3
listing bathrooms 2
listing parking 2

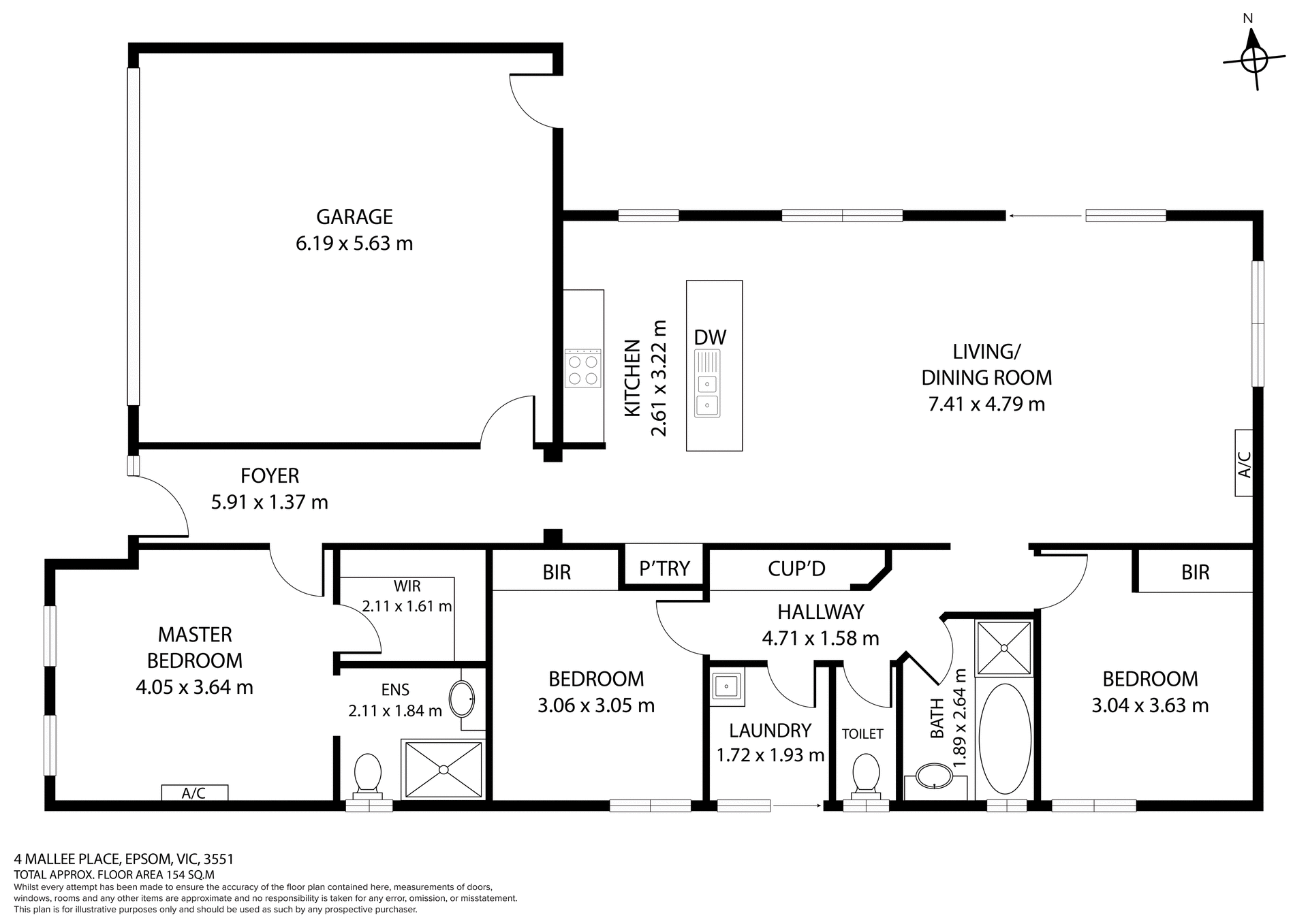
Neat 3-Bedroom, 2-Bathroom Home

PRD EXPRESS APPROVAL PROPERTY - This property is available for our express application process. Simply inspect the property in the comfort of your home with the 3D scan attached (in the last photo). Once you have reviewed all photos and the floor plan simply attach your application via the apply online button. Your application will be reviewed within 24 hours. If you are successful a private inspection will be schedule to confirm and sign lease agreements.

This neat 3-bedroom, 2-bathroom home offers a bright, open-concept living space perfect for family living. The main bedroom offers a walk in robe and ensuite with large shower for your convenience. The two remaining bedrooms are a good size and feature built in robes and quick access to the central bathroom and separate toilet. At the rear of the home you will find the open plan kitchen that includes gas cook top, electric oven and dishwasher which then leads onto the meals/living area. Moving away from this you will find yourself with direct access to the low maintenance backyard. This home includes ducted heating and two split systems for cooling throughout to ensure you are comfortable year round. Additional features include a two-car garage for extra security. Just a short drive from Bendigo CBD. Apply online today because it wont last long.

Agents

Nearby Schools

About epsom

median House price

645000

suburb growth

8.6%

median House rent

550

suburb rental yield

4.4%

Similar Properties

Source: Suburb Flyover Report Series, APM Pricefinder. PRD does not give any warranty in relation to the accuracy of the information contained in this report. If you intend to rely upon the information contained herein, you must take note that the Information, figures and projections have been provided by various sources and have not been verified by us. We have no belief one way or the other in relation to the accuracy of such information, figures and projections. PRD will not be liable for any loss or damage resulting from any statement, figure, calculation or any other information that you rely upon that is contained in the material. Prepared by PRD Research © All medians and volumes are calculated by PRD Research. Use with written permission only. All other responsibilities disclaimed.

Floorplan 1

Listing Enquiry

Listing Enquiry

1
2
3

Your Details

1
2
3

Your Enquiry

This site is protected by reCAPTCHA and the Google Privacy Policy and Terms of Service apply.

There was an error sending your enquiry. Please fill all required fields or try again later.

1
2
3

Thank you for your enquiry!

We look forward to assisting you.

Explore

PRD

 Connect with us

arrow