PRD Bendigo 158 Lyttleton Terrace Bendigo, VIC, 3550 03 5444 0344
Request An Appraisal

77 Goynes Road
epsom
VIC, 3551

SOLD

Sold for $415,000

listing rooms 4
listing bathrooms 2
listing parking 2

Set to a High Standard

A fantastic opportunity to acquire a large four bedroom family home, elegantly designed and finished to an excellent standard, including all those extras that you get with an ex-display home.

Wow factor plus as you enter a spacious and grand hallway with stunningly high ceilings. The thoughtful home design flows from room to room, yet still maintains privacy in different areas. Luxurious and quality features abound.

Rural outlook in a superb location, only 8 minutes to the hospital, and minutes from schools, shops and public transport. Located in a highly sought after area.

A true hidden gem. Inspection will guarantee to impress and surprise.

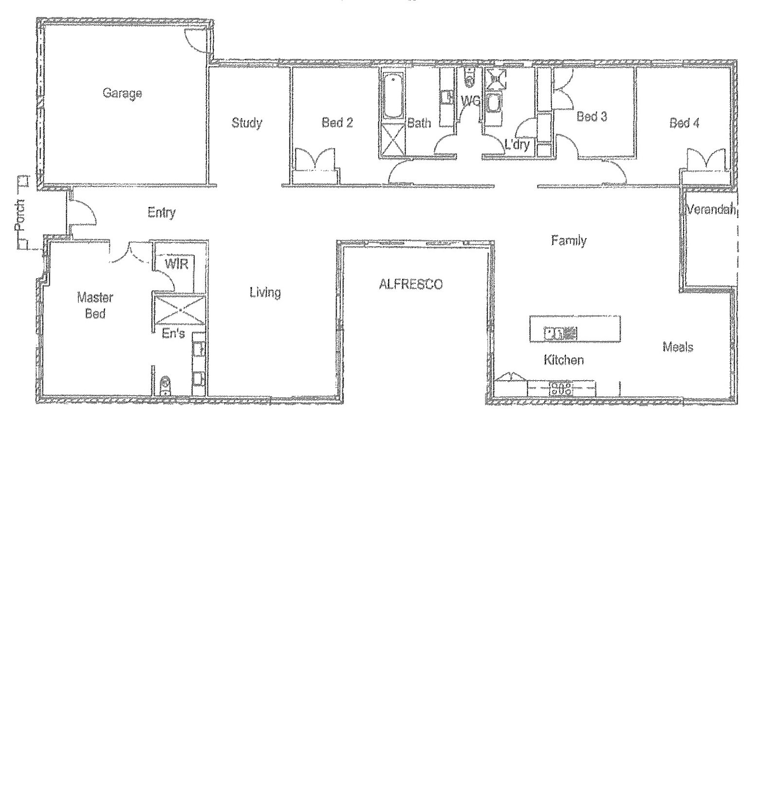
FEATURES :
* 4 spacious bedrooms / luxurious double-door master bedroom
* Huge ensuite and WIR
* Twin vanity and double shower
* Beautifully appointed, mirrored bathrooms
* 3 Areas living OR 2 and large study
* Magnificent spacious formal lounge / surround-sound system
* Quality new carpet and spectacular floating floor
* Quality new curtains and shutters throughout
* Huge open plan family / dining / kitchen
* Large kitchen / extensive cupboards / storage
* 4 Meter free-standing Caesar stone Waterfall bench
* Expensive glass splash-back
* Dishwasher
* Large gas oven and electric hot-plate
* House designed to view / access alfresco from multiple sides
* 2 Covered decking areas with double sliding doors to each
* Quality security system
* Extensive down lighting
* Ducted gas heating
* Evaporative air-conditioning
* 7 Ceiling fans, including external fan to alfresco
* New and extensive exterior sun-blinds
* 3.5 KW solar system with 12 solar panels
* Solar/gas backed hot water system
* Double lock -up garage with benches and shelving
* Parking for 4 cars / 2 garage / 2 on concrete
* External garden shed
* Quality fencing
* Totally private, hedged, back garden / low maintenance
* Established gardens and watering system
* Massive covered alfresco area
* Second decking area / covered for a sunny winter retreat
* Privacy from neighbours, throughout house and garden
* Beautiful rural outlook
* Close to schools, shops and public transport
* 8 Minutes to hospital
* Incredible Value !!

Agents

Nearby Schools

About epsom

median House price

625000

suburb growth

6.5%

median House rent

550

suburb rental yield

4.6%

Similar Properties

Source: Suburb Flyover Report Series, APM Pricefinder. PRD does not give any warranty in relation to the accuracy of the information contained in this report. If you intend to rely upon the information contained herein, you must take note that the Information, figures and projections have been provided by various sources and have not been verified by us. We have no belief one way or the other in relation to the accuracy of such information, figures and projections. PRD will not be liable for any loss or damage resulting from any statement, figure, calculation or any other information that you rely upon that is contained in the material. Prepared by PRD Research © All medians and volumes are calculated by PRD Research. Use with written permission only. All other responsibilities disclaimed.

Listing Enquiry

Listing Enquiry

1
2
3

Your Details

1
2
3

Your Enquiry

This site is protected by reCAPTCHA and the Google Privacy Policy and Terms of Service apply.

There was an error sending your enquiry. Please fill all required fields or try again later.

1
2
3

Thank you for your enquiry!

We look forward to assisting you.

Explore

PRD

 Connect with us

arrow