PRD Bendigo 03 5444 0344
PRD Castlemaine 03 5473 4129
Request An Appraisal

2 Ainsworth Street
huntly
VIC, 3551

SOLD

Sold for $450,000

listing rooms 4
listing bathrooms 2
listing parking 2
Land: 678 sqm

A Quality Built Family Home

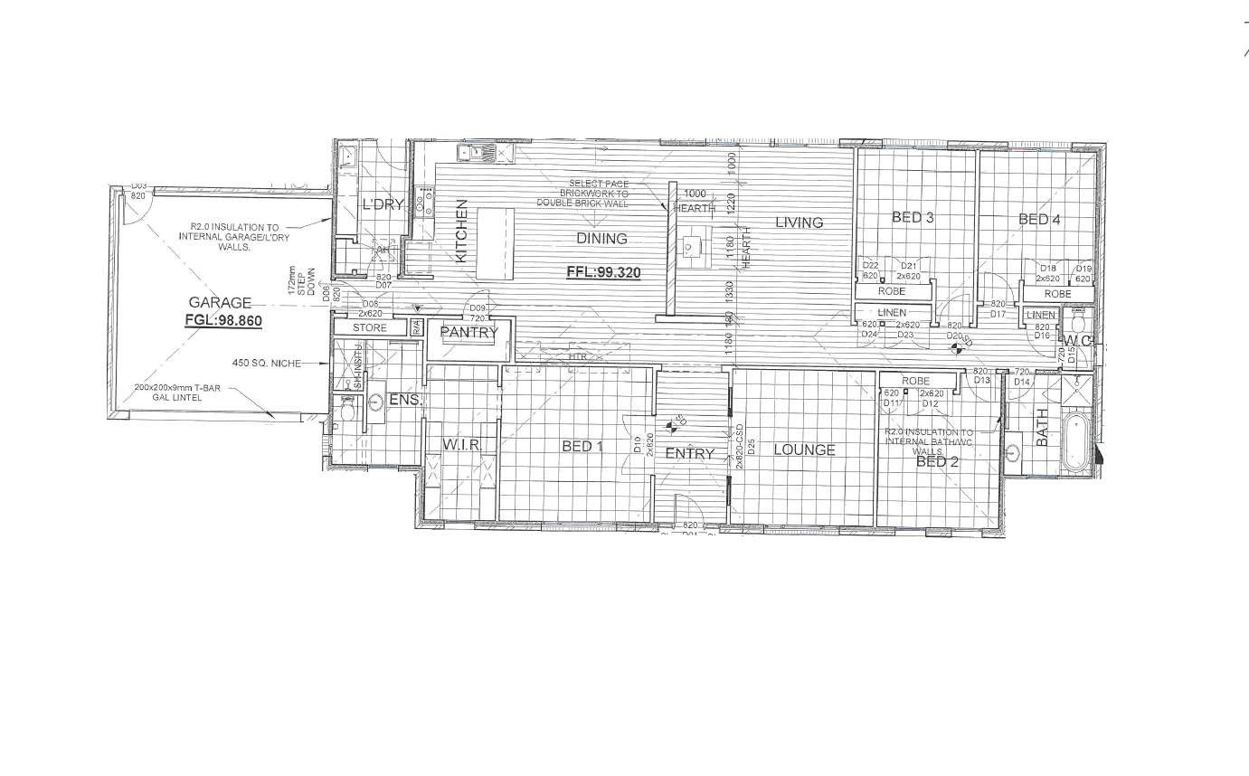
Set on a generous 678sqm corner allotment is this quality built Paul Gray home. This immaculate home is only 18 months old and has been finished with many beautiful upgrades throughout such as; raised ceilings, stone bench tops, 900mm cook top and oven, a stunning brick feature wall with double sided fireplace and ducted heating & evaporative cooling.

This spacious home offers a terrific floor plan with 2 separate living areas plus a dining area. The kitchen is large, bright and looks out over the outdoor living space. There is an island bench which also acts as a breakfast bar, quality Omega appliances, a dishwasher, plenty of cupboard space and a large pantry. This entire kitchen/dining/living space can easily open out to the alfresco area, creating the perfect spot to entertain friends and family.

All bedrooms are fantastic sizes, the main, which is positioned at the front of the home offers a huge walk in robe and ensuite with plenty of natural light. The remaining bedrooms each offer built in robes and are located at the opposite end of the home ? ideal when accommodating guests, as the main bathroom is close by and offers a bath, separate shower & separate toilet. There is also a separate study in this wing of the home.

The exterior of the home is fully landscaped ? both the front and back are complimented by luscious lawns and garden beds, the undercover alfresco dining is a great size and the double lock up garage offers internal access. This home is finished to an extremely high standard, there is not a thing left to do! Located in a new estate only minutes to all Huntly amenities, transportation and sporting facilities this home is a must to inspect. There is more than enough space for the family to grow and live very comfortably.

For further information and to arrange your inspection please contact our office today!

Agents

Nearby Schools

About huntly

median House price

639000

suburb growth

12.1%

median House rent

540

suburb rental yield

4.4%

Similar Properties

Source: Suburb Flyover Report Series, APM Pricefinder. PRD does not give any warranty in relation to the accuracy of the information contained in this report. If you intend to rely upon the information contained herein, you must take note that the Information, figures and projections have been provided by various sources and have not been verified by us. We have no belief one way or the other in relation to the accuracy of such information, figures and projections. PRD will not be liable for any loss or damage resulting from any statement, figure, calculation or any other information that you rely upon that is contained in the material. Prepared by PRD Research © All medians and volumes are calculated by PRD Research. Use with written permission only. All other responsibilities disclaimed.

Listing Enquiry

Listing Enquiry

1
2
3

Your Details

1
2
3

Your Enquiry

This site is protected by reCAPTCHA and the Google Privacy Policy and Terms of Service apply.

There was an error sending your enquiry. Please fill all required fields or try again later.

1
2
3

Thank you for your enquiry!

We look forward to assisting you.

Explore

PRD

 Connect with us

arrow