Canberra CBD 02 6133 9990
Belconnen 02 6133 9990
Request An Appraisal

19B Bundey Street
higgins
ACT, 2615

LEASED

listing rooms 1
listing bathrooms 1
listing parking 2

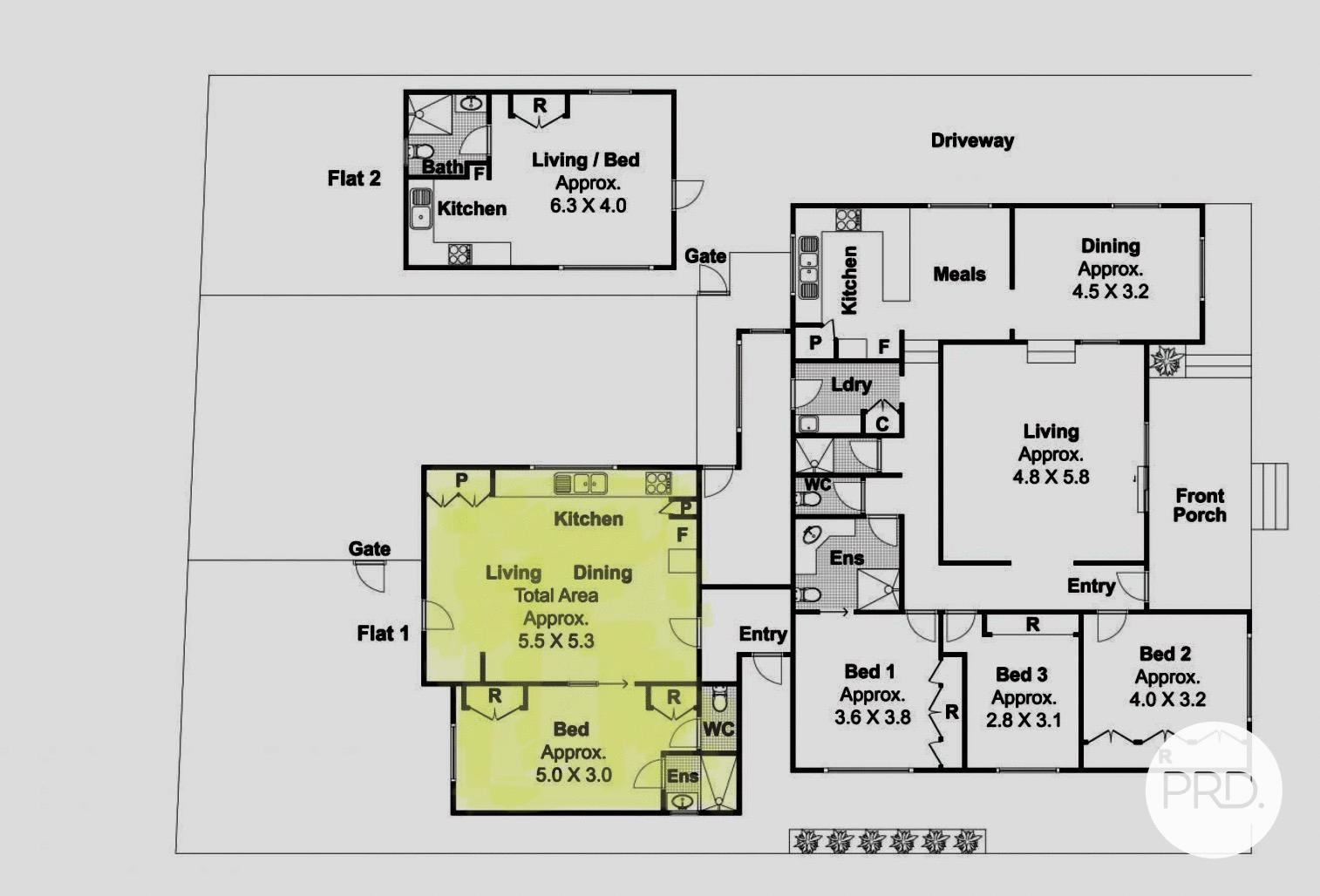
Modern 1-Bedroom Duplex with Private Entrance & Parking

To Apply, please click the link below:
https://app.2apply.com.au/Agency/prdcanberracbd

Available 25 March 2025

Looking for a comfortable and private living space? This modern 1-bedroom duplex offers everything you need for convenience and comfort.

Spacious living and dining area with an open-plan kitchen.
Reverse cycle split system air conditioning for year-round comfort.
Generous bedroom with built-in robe (BIR).
Modern bathroom with quality fittings.
Private entrance for added privacy.
Small backyard - low-maintenance outdoor space.
Allocated front parking for two cars.
Water consumption included in rent.
Separate electricity meter.
Located in a peaceful neighbourhood, this home is perfect for singles or couples looking for a comfortable and private space.
Energy efficiency rating is unknown
The property complies with the minimum ceiling insulation standard

Pets
In accordance with the Residential Tenancies Act Clause 71AE Process for tenant seeking consent - the tenant must apply, in writing, to the lessor, for the lessors' consent to keep pet/s at this property.

The lessor may impose conditions on consent, including but not limited to, the number and type of animals being kept, and any cost involved for rectification required as a result of the animal.

note: All care has been taken in compiling this information, PRD Canberra CBD will not be held liable for any errors in typing or information. All applicants /parties should rely on their own inspection & investigations to validate any information provided.
photos & floorplan provided by landlord.

Agents

Nearby Schools

Similar Properties

Floorplan 1

Listing Enquiry

Listing Enquiry

1
2
3

Your Details

1
2
3

Your Enquiry

This site is protected by reCAPTCHA and the Google Privacy Policy and Terms of Service apply.

There was an error sending your enquiry. Please fill all required fields or try again later.

1
2
3

Thank you for your enquiry!

We look forward to assisting you.

Explore

PRD

 Connect with us

arrow