PRD Hervey Bay 428 The Esplanade, Torquay, QLD 07 4125 1900
Request An Appraisal

61 Bay Park Road
wondunna
QLD, 4655

SOLD

Sold for $412,000

listing rooms 4
listing bathrooms 2
listing parking 2
Property: 205 sqm Land: 786 sqm

BRAND NEW HOME - TO BE COMPLETED LATE 2019/EARLY 2020 - $15,000 FIRST HOME OWNERS GRANT APPLIES

Home and land package currently under construction with completion expected in late 2019 or early 2020. The home will be ready for you to move in, complete with air conditioning, ceiling fans, roller blinds, turf, timber privacy fencing, letterbox, and driveway.

This property will be set on a 786 m2 allotment and just a short walk to established 3.5 hectare park. Located close to schools, private and public hospitals, and a selection of major shopping centres so the position is great.

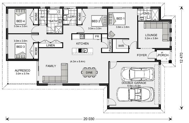
Enjoy 4 spacious built in bedrooms including main bedroom with an ensuite and large walk in wardrobe. The main bedroom is located away from the rest of the home for extra privacy.

An spacious open plan kitchen with loads of bench space joins the extra large family living/dining room. The kitchen offers stainless steel appliances including dishwasher, cook top, under bench oven & a large pantry. Floors are tiled to all living and wet areas with carpet to bedrooms and the media/lounge room.

The separate lounge room is located at the front of the home which should keep noise to a minimum and is an ideal media room.

There's 20 metre street frontage and easy side vehicle access to the fully privacy fenced backyard. The double garage has panel lift automatic doors as well as internal access into the home. Enjoy the covered, outdoor BBQ area which overlooks the massive backyard and is perfect for entertaining

$15,000 First Home Buyers Grant is available to eligible buyers.

*Please note that Artists Impressions have been used for illustration purposes and the actual home may differ*

Please contact Jim McKay on 0418 717341 for further inquiries on this home or other home and land packages that we have available.

Agents

Nearby Schools

About wondunna

median House price

962500

suburb growth

26.6%

median House rent

660

suburb rental yield

3.6%

Similar Properties

Source: Suburb Flyover Report Series, APM Pricefinder. PRD does not give any warranty in relation to the accuracy of the information contained in this report. If you intend to rely upon the information contained herein, you must take note that the Information, figures and projections have been provided by various sources and have not been verified by us. We have no belief one way or the other in relation to the accuracy of such information, figures and projections. PRD will not be liable for any loss or damage resulting from any statement, figure, calculation or any other information that you rely upon that is contained in the material. Prepared by PRD Research © All medians and volumes are calculated by PRD Research. Use with written permission only. All other responsibilities disclaimed.

Listing Enquiry

Listing Enquiry

1
2
3

Your Details

1
2
3

Your Enquiry

This site is protected by reCAPTCHA and the Google Privacy Policy and Terms of Service apply.

There was an error sending your enquiry. Please fill all required fields or try again later.

1
2
3

Thank you for your enquiry!

We look forward to assisting you.

Explore

PRD

 Connect with us

arrow