Bellerive 03 6244 5588
New Norfolk 03 6261 2555
Request An Appraisal

48 Sharland Avenue
new norfolk
TAS, 7140

SOLD

Sold for $555,000

listing rooms 4
listing bathrooms 1
listing parking 4
Property: 148 sqm Land: 976 sqm

Extensive Family Home - Picture Post Card Views!

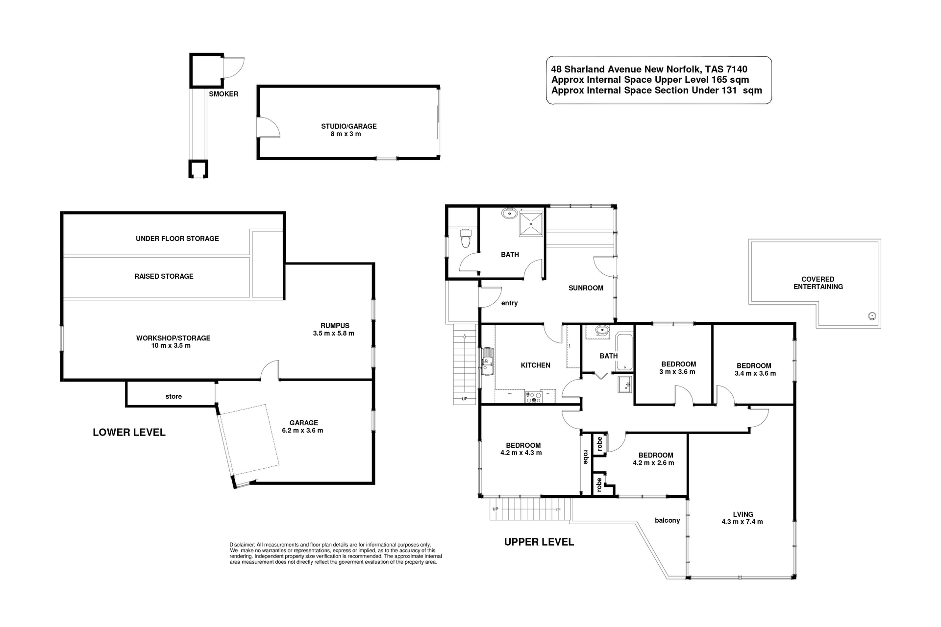
Built in 1958 covering approx. 976sqm of land, this beloved family home will quite literally take your breath away. It's imposing first impression will only be the beginning with its 'Grand Views' overlooking the glistening Derwent River and surrounding mountain ranges. Passing through the entrance and stepping inside, the views continue. Encompassed by ceiling to floor windows from the living room enables you to capture the outlook and to also provide tons of natural light and warmth. Open plan from the lounge is the adjoining dining and modern kitchen, which includes plenty of cupboard and bench space and is kept comfortable year-round by-way of a free-standing wood heater and reverse cycle heat pump. Together with four substantial sized bedrooms, two with built-ins, a central bathroom that comprises of a shower, bath and vanity, along with a shower in the laundry makes this home big enough for most families. But wait! There's more! This home offers a unique feature at the rear of the property a meat smokehouse, which are used to add flavor, colour, and aroma to various meats, this is sure to please the want'a be chef! The terraced gardens are thoughtfully landscaped, providing great street appeal to this outstanding property. There is a single roller door access to secure parking, mechanics pit, storage and adjoining is a substantial utility room perfect for a man cave. New Norfolk is renowned for its historic buildings, antique stores, beautiful river and mountain scenery and its proximity to local schools, shops, and transport, it's also just a approx. 30-minute commute to the Hobart's CBD!

• Imposing first impression
• Grand Views' overlooking the glistening Derwent River
• Living room encompassed by ceiling to floor windows
• Loads of natural light and warmth
• 4 Substantial sized bedrooms, with built-ins
• Open plan from the lounge is the adjoining dining and kitchen
• Free-standing wood heater and reverse cycle heat pump
• Meat smokehouse - sure to please the want'a be chef
• Single roller door access to secure parking, mechanics pit, substantial utility room
• Approx. 976sqm of land, thoroughly landscaped
• Hobart's CBD, approx. 30-minute commute

Agents

Nearby Schools

About new norfolk

median House price

475000

suburb growth

3.3%

median House rent

500

suburb rental yield

5.5%

Similar Properties

Source: Suburb Flyover Report Series, APM Pricefinder. PRD does not give any warranty in relation to the accuracy of the information contained in this report. If you intend to rely upon the information contained herein, you must take note that the Information, figures and projections have been provided by various sources and have not been verified by us. We have no belief one way or the other in relation to the accuracy of such information, figures and projections. PRD will not be liable for any loss or damage resulting from any statement, figure, calculation or any other information that you rely upon that is contained in the material. Prepared by PRD Research © All medians and volumes are calculated by PRD Research. Use with written permission only. All other responsibilities disclaimed.

Floorplan 1

Listing Enquiry

Listing Enquiry

1
2
3

Your Details

1
2
3

Your Enquiry

This site is protected by reCAPTCHA and the Google Privacy Policy and Terms of Service apply.

There was an error sending your enquiry. Please fill all required fields or try again later.

1
2
3

Thank you for your enquiry!

We look forward to assisting you.

Explore

PRD

 Connect with us

arrow