Bellerive 03 6244 5588
New Norfolk 03 6261 2555
Request An Appraisal

227 Rifle Range Road
sandford
TAS, 7020

SOLD
listing rooms 4
listing bathrooms 2
listing parking 2
Property: 230 sqm Land: 2.03 Hectare

Barkala - Country Homestead

Feel yourself relax as you drive onto this property, through the native trees, a sense of comfort and warmth embraces you, instantly evoking the alluring charm of a country lifestyle. This feeling sets the tone for what awaits within this delightful rural family haven.
A place to escape and unwind, exuding a blend of charm and modern convenience. Renovated to cater to the needs of a growing family, the home boasts a thoughtfully designed floorplan.
Inside, the well proportioned layout comprises two distinct living areas. The first is an elegant open lounge/dining area, perfect for formal gatherings and is complete with slow combustion fire, which adds ambience. The second encompasses the heart of daily life, featuring a combined kitchen, dining, and sitting room with feature convict brick wall and cosy gas fireplace - a welcoming space for everyday activities.
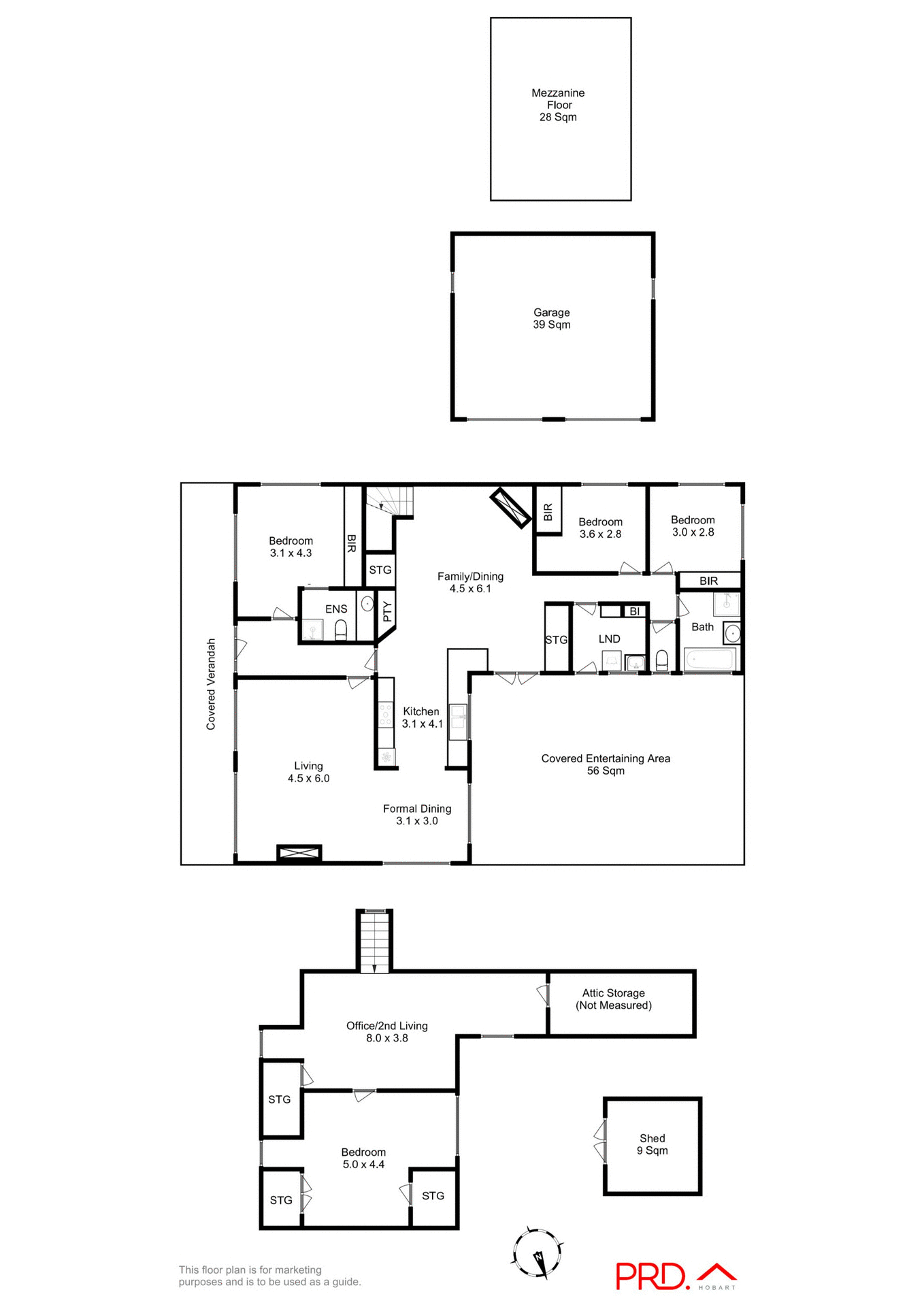
With four bedrooms, two bathrooms, and an spacious office, this home provides ample space for comfortable living. The master bedroom is located at the front of the home for privacy, while two others are at the back of the home. Upstairs is the walkthrough office space as well as the fourth bedroom.
Outside step into the large alfresco area fully covered and sheltered with patio blinds - this provides a sanctuary filled with natural light, ideal for private gatherings or quiet moments of contemplation. A fenced area adjacent to this ensures a secure play area for children, conveniently visible from within the home.
Sprawled across 2 hectares, where you can enjoy your peaceful surrounds and the birds serenading. The land is shaded with trees for privacy, as well as a dam and the current owners have found it an easy care space. There are established native gardens, as well as raised vegetable beds for you to potter. The back paddock did house some goats at one stage if animals are part of your family.
Completing the outside is a double garage, providing both car accommodation and additional storage - a practical addition to this inviting rural abode.
For the active and adventurous, explore the surrounding hills and beaches via the Tangara Trail network, or take a refreshing swim at one of the nearby beaches on the peninsula.
The timeless appeal of this homestead-style cottage gives you the opportunity to escape the hustle and bustle while still being within easy reach, just 25 mins approx from Hobart's CBD or 20 mins approx from Hobart airport.
Here, it's not just a home; it's a haven-a place where time slows down, allowing you to revel in the beauty and tranquility of your very own slice of paradise.

Agents

Nearby Schools

About sandford

median House price

1157500

suburb growth

19.3%

median House rent

650

suburb rental yield

2.9%

Similar Properties

Source: Suburb Flyover Report Series, APM Pricefinder. PRD does not give any warranty in relation to the accuracy of the information contained in this report. If you intend to rely upon the information contained herein, you must take note that the Information, figures and projections have been provided by various sources and have not been verified by us. We have no belief one way or the other in relation to the accuracy of such information, figures and projections. PRD will not be liable for any loss or damage resulting from any statement, figure, calculation or any other information that you rely upon that is contained in the material. Prepared by PRD Research © All medians and volumes are calculated by PRD Research. Use with written permission only. All other responsibilities disclaimed.

Floorplan 1

Listing Enquiry

Listing Enquiry

1
2
3

Your Details

1
2
3

Your Enquiry

This site is protected by reCAPTCHA and the Google Privacy Policy and Terms of Service apply.

There was an error sending your enquiry. Please fill all required fields or try again later.

1
2
3

Thank you for your enquiry!

We look forward to assisting you.

Explore

PRD

 Connect with us

arrow