Bellerive 03 6244 5588
New Norfolk 03 6261 2555
Request An Appraisal

6 Jubilee Avenue
brighton
TAS, 7030

SOLD
listing rooms 3
listing bathrooms 2
listing parking 8
Property: 202 sqm Land: 3055 sqm

Brighton - A Refined Sanctuary of Elegance & Entertaining

Tucked away on a private and substantial allotment, this stunning Brighton residence is a masterclass in design and effortless sophistication. Originally constructed in 1988, it underwent a complete transformation and expansion in 2022, blending modern comforts with timeless appeal.

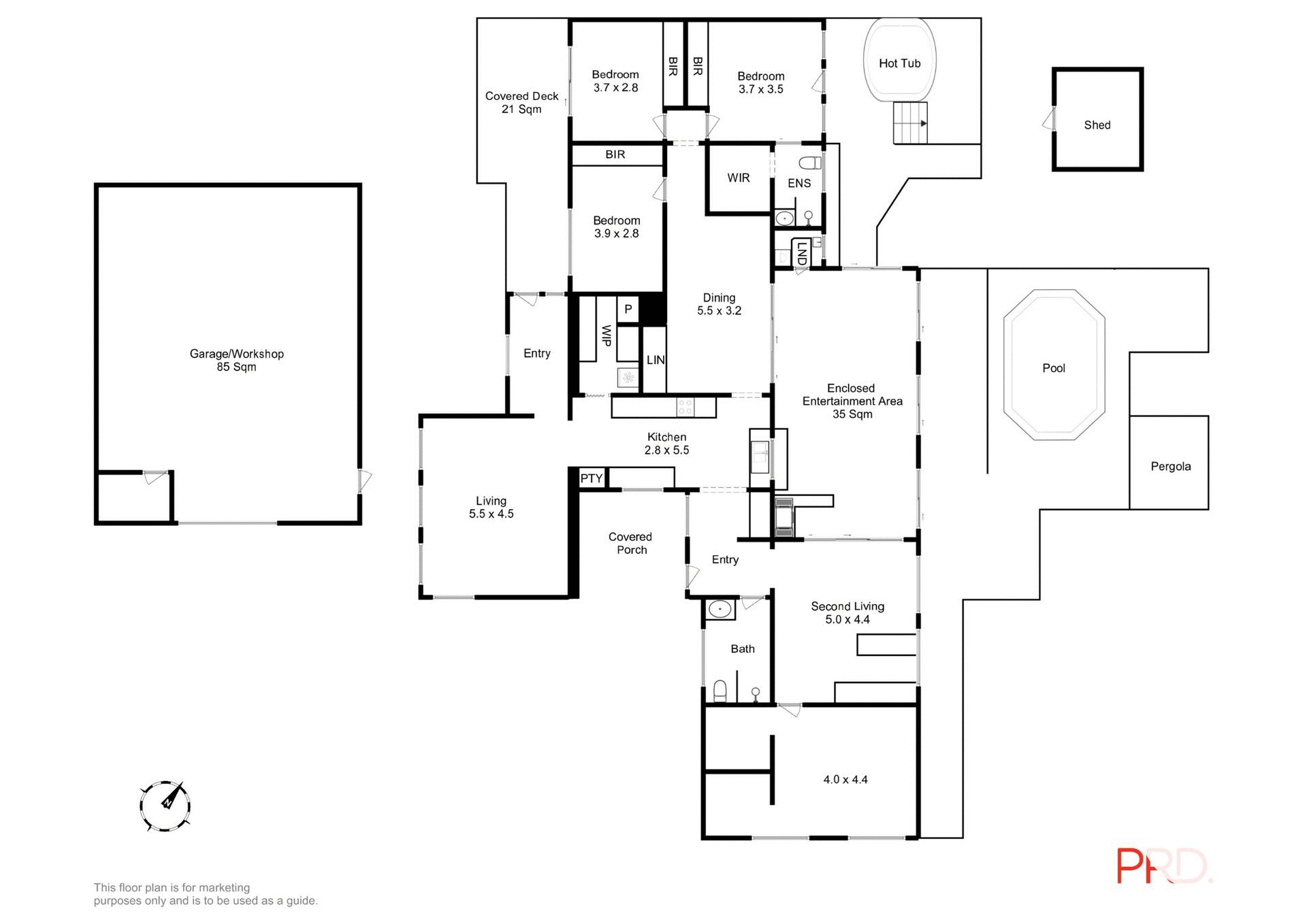
At the heart of the home, the elegant country style kitchen is both refined and functional, complemented by a generous butler's pantry for seamless entertaining. A separate dining room and spacious lounge area create inviting spaces to unwind in comfort.

Entertaining is elevated to an art form with the expansive enclosed alfresco area, designed for year round enjoyment. Featuring an inbuilt BBQ, preparation bench, and a convenient servery window from the kitchen, this space flows effortlessly into the second living area, currently set up as a sophisticated bar, a true statement in style and hospitality.

The home comprises three bedrooms plus a versatile art room. The master suite is a secluded retreat, boasting a walk-in robe, a beautifully appointed ensuite, and private access to a tranquil hot tub courtyard - the perfect setting for relaxation.

Outside, the grounds are as impressive as the interiors. A heated pool serves as the centrepiece of this private oasis, with a thoughtfully positioned deck providing ideal vantage points to watch children at play or gather around the fire pit for evenings under the stars. The meticulously landscaped gardens offer a picturesque, sustainable lifestyle, complete with a thriving vegetable garden, fruit trees, and a charming chicken coop.

With substantial solar panels, double glazed windows, and a 6-star energy rating, this residence is as efficient as it is luxurious. A separate four-car garage provides ample space for vehicles, storage, or a workshop.
Set on a sprawling allotment, the property also offers exciting potential for future development (STCA). For those with extended family or multigenerational living in mind, there is plenty of space to easily accommodate an ancillary dwelling (STCA), making the most of the generous land size and flexible layout. This is truly a rare opportunity with options to suit a range of needs.
Ideally positioned within walking distance of Brighton's conveniences, this home is an unparalleled statement of elegance, designed for those who appreciate the finer things in life.

* Please note:
All measurements are approximate, and any critical details should be independently verified. While every effort has been made to ensure accuracy, no guarantees are provided, and no liability will be accepted for any discrepancies. Interested parties are encouraged to conduct their own investigations to confirm all information to their satisfaction.
** This property is listed as a buyer's guide; we recommend an inspection if you are considering a purchase in this range.
Disclaimer provided by PRD Hobart.

Agents

Nearby Schools

About brighton

median House price

630000

suburb growth

5.8%

median House rent

535

suburb rental yield

4.4%

Similar Properties

Source: Suburb Flyover Report Series, APM Pricefinder. PRD does not give any warranty in relation to the accuracy of the information contained in this report. If you intend to rely upon the information contained herein, you must take note that the Information, figures and projections have been provided by various sources and have not been verified by us. We have no belief one way or the other in relation to the accuracy of such information, figures and projections. PRD will not be liable for any loss or damage resulting from any statement, figure, calculation or any other information that you rely upon that is contained in the material. Prepared by PRD Research © All medians and volumes are calculated by PRD Research. Use with written permission only. All other responsibilities disclaimed.

Floorplan 1

Listing Enquiry

Listing Enquiry

1
2
3

Your Details

1
2
3

Your Enquiry

This site is protected by reCAPTCHA and the Google Privacy Policy and Terms of Service apply.

There was an error sending your enquiry. Please fill all required fields or try again later.

1
2
3

Thank you for your enquiry!

We look forward to assisting you.

Explore

PRD

 Connect with us

arrow