Bellerive 03 6244 5588
New Norfolk 03 6261 2555
Request An Appraisal

296 Murray Street
hobart
TAS, 7000

Offers over $739,000

listing rooms 2
listing bathrooms 1
listing parking 2
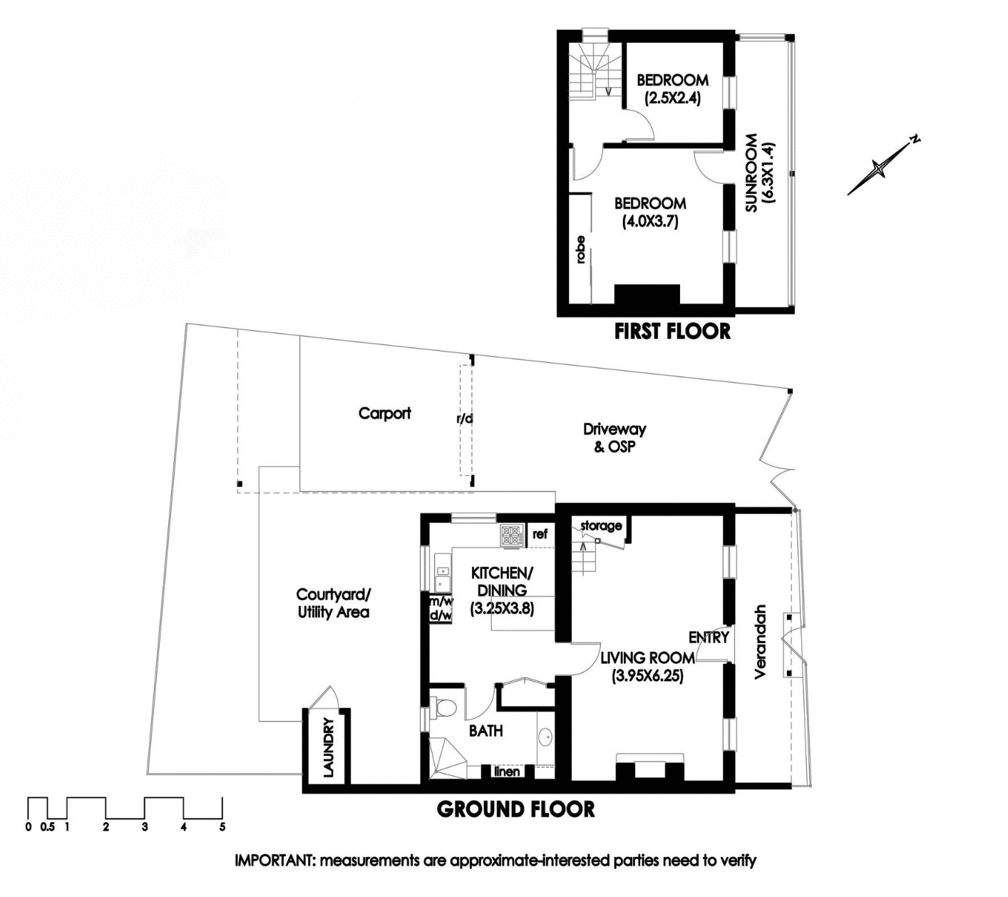
Property: 100 sqm Land: 203 sqm

Heritage Charm - City Convenience

Step into a piece of Hobart's history, perfectly balanced with modern-day comfort. This updated circa 1880s home offers a rare opportunity to secure heritage character in one of the city's most tightly held and vibrant locations.

Behind its heritage-listed fasade, the home tells a story of timeless features, while inside it unfolds with warmth and thoughtful updates. The cosy lounge welcomes you in - a place to slow down and relax, complete with a wood heater that creates atmosphere through the cooler months. The modernised kitchen connects seamlessly, offering a breakfast bar for casual mornings, generous storage, and a practical layout designed for everyday living. The bathroom is centrally positioned and appointed with shower, vanity and toilet.

Upstairs, there are two bedrooms, the master with built-ins. The bonus light-filled sunroom offers valuable flexibility - ideal as a study, reading nook, or space to unwind at the end of the day.

Outside, the fenced yard presents an exciting blank canvas - imagine a private courtyard garden, outdoor entertaining space, or a low-maintenance sanctuary just moments from the city. Adding to the appeal is the rare advantage of a carport plus additional off-street parking - an exceptional asset in this highly sought-after urban setting.

Positioned just a short stroll from the North Hobart restaurant strip and the CBD, you are truly immersed in lifestyle and convenience. Cafes, dining, local events, schools and shops are all within easy reach. Here, you can leave the car at home and enjoy everything Hobart has to offer right from your doorstep.
A home with heart, history and an enviable city-edge lifestyle - this is one not to miss.

**All measurements are approximate, and any critical details should be independently verified. While every effort has been made to ensure accuracy, no guarantees are provided, and no liability will be accepted for any discrepancies. Interested parties are encouraged to conduct their own investigations to confirm all information to their satisfaction.

If this property is listed with a buyer's guide, we recommend an inspection if you are considering a purchase within this range. Please note that in situations with multiple offers, some properties may sell above the advertised buyer's guide.

If this property is advertised as a Set Sale with a closing date, the owner still reserves the right to accept an offer at any time prior to this advertised date.

Some images have been digitally staged with furniture for illustrative purposes only and may not accurately represent the scale or dimensions of the rooms. Unstaged images of the property are available on request.

Disclaimer provided by PRD Hobart.

Agents

Nearby Schools

About hobart

median House price

865500

median House rent

720

suburb rental yield

4.3%
Find Out More

Similar Properties

Source: Suburb Flyover Report Series, APM Pricefinder. PRD does not give any warranty in relation to the accuracy of the information contained in this report. If you intend to rely upon the information contained herein, you must take note that the Information, figures and projections have been provided by various sources and have not been verified by us. We have no belief one way or the other in relation to the accuracy of such information, figures and projections. PRD will not be liable for any loss or damage resulting from any statement, figure, calculation or any other information that you rely upon that is contained in the material. Prepared by PRD Research © All medians and volumes are calculated by PRD Research. Use with written permission only. All other responsibilities disclaimed.

Floorplan 1

Listing Enquiry

Listing Enquiry

1
2
3

Your Details

1
2
3

Your Enquiry

This site is protected by reCAPTCHA and the Google Privacy Policy and Terms of Service apply.

There was an error sending your enquiry. Please fill all required fields or try again later.

1
2
3

Thank you for your enquiry!

We look forward to assisting you.

Explore

PRD

 Connect with us

arrow