PRD Mildura 119 Langtree Avenue Mildura, VIC, 3500 03 5022 7750
Request An Appraisal

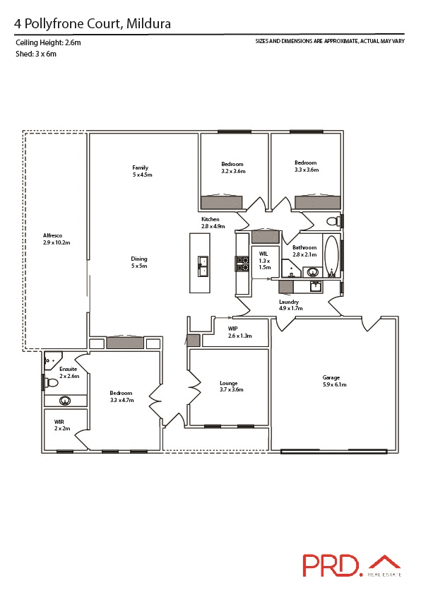
4 Pollifrone Court
mildura
VIC, 3500

SOLD
listing rooms 3
listing bathrooms 2
listing parking 2
Land: 768 sqm

Classic Colonial Style..

With all the modern features you would expect from a brick veneer home offering a convenient and thoughtful design with separate living zones and an abundance of storage space. When you walk in you feel right at home, with the master bedroom providing an excellent ensuite and full size walk in robe, formal lounge, and then entering the hub of the home it opens up into a huge meals - family room with built in cabinetry, which overlooks a fully appointed Mirotone kitchen with stone bench tops and a genuine walk in pantry. There's a fully zoned reverse cycle air conditioner to provide your all year round comfort. A fully covered entertaining area provides a great spot to cook up a BBQ to enjoy with friends and family, with the rest of the yard being very secure for the children and dad is provided with a 6m x 3m shed. A property not to be missed!

Agents

Nearby Schools

About mildura

median House price

560000

suburb growth

20.3%

median House rent

500

suburb rental yield

4.6%
Find Out More

Similar Properties

Source: Suburb Flyover Report Series, APM Pricefinder. PRD does not give any warranty in relation to the accuracy of the information contained in this report. If you intend to rely upon the information contained herein, you must take note that the Information, figures and projections have been provided by various sources and have not been verified by us. We have no belief one way or the other in relation to the accuracy of such information, figures and projections. PRD will not be liable for any loss or damage resulting from any statement, figure, calculation or any other information that you rely upon that is contained in the material. Prepared by PRD Research © All medians and volumes are calculated by PRD Research. Use with written permission only. All other responsibilities disclaimed.

Floorplan 1

Listing Enquiry

Listing Enquiry

1
2
3

Your Details

1
2
3

Your Enquiry

This site is protected by reCAPTCHA and the Google Privacy Policy and Terms of Service apply.

There was an error sending your enquiry. Please fill all required fields or try again later.

1
2
3

Thank you for your enquiry!

We look forward to assisting you.

Explore

PRD

 Connect with us

arrow