PRD Mildura 119 Langtree Avenue Mildura, VIC, 3500 03 5022 7750
Request An Appraisal

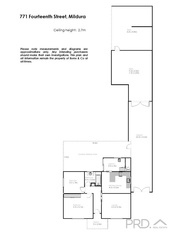
771 Fourteenth Street
mildura
VIC, 3500

LEASED

listing rooms 3
listing bathrooms 1
listing parking 2
Land: 614 sqm

THREE BEDROOM HOME + BUNGALOW

This three bedroom home features an outside bungalow for extra storage. The internal home features a brand new bathroom, updated kitchen with additional dining, separate lounge room, large bedrooms, laundry with separate toilet, double carport with roller door and large backyard grassed area. The home is within walking distance to the shops, local schools and restaurants.

Agents

Nearby Schools

About mildura

median House price

554000

suburb growth

19.0%

median House rent

500

suburb rental yield

4.7%
Find Out More

Similar Properties

Source: Suburb Flyover Report Series, APM Pricefinder. PRD does not give any warranty in relation to the accuracy of the information contained in this report. If you intend to rely upon the information contained herein, you must take note that the Information, figures and projections have been provided by various sources and have not been verified by us. We have no belief one way or the other in relation to the accuracy of such information, figures and projections. PRD will not be liable for any loss or damage resulting from any statement, figure, calculation or any other information that you rely upon that is contained in the material. Prepared by PRD Research © All medians and volumes are calculated by PRD Research. Use with written permission only. All other responsibilities disclaimed.

Floorplan 1

Listing Enquiry

Listing Enquiry

1
2
3

Your Details

1
2
3

Your Enquiry

This site is protected by reCAPTCHA and the Google Privacy Policy and Terms of Service apply.

There was an error sending your enquiry. Please fill all required fields or try again later.

1
2
3

Thank you for your enquiry!

We look forward to assisting you.

Explore

PRD

 Connect with us

arrow