PRD Mildura 119 Langtree Avenue Mildura, VIC, 3500 03 5022 7750
Request An Appraisal

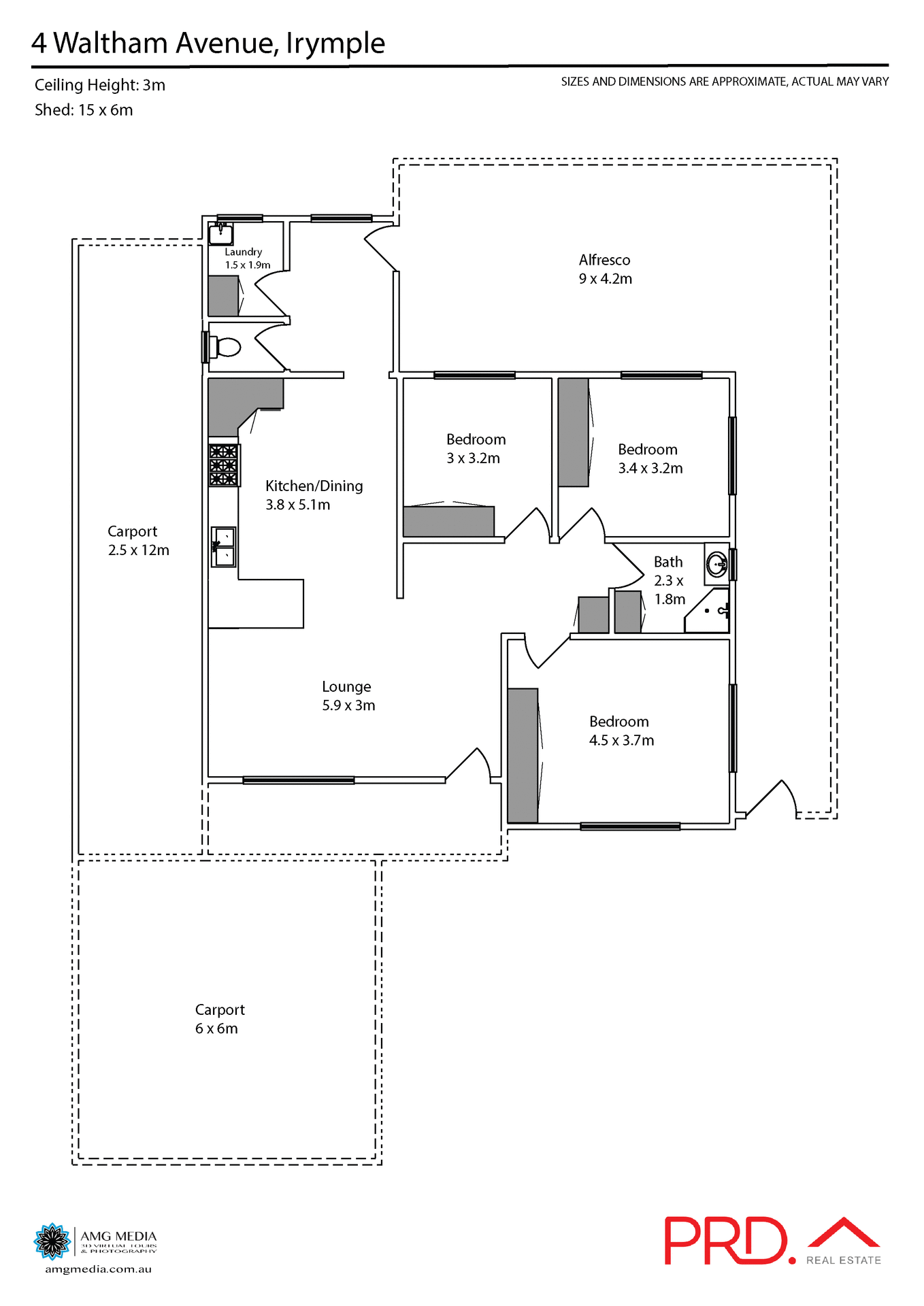
4 Waltham Avenue
irymple
VIC, 3498

SOLD
listing rooms 3
listing bathrooms 1
listing parking 2
Land: 616 sqm

Perfect Inside & Out

Superbly presented, this immaculate home boasts a host of desirable features. Offering a cosy lounge room, updated modern kitchen with huge gas range and dishwasher, 3 bedrooms with an updated bathroom and separate toilet. Additional features include, gas ducted heating, evaporative cooling, split system reverse cycle air conditioners, new blinds, sun room, large covered & paved outdoor living area, double carport, 17m x 6m (approx.) shed with concrete floor, power plus a wood heater along with rear lane access. Nothing to do here except simply move in, put your feet up and open a cold one.

Agents

Nearby Schools

About irymple

median House price

650000

suburb growth

6.6%

median House rent

590

suburb rental yield

4.7%

Similar Properties

Source: Suburb Flyover Report Series, APM Pricefinder. PRD does not give any warranty in relation to the accuracy of the information contained in this report. If you intend to rely upon the information contained herein, you must take note that the Information, figures and projections have been provided by various sources and have not been verified by us. We have no belief one way or the other in relation to the accuracy of such information, figures and projections. PRD will not be liable for any loss or damage resulting from any statement, figure, calculation or any other information that you rely upon that is contained in the material. Prepared by PRD Research © All medians and volumes are calculated by PRD Research. Use with written permission only. All other responsibilities disclaimed.

Floorplan 1

Listing Enquiry

Listing Enquiry

1
2
3

Your Details

1
2
3

Your Enquiry

This site is protected by reCAPTCHA and the Google Privacy Policy and Terms of Service apply.

There was an error sending your enquiry. Please fill all required fields or try again later.

1
2
3

Thank you for your enquiry!

We look forward to assisting you.

Explore

PRD

 Connect with us

arrow