PRD Mildura 119 Langtree Avenue Mildura, VIC, 3500 03 5022 7750
Request An Appraisal

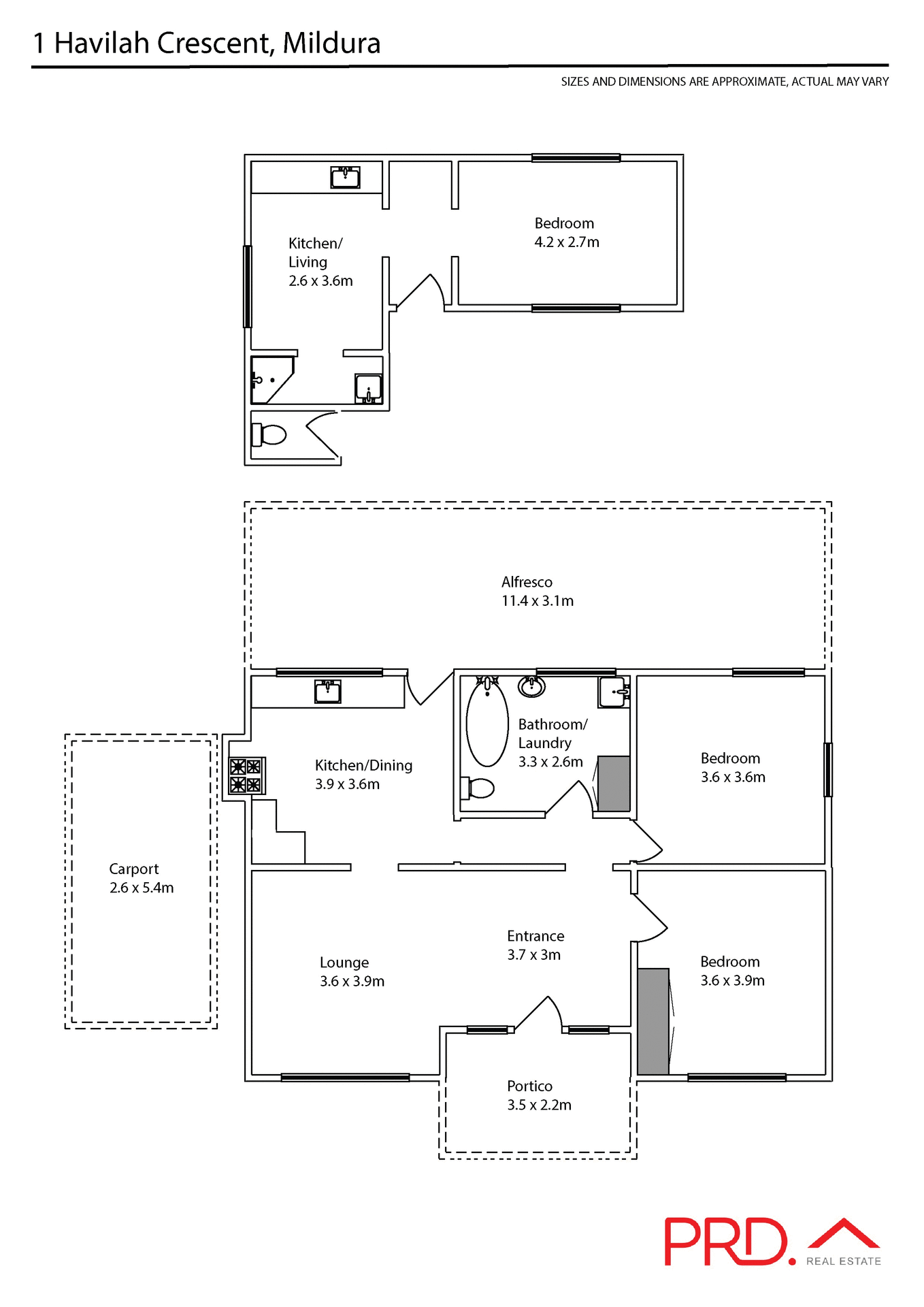
1 Havilah Cresent
mildura
VIC, 3500

SOLD
listing rooms 3
listing bathrooms 1
listing parking 2
Land: 828 sqm

Ideal Central Location

With virtually everything on your front doorstep, from schools, access to public transport to the Mildura shopping complex, this very affordable Conite home boasts plenty of period style features with the ornate cornicing and ceiling roses, polished timber floors in a very large lounge. The kitchen provides plenty of cupboard and bench space opening onto the paved outdoor entertaining area. With two bedrooms of generous size, master having a BIR there is an additional bungalow that features a bedroom, lounge, kitchenette and small bathroom. The home boasts a traditional style bathroom featuring a freestanding claw foot bath adding its character. Additional features include; evaporative cooling, gas heating , 6m x 6m shed all set on an expansive 828m2 allotment. Currently leased at $300 per week this is ideal for a first home buyer or investor.

Agents

Nearby Schools

About mildura

median House price

555000

suburb growth

19.2%

median House rent

500

suburb rental yield

4.7%
Find Out More

Similar Properties

Source: Suburb Flyover Report Series, APM Pricefinder. PRD does not give any warranty in relation to the accuracy of the information contained in this report. If you intend to rely upon the information contained herein, you must take note that the Information, figures and projections have been provided by various sources and have not been verified by us. We have no belief one way or the other in relation to the accuracy of such information, figures and projections. PRD will not be liable for any loss or damage resulting from any statement, figure, calculation or any other information that you rely upon that is contained in the material. Prepared by PRD Research © All medians and volumes are calculated by PRD Research. Use with written permission only. All other responsibilities disclaimed.

Floorplan 1

Listing Enquiry

Listing Enquiry

1
2
3

Your Details

1
2
3

Your Enquiry

This site is protected by reCAPTCHA and the Google Privacy Policy and Terms of Service apply.

There was an error sending your enquiry. Please fill all required fields or try again later.

1
2
3

Thank you for your enquiry!

We look forward to assisting you.

Explore

PRD

 Connect with us

arrow