PRD Mildura 119 Langtree Avenue Mildura, VIC, 3500 03 5022 7750
Request An Appraisal

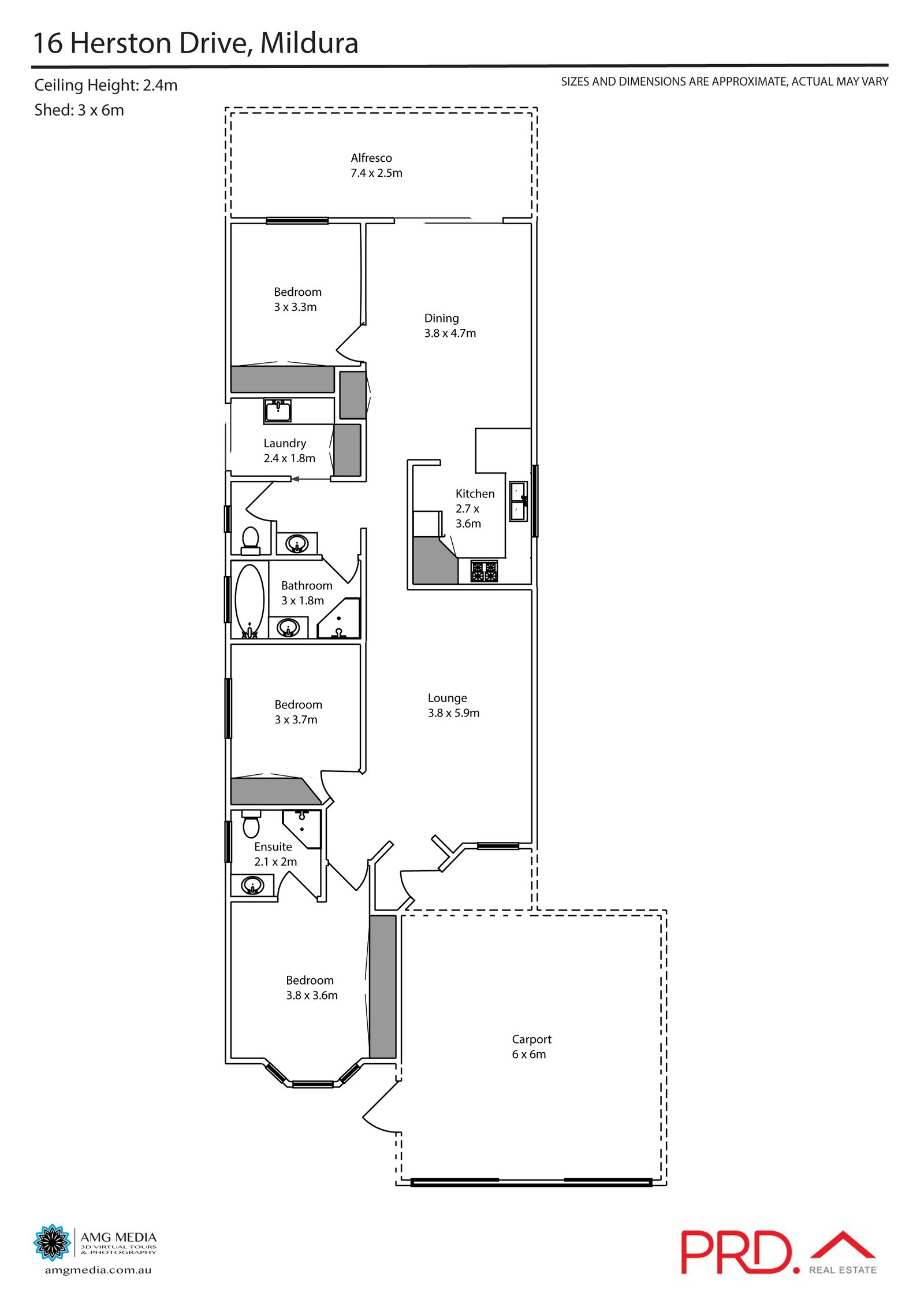
16 Herston Drive
mildura
VIC, 3500

LEASED

listing rooms 3
listing bathrooms 2
listing parking 2
Land: 551 sqm

COSY FAMILY HOME

Available to rent is this cosy three bedroom, two bathroom family home. Step inside to discover a bright and airy living room, perfect for family gatherings or cozy nights in. The kitchen is equipped with modern appliances and ample counter space, ensuring that cooking and hosting are a breeze. The three spacious bedrooms all feature built- in robes for ample storage. Two modern bathrooms designed for convenience and comfort. Stay cool during the hot months with evaporative air conditioning throughout the home. The property boasts a lovely backyard, perfect for hosting weekend barbecues with friends and family. Enjoy the outdoors with a lovely alfresco area or relax in the lush grass area, making this home a true retreat. Secure parking with a double garage provides peace of mind for your vehicles. Apply now for an inspection!

Agents

Nearby Schools

About mildura

median House price

557500

suburb growth

19.8%

median House rent

500

suburb rental yield

4.7%
Find Out More

Similar Properties

Source: Suburb Flyover Report Series, APM Pricefinder. PRD does not give any warranty in relation to the accuracy of the information contained in this report. If you intend to rely upon the information contained herein, you must take note that the Information, figures and projections have been provided by various sources and have not been verified by us. We have no belief one way or the other in relation to the accuracy of such information, figures and projections. PRD will not be liable for any loss or damage resulting from any statement, figure, calculation or any other information that you rely upon that is contained in the material. Prepared by PRD Research © All medians and volumes are calculated by PRD Research. Use with written permission only. All other responsibilities disclaimed.

Listing Enquiry

Listing Enquiry

1
2
3

Your Details

1
2
3

Your Enquiry

This site is protected by reCAPTCHA and the Google Privacy Policy and Terms of Service apply.

There was an error sending your enquiry. Please fill all required fields or try again later.

1
2
3

Thank you for your enquiry!

We look forward to assisting you.

Explore

PRD

 Connect with us

arrow