PRD Mildura 119 Langtree Avenue Mildura, VIC, 3500 03 5022 7750
Request An Appraisal

7 Flamingo Drive
mildura
VIC, 3500

SOLD

Sold for $495,000

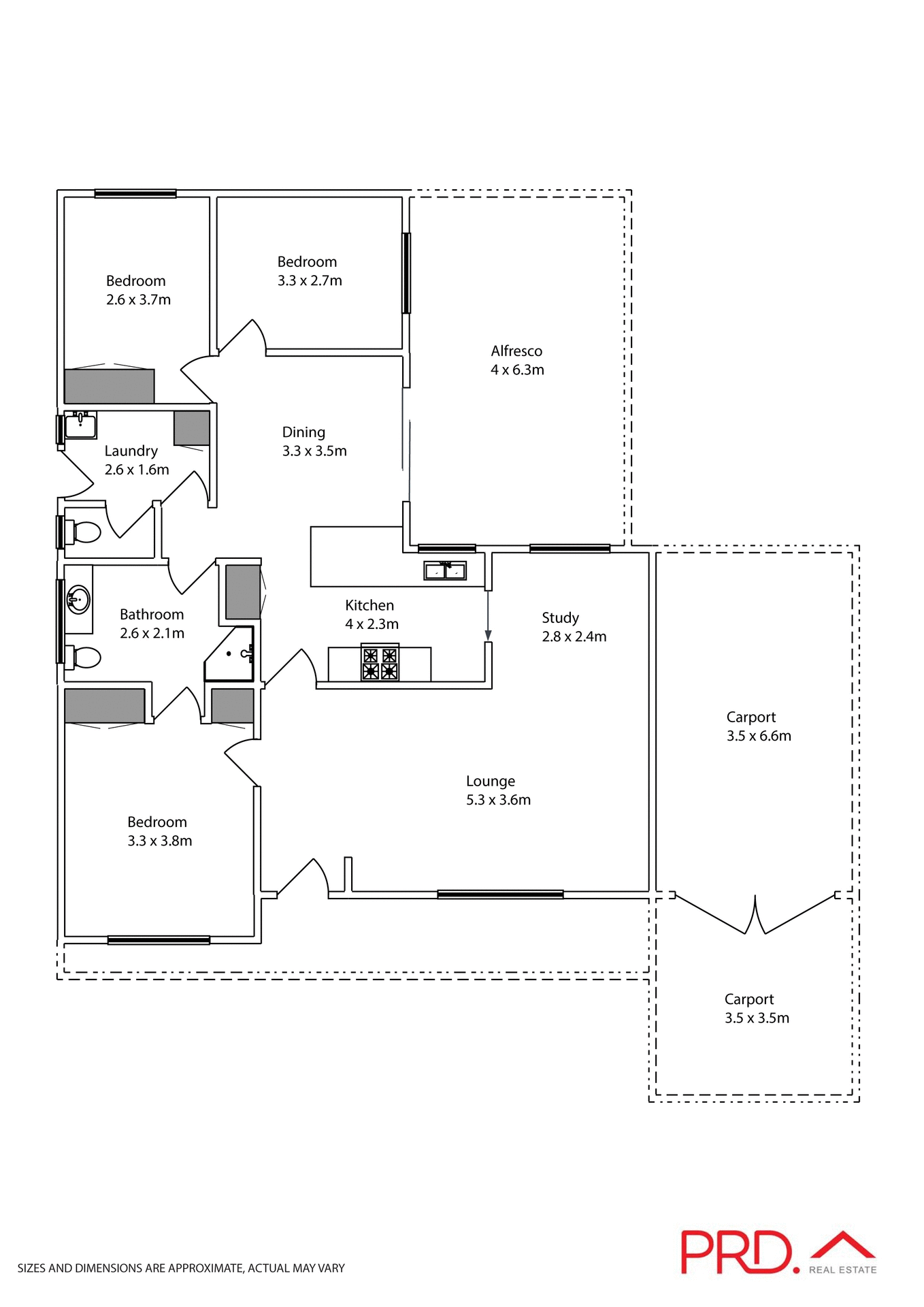
listing rooms 3
listing bathrooms 1
listing parking 1
Land: 640 sqm

Outstanding Investment Opportunity

This neatly presented brick veneer home, set on a generous 640m2 (approx.) allotment, presents a prime opportunity for investors or homebuyers alike. Step inside to discover a spacious, light-filled L-shaped lounge and formal dining area, complete with a cozy wood fire heater and timber look floorboards. The well-appointed kitchen features electric oven, a gas cooktop, dishwasher, ample cupboard space, and a convenient breakfast bar. It seamlessly connects to the separate family/dining area, which openly flows out onto to a large, undercover paved outdoor entertaining area - perfect for year-round enjoyment. The home offers three spacious bedrooms, all with built in robes, the master boasting direct access to the main bathroom set up as a semi en-suite. Additional highlights include a separate laundry, additional toilet, near-new blinds throughout, ducted evaporative cooling, an enclosed carport, garden shed, and established low maintenance gardens and lawns. Currently leased at $470 per week, this is a great versatile and appealing opportunity.

Agents

Nearby Schools

About mildura

median House price

551500

suburb growth

18.5%

median House rent

500

suburb rental yield

4.7%
Find Out More

Similar Properties

Source: Suburb Flyover Report Series, APM Pricefinder. PRD does not give any warranty in relation to the accuracy of the information contained in this report. If you intend to rely upon the information contained herein, you must take note that the Information, figures and projections have been provided by various sources and have not been verified by us. We have no belief one way or the other in relation to the accuracy of such information, figures and projections. PRD will not be liable for any loss or damage resulting from any statement, figure, calculation or any other information that you rely upon that is contained in the material. Prepared by PRD Research © All medians and volumes are calculated by PRD Research. Use with written permission only. All other responsibilities disclaimed.

Floorplan 1

Listing Enquiry

Listing Enquiry

1
2
3

Your Details

1
2
3

Your Enquiry

This site is protected by reCAPTCHA and the Google Privacy Policy and Terms of Service apply.

There was an error sending your enquiry. Please fill all required fields or try again later.

1
2
3

Thank you for your enquiry!

We look forward to assisting you.

Explore

PRD

 Connect with us

arrow