PRD Mildura 119 Langtree Avenue Mildura, VIC, 3500 03 5022 7750
Request An Appraisal

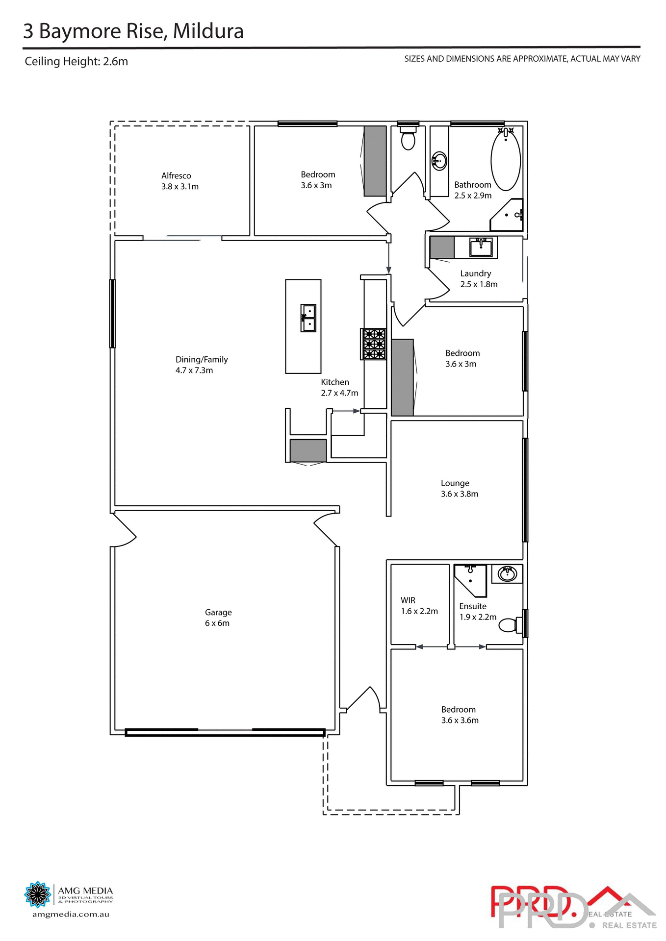
3 Baymore Rise
mildura
VIC, 3500

LEASED

listing rooms 3
listing bathrooms 2
listing parking 2
Land: 452 sqm

BRAND NEW HOME IN EXCELLENT LOCATION

This brand new three-bedroom home is located in a new subdivision close to sporting ovals, local schools, and Mildura's main shopping centre.
It features 3 generously sized bedrooms with built-in storage, including a master bedroom with an ensuite, plus 2 stylish bathrooms finished with first-class fittings. A separate lounge plus open plan living and meals area, with a modern kitchen and butler's pantry. Ducted, reverse cycle heating and cooling throughout. Outside, a low-maintenance yard with genuine side access and an outdoor living area ideal for winding down. 7-star energy rating offers improved energy efficiency and reduced running costs. Available now!

Agents

Nearby Schools

About mildura

median House price

555000

suburb growth

19.2%

median House rent

500

suburb rental yield

4.7%
Find Out More

Similar Properties

Source: Suburb Flyover Report Series, APM Pricefinder. PRD does not give any warranty in relation to the accuracy of the information contained in this report. If you intend to rely upon the information contained herein, you must take note that the Information, figures and projections have been provided by various sources and have not been verified by us. We have no belief one way or the other in relation to the accuracy of such information, figures and projections. PRD will not be liable for any loss or damage resulting from any statement, figure, calculation or any other information that you rely upon that is contained in the material. Prepared by PRD Research © All medians and volumes are calculated by PRD Research. Use with written permission only. All other responsibilities disclaimed.

Floorplan 1

Listing Enquiry

Listing Enquiry

1
2
3

Your Details

1
2
3

Your Enquiry

This site is protected by reCAPTCHA and the Google Privacy Policy and Terms of Service apply.

There was an error sending your enquiry. Please fill all required fields or try again later.

1
2
3

Thank you for your enquiry!

We look forward to assisting you.

Explore

PRD

 Connect with us

arrow