PRD Mildura 119 Langtree Avenue Mildura, VIC, 3500 03 5022 7750
Request An Appraisal

76 Chaffey Street
merbein
VIC, 3505

SOLD

Sold for $515,000

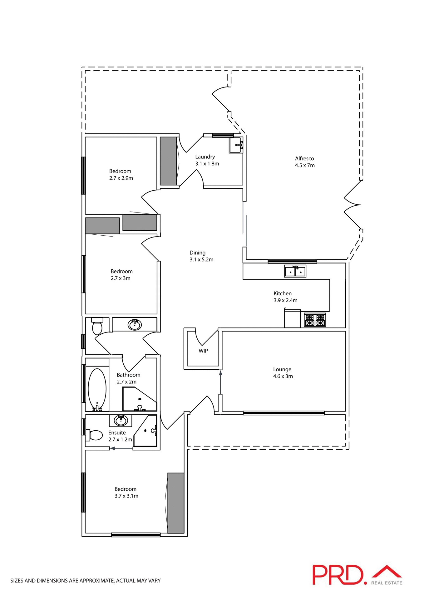
listing rooms 3
listing bathrooms 2
listing parking 4
Land: 1853 sqm

Spacious Family Living with Dual Access & Future Potential (STCA)

Positioned on an expansive 1,853m² (approx.) allotment with valuable dual access from both Chaffey Avenue and Foster Street, this well-maintained residence delivers comfortable family living with exciting long-term opportunity. The home offers three generous bedrooms, each fitted with built-in robes, while the master bedroom enjoys a modern, updated ensuite that adds a fresh and contemporary feel. The central family bathroom is thoughtfully designed with both bath and shower, complemented by a separate toilet and external wash basin - a practical feature for growing families.

Year-round comfort is assured with evaporative cooling, reverse cycle heating and cooling servicing both the lounge and family/dining areas, as well as ceiling fans throughout the home. The character-filled kitchen adjoins the dining area and combines charm with functionality, featuring a dishwasher, new electric cooktop and oven, and ample cupboard space. New timber-look flooring enhances the interior, creating a warm and modern finish throughout.

Outdoors, the property continues to impress. A paved undercover entertaining area provides a semi-enclosed space protected by a shade sail, making it ideal for gatherings in all seasons. Established gardens and mature trees surround the home, creating privacy and a peaceful setting. The yard also features a practical shed/workshop, an additional garden shed for storage, a chicken pen, and a 6.6kW solar system to assist with energy efficiency. With its substantial land size, dual street frontage and subdivision potential (STCA), this property presents a rare opportunity for families seeking space, tradies needing room for equipment, or buyers looking to secure future development potential.

A versatile offering in a sought-after Merbein location, combining lifestyle, practicality and long-term value.

Agents

Nearby Schools

About merbein

median House price

426500

suburb growth

9.4%

median House rent

475

suburb rental yield

5.8%

Similar Properties

Source: Suburb Flyover Report Series, APM Pricefinder. PRD does not give any warranty in relation to the accuracy of the information contained in this report. If you intend to rely upon the information contained herein, you must take note that the Information, figures and projections have been provided by various sources and have not been verified by us. We have no belief one way or the other in relation to the accuracy of such information, figures and projections. PRD will not be liable for any loss or damage resulting from any statement, figure, calculation or any other information that you rely upon that is contained in the material. Prepared by PRD Research © All medians and volumes are calculated by PRD Research. Use with written permission only. All other responsibilities disclaimed.

Floorplan 1

Listing Enquiry

Listing Enquiry

1
2
3

Your Details

1
2
3

Your Enquiry

This site is protected by reCAPTCHA and the Google Privacy Policy and Terms of Service apply.

There was an error sending your enquiry. Please fill all required fields or try again later.

1
2
3

Thank you for your enquiry!

We look forward to assisting you.

Explore

PRD

 Connect with us

arrow