PRD Mildura 119 Langtree Avenue Mildura, VIC, 3500 03 5022 7750
Request An Appraisal

56 Verdi Boulevarde
irymple
VIC, 3498

$785,000 - $863,000

listing rooms 4
listing bathrooms 2
listing parking 2
Land: 688 sqm

Modern Family Living with Space & Comfort

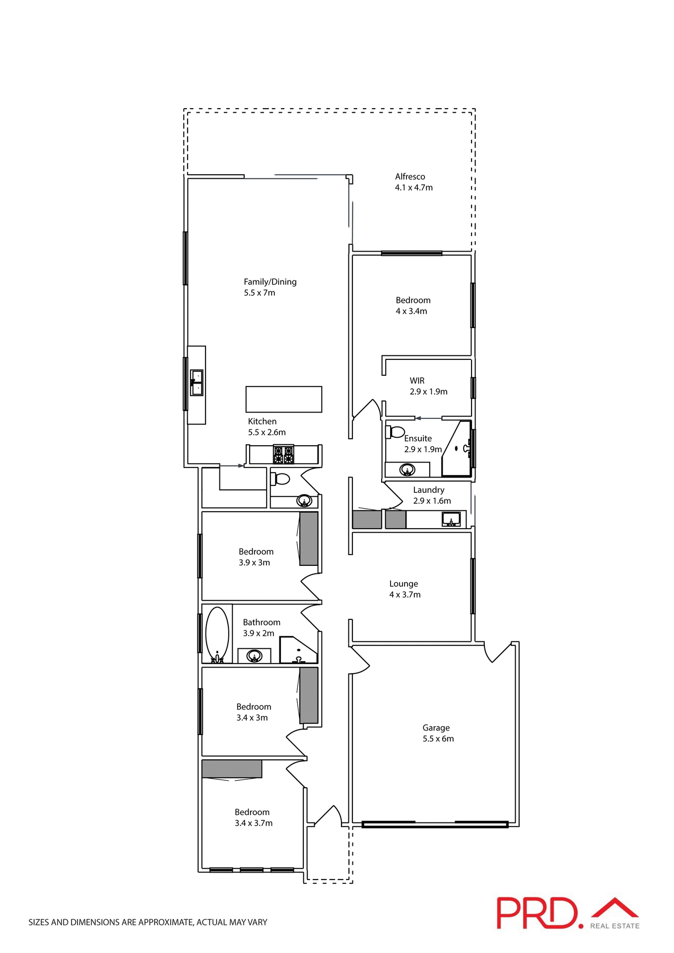
This immaculately presented four-bedroom home offers contemporary style, generous proportions and practical family living throughout. Designed with comfort and functionality in mind, the home delivers a seamless layout suited to both everyday life and entertaining. At the centre of the home is the light-filled open plan kitchen and family area, creating a welcoming hub for gathering with family and friends. The modern kitchen is well appointed with gas cooking, a dishwasher, a walk-in pantry and a spacious stone island bench that provides excellent preparation space and storage. A separate lounge room adds versatility, ideal as a media room, children's retreat or quiet sitting area. The main bedroom is thoughtfully positioned and features a walk-in robe and private ensuite, while the remaining three bedrooms are all fitted with built-in robes and serviced by a central family bathroom. Stepping outside, the undercover alfresco area offers the perfect space for year-round entertaining and relaxed outdoor living. The good-sized backyard includes rear access, an automatic watering system for convenience, and a garden shed for additional storage. Additional features include a double lock-up garage and ducted reverse-cycle heating and cooling to ensure comfort in every season. With modern finishes, neutral tones and a well-designed floorplan, this home presents an excellent opportunity for families seeking space, quality and easy living.

Agents

Nearby Schools

About irymple

median House price

650000

suburb growth

6.6%

median House rent

590

suburb rental yield

4.7%

Similar Properties

Source: Suburb Flyover Report Series, APM Pricefinder. PRD does not give any warranty in relation to the accuracy of the information contained in this report. If you intend to rely upon the information contained herein, you must take note that the Information, figures and projections have been provided by various sources and have not been verified by us. We have no belief one way or the other in relation to the accuracy of such information, figures and projections. PRD will not be liable for any loss or damage resulting from any statement, figure, calculation or any other information that you rely upon that is contained in the material. Prepared by PRD Research © All medians and volumes are calculated by PRD Research. Use with written permission only. All other responsibilities disclaimed.

Floorplan 1

Listing Enquiry

Listing Enquiry

1
2
3

Your Details

1
2
3

Your Enquiry

This site is protected by reCAPTCHA and the Google Privacy Policy and Terms of Service apply.

There was an error sending your enquiry. Please fill all required fields or try again later.

1
2
3

Thank you for your enquiry!

We look forward to assisting you.

Explore

PRD

 Connect with us

arrow