PRD Queanbeyan Shop 2, 72 Monaro Street, Queanbeyan NSW 02 5116 6611
Request An Appraisal

39 Jamaleopa Road
manar
NSW, 2622

SOLD

Sold for $799,000

listing rooms 4
listing bathrooms 2
listing parking 4
Land: 5.24 Hectare

Your new rural lifestyle awaits!

Have you always dreamed of owning your very own rural property, only to be dissapointed by lack of options available in the sub $1M range?
If that sounds familiar then inspection of 39 Jamaleopa Road will be sure to excite you.

Just imagine what life would be like for you and the whole family. Weekends including horse riding, playing with the animals, riding motorbikes, go yabbying in the dam, getting fresh eggs from the chooks or growing your very own produce, this could all be your new reality.

Ideally situated on Jamaleopa Road in Manar, you will find this great rural package at an affordable price. The 4 bedroom ensuite home has been perfectly sited to capture views over the 5.24 Hectares (approx 12.9 acres) as well as enjoying a sunny Northerly aspect. The full length front verandah provides a terrific option for a morning coffee and is equally well suited to sitting back with a cool drink whilst watching the kids and pets play.

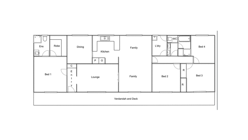
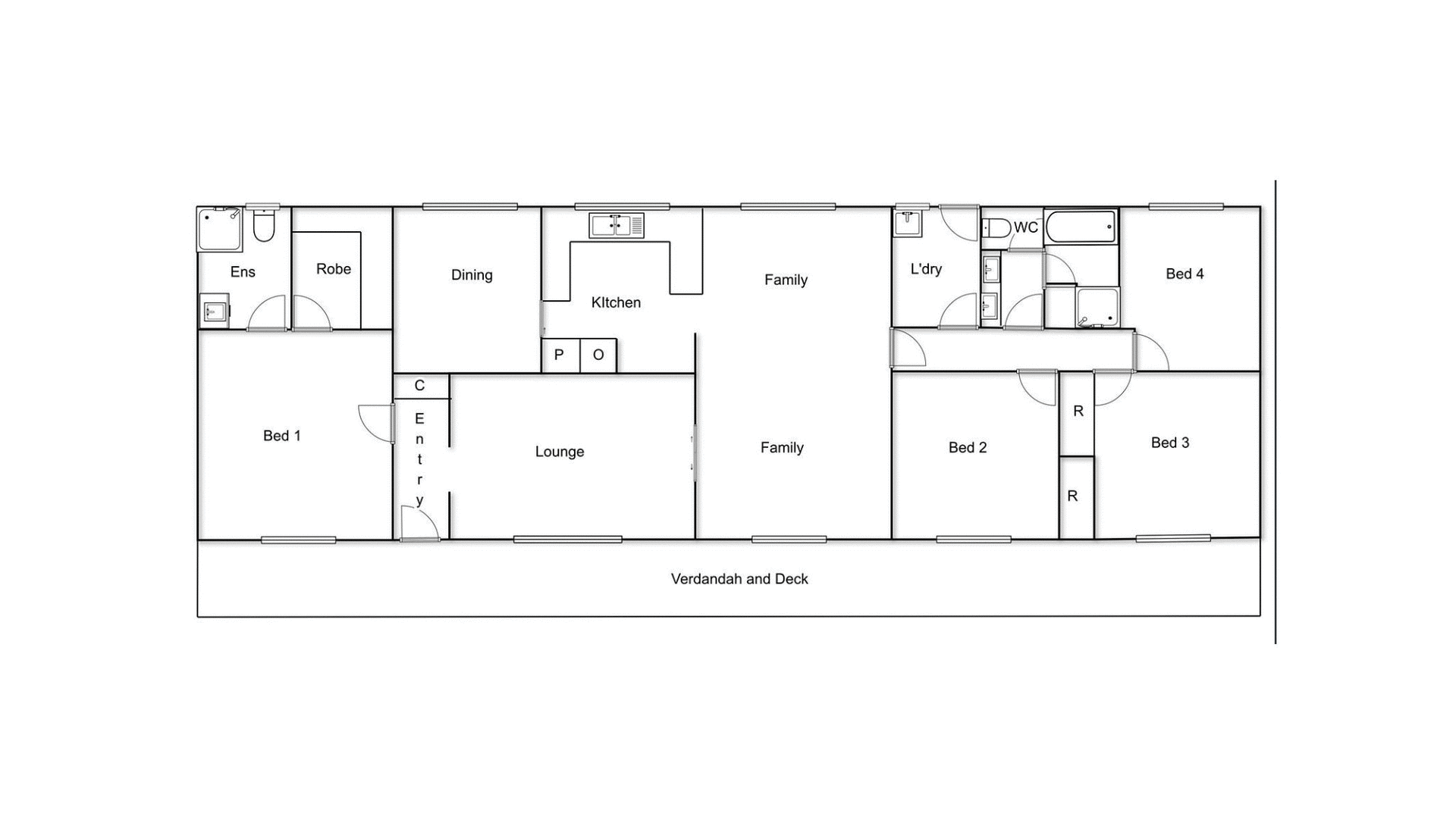
The layout of the home includes 4 bedrooms with ensuite to main, spacious living zones with formal living including high ceilings and slow combustion fire, generous family bathroom and laundry and large covered front verandah.

A perfect option for those with horses or other livestock requirements, the block is well divided into seperate paddocks with 2 dams. There is also a fully fenced chicken/dog run ready and waiting for the lucky new residents.

A large enclosed machinery shed plus another large open bay shed will easily cater for the vehicles as well as other storage requirements with ease.

To complete this great package there is also mains plus solar power and extra large domestic water tank.

This is certainly a very rare opportunity to purchase a rural property with a large family home at such an affordable price.
Be quick to avoid dissapointment.

DISCLAIMER. We have in preparing this document used our best endeavours to ensure the information contained is true and accurate but accept no responsibility and disclaim all liability in respect to any errors, omissions, inaccuracies, or misstatements contained. Prospective purchasers should make their own enquiries to verify the information contained in this document..

Agents

About manar

median House price

350000

median House rent

535

suburb rental yield

7.9%

Similar Properties

Source: Suburb Flyover Report Series, APM Pricefinder. PRD does not give any warranty in relation to the accuracy of the information contained in this report. If you intend to rely upon the information contained herein, you must take note that the Information, figures and projections have been provided by various sources and have not been verified by us. We have no belief one way or the other in relation to the accuracy of such information, figures and projections. PRD will not be liable for any loss or damage resulting from any statement, figure, calculation or any other information that you rely upon that is contained in the material. Prepared by PRD Research © All medians and volumes are calculated by PRD Research. Use with written permission only. All other responsibilities disclaimed.

Floorplan 1

Listing Enquiry

Listing Enquiry

1
2
3

Your Details

1
2
3

Your Enquiry

This site is protected by reCAPTCHA and the Google Privacy Policy and Terms of Service apply.

There was an error sending your enquiry. Please fill all required fields or try again later.

1
2
3

Thank you for your enquiry!

We look forward to assisting you.

Explore

PRD

 Connect with us

arrow