Shepparton 03 5821 5566
Nagambie 03 5794 1855
Request An Appraisal

6 / 2 Blayney Lane
nagambie
VIC, 3608

$600,000 - $630,000

listing rooms 3
listing bathrooms 1
listing parking 2
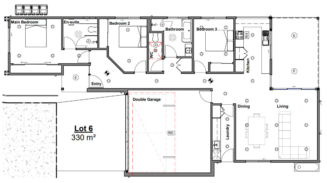
Land: 330 sqm

Brand-New Boutique Home Near Lake Nagambie

Introducing an exceptional off-the-plan opportunity in the heart of Nagambie. Positioned within a boutique development just moments from Lake Nagambie and the town centre, Lot 6 at 2 Blayney Lane offers modern living, low-maintenance design, and unbeatable convenience.

Set on approximately 330sqm, this soon-to-be-constructed 3-bedroom, 2-bathroom home with double garage will deliver a high-quality finish ideal for first-home buyers, downsizers, retirees, or investors seeking strong long-term demand in a rapidly growing regional township.

A private driveway leads into a peaceful enclave of newly built homes, with civil works well underway. This location provides the rare blend of privacy while still being walking distance to shops, cafés, the recreation reserve, and the lake's waterfront.

Agents

Nearby Schools

About nagambie

median House price

615000

median House rent

485

suburb rental yield

4.1%

Similar Properties

Source: Suburb Flyover Report Series, APM Pricefinder. PRD does not give any warranty in relation to the accuracy of the information contained in this report. If you intend to rely upon the information contained herein, you must take note that the Information, figures and projections have been provided by various sources and have not been verified by us. We have no belief one way or the other in relation to the accuracy of such information, figures and projections. PRD will not be liable for any loss or damage resulting from any statement, figure, calculation or any other information that you rely upon that is contained in the material. Prepared by PRD Research © All medians and volumes are calculated by PRD Research. Use with written permission only. All other responsibilities disclaimed.

Floorplan 1

Listing Enquiry

Listing Enquiry

1
2
3

Your Details

1
2
3

Your Enquiry

This site is protected by reCAPTCHA and the Google Privacy Policy and Terms of Service apply.

There was an error sending your enquiry. Please fill all required fields or try again later.

1
2
3

Thank you for your enquiry!

We look forward to assisting you.

Explore

PRD

 Connect with us

arrow