PRD Tannum Sands 93 Hampton Dr Tannum Sands, QLD, 4680 07 4973 7799
Request An Appraisal

3 COLYER Avenue
tannum sands
QLD, 4680

SOLD

Sold for $850,000

listing rooms 5
listing bathrooms 3
listing parking 3
Land: 515 sqm

FOR THE EXCLUSIVE FEW BY THE BEACH!

Are you looking for a sophisticated family home right by the beach? Then 3 Colyer Avenue in Tannum Sands is the property for you! This beachfront property provides captivating ocean breezes, and is bound to impress, absolutely prime location to the beach across the road.

FEATURES:
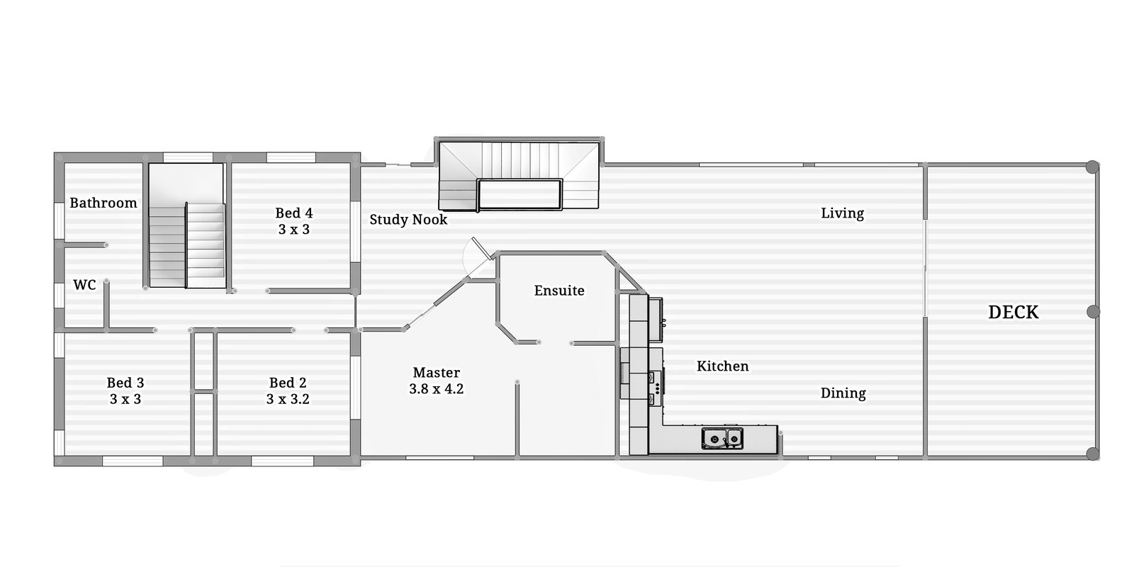
DOWNSTAIRS:
- Double timber door for your front entrance
- Bedroom with A/C & walk in robe
- Kitchenette with sink and fridge area
- Large office area that could be used as an extra bedroom
- Living area with A/C
- Bathroom with spacious shower and toilet
- Spacious laundry
- 2 Internal stairs up to second story
- Fully fenced yard with security gate
- Double lock up garage
- High shed perfect for a boat
- Carport area or utilize as downstairs entertaining
UPSTAIRS:
- Second open plan living with timber floors
- Luxury kitchen with gas stove top, electric oven, dish washer, stone bench top and plenty of cupboard space.
- Master bedroom is serviced with A/C, ensuite, and walk in robe
- 2 x bedrooms with with A/C, fans, and built in robes
- Main bathroom with separate toilet and shower over bath
- Study or office that could be used as a 5th bedroom
- Lovely timber deck overlooking horizon pool and ocean views.

Call Deardrie today to arrange an inspection!
Disclaimer: The images are indicative only and are presented for illustrative purposes. While we strive to present the actual condition of the property, we strongly suggest that prospective buyers take the time to visit the property.

Agents

Nearby Schools

About tannum sands

median House price

780000

suburb growth

25.8%

median House rent

580

suburb rental yield

3.9%
Find Out More

Similar Properties

Source: Suburb Flyover Report Series, APM Pricefinder. PRD does not give any warranty in relation to the accuracy of the information contained in this report. If you intend to rely upon the information contained herein, you must take note that the Information, figures and projections have been provided by various sources and have not been verified by us. We have no belief one way or the other in relation to the accuracy of such information, figures and projections. PRD will not be liable for any loss or damage resulting from any statement, figure, calculation or any other information that you rely upon that is contained in the material. Prepared by PRD Research © All medians and volumes are calculated by PRD Research. Use with written permission only. All other responsibilities disclaimed.

Listing Enquiry

Listing Enquiry

1
2
3

Your Details

1
2
3

Your Enquiry

This site is protected by reCAPTCHA and the Google Privacy Policy and Terms of Service apply.

There was an error sending your enquiry. Please fill all required fields or try again later.

1
2
3

Thank you for your enquiry!

We look forward to assisting you.

Explore

PRD

 Connect with us

arrow