PRD Tweed Coast 1 Pearl Street Kingscliff, NSW, 2487 02 6674 5488
Request An Appraisal

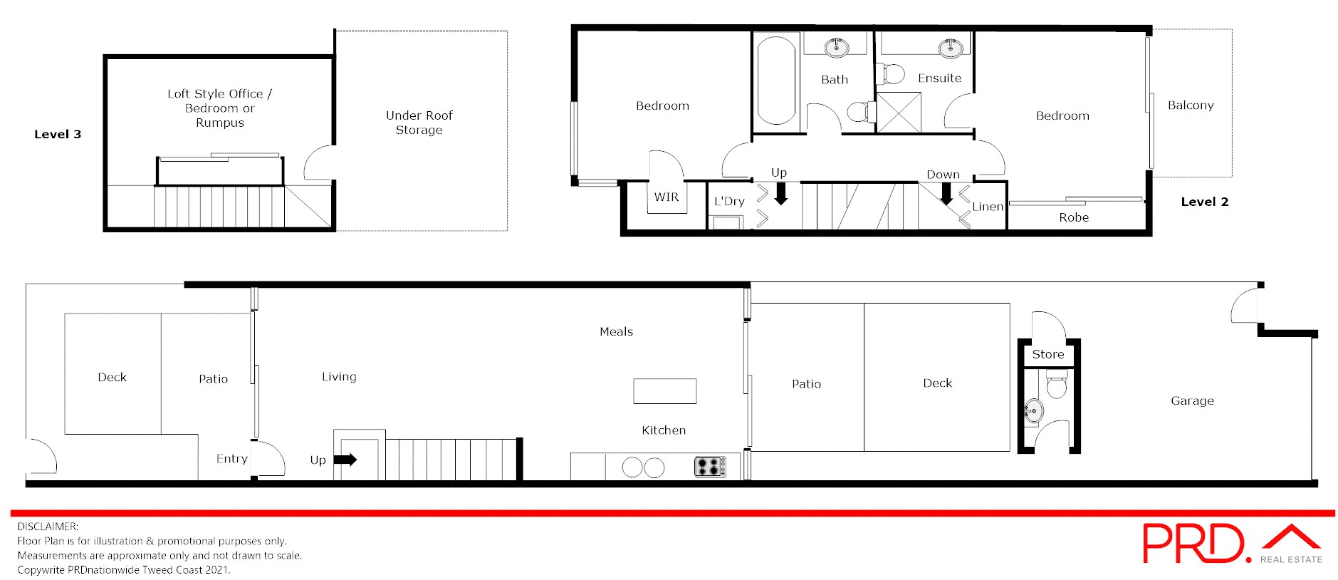
4 / 30 She Oak Lane
casuarina
NSW, 2487

SOLD

Sold for $830,000

listing rooms 3
listing bathrooms 2
listing parking 1
Property: 115 sqm Land: 229 sqm

SOLD by Glen Godbee

* Perfectly positioned, so close to the beach, ready for you to enjoy this low maintenance, coastal lifestyle.
* Light, bright open plan living area on the ground level with access to patio's at both the front and rear of the property.
* Two bedrooms and two bathrooms are located on the mid-level with the main bedroom featuring its own north facing balcony and ensuite.
* The third level is a loft style rumpus/third bedroom or perfect teenage retreat. You can also access under roof storage through this area.
* Timber kitchen features island bench and stainless-steel appliances including dishwasher.
* An easy stroll the closest beach access point and beachfront cycle path which takes you to Kingscliff in the North & Cabarita in the South.
* Currently tenanted until 22nd February 2022 at $600 per week.
* Minimum 48 hours-notice is required for inspections.
* Strata Levies are $120 per week and Council Rates are $50 per week.
* The complex is pet friendly subject to owners corporation approval.
* Two Street frontage with the driveway accessed off She-Oak Lane and the front courtyard accessed off Kamala Crescent.
* The Casuarina town centre including Coles Supermarket is approximately 1km away.
* Call now to arrange your inspection time!

Agents

Nearby Schools

About casuarina

median House price

2257500

suburb growth

7.8%

median House rent

1450

suburb rental yield

3.3%

Similar Properties

Source: Suburb Flyover Report Series, APM Pricefinder. PRD does not give any warranty in relation to the accuracy of the information contained in this report. If you intend to rely upon the information contained herein, you must take note that the Information, figures and projections have been provided by various sources and have not been verified by us. We have no belief one way or the other in relation to the accuracy of such information, figures and projections. PRD will not be liable for any loss or damage resulting from any statement, figure, calculation or any other information that you rely upon that is contained in the material. Prepared by PRD Research © All medians and volumes are calculated by PRD Research. Use with written permission only. All other responsibilities disclaimed.

Floorplan 1

Listing Enquiry

Listing Enquiry

1
2
3

Your Details

1
2
3

Your Enquiry

This site is protected by reCAPTCHA and the Google Privacy Policy and Terms of Service apply.

There was an error sending your enquiry. Please fill all required fields or try again later.

1
2
3

Thank you for your enquiry!

We look forward to assisting you.

Explore

PRD

 Connect with us

arrow