PRD Whitsunday , ,
Request An Appraisal

Lot 7 The Beaches, Funnel Bay
airlie beach
QLD, 4802

SOLD
listing rooms 4
listing bathrooms 3
listing parking 3

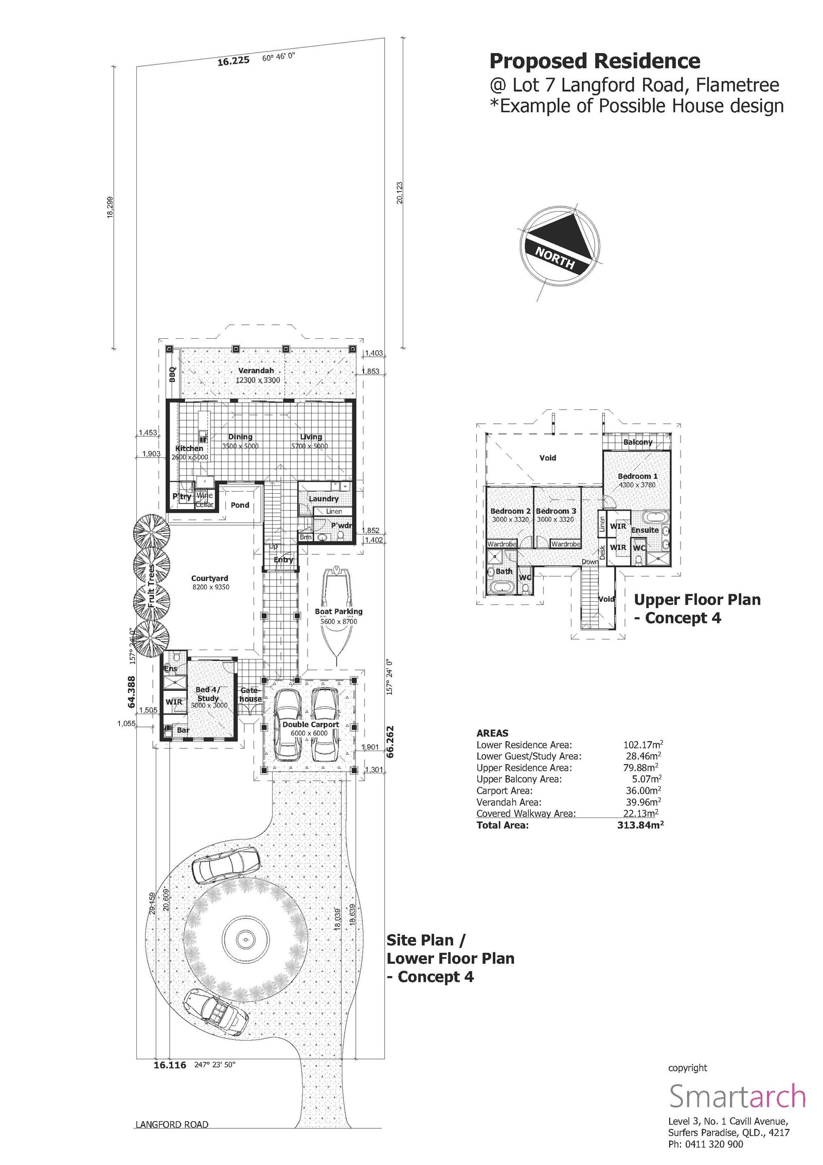
"Manly" Beach Front Villa

Lot 7 The Beaches 4 bed, 3 bath, 3 car, Pool $1,649,000

Flametree, nestled on the shores of Funnel Bay, delivers a unique, inspired and integrated residential development, situated in a gated, exclusive enclave, offering an exquisite coastal lifestyle opportunity.

Set in an absolutely premier beachfront location, this is one of only two remaining lots, offering exceptionally designed and uniquely crafted homes. This, together with the beach right on your door step will inspire the most discerning person looking for a change of pace and lifestyle..

The iconic, architecturally designed beachfront Villa with 314 m² of living , supremely generous balconies and open plan living spaces, is oriented toward the stunning, uninterrupted views of the bay. The gorgeous open plan lifestyle, is complete with gourmet kitchen facilities, open areas and views from both levels.

Your new home includes your own private road into your double garage, with additional drive through space to secure your boat, making this home one of a kind. All of this, only a 5-minute drive to the bustling Airlie Beach.

Never to be repeated, this opportunity definitely won't last.

With exciting development plans going forward, this will be an investors' dream and a wonderful opportunity for capital growth.

Call me now for further details

wwww.funnelbay.com.au

Agents

Nearby Schools

About airlie beach

median House price

2105000

suburb growth

68.4%

median House rent

950

suburb rental yield

2.3%

Similar Properties

Source: Suburb Flyover Report Series, APM Pricefinder. PRD does not give any warranty in relation to the accuracy of the information contained in this report. If you intend to rely upon the information contained herein, you must take note that the Information, figures and projections have been provided by various sources and have not been verified by us. We have no belief one way or the other in relation to the accuracy of such information, figures and projections. PRD will not be liable for any loss or damage resulting from any statement, figure, calculation or any other information that you rely upon that is contained in the material. Prepared by PRD Research © All medians and volumes are calculated by PRD Research. Use with written permission only. All other responsibilities disclaimed.

Listing Enquiry

Listing Enquiry

1
2
3

Your Details

1
2
3

Your Enquiry

This site is protected by reCAPTCHA and the Google Privacy Policy and Terms of Service apply.

There was an error sending your enquiry. Please fill all required fields or try again later.

1
2
3

Thank you for your enquiry!

We look forward to assisting you.

Explore

PRD

 Connect with us

arrow