PRD Broome 3 Short Street, Broome, WA 08 9192 1988
Request An Appraisal

91b Herbert Street
broome
WA, 6725

SOLD

Sold for $478,000

listing rooms 3
listing bathrooms 2
listing parking 2
Property: 139 sqm Land: 571 sqm

Fuss-free and Fabulous

Herbert Street is centrally located, close to Broome's revitalised Town Beach precinct. Property is HOT here and this listing is no exception.

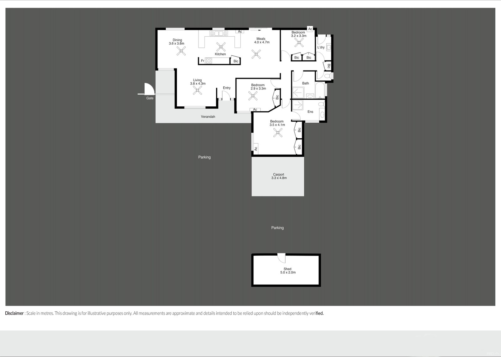
Behind the gated perimeter and down the driveway to the rear of the block, nestles a delightful three-bedder complete with Master Suite, multiple interior living spaces and a 5m x 2m shed.

All three bedrooms are generous in size with built-in robes, aircons and ceiling fans. An ensuite and four-door robe in the Master ensures complete comfort in an already great home. The main bathroom boasts a tub, great for growing families or even a selfish retreat after a long day.

This semi-open floorplan hosts the kitchen in the centre, with three living areas surrounding. Dining, living and office. Or activity room or whatever you like! With a flexible layout like this, you can truly customise it to suit your lifestyle. Plus, the kitchen cabinetry is original and abundant with a super handy pantry.

On the outside, enjoy low maintenance landscaping, an undercover porch and space for your imagination to run wild. Throw in a carport, nifty shed and loads of parking space, and you have yourself the complete package.

To secure your future in Broome, call Rueben NOW - 0408 446 123

Agents

Nearby Schools

About broome

median House price

646750

median House rent

1000

suburb rental yield

8.0%
Find Out More

Similar Properties

Source: Suburb Flyover Report Series, APM Pricefinder. PRD does not give any warranty in relation to the accuracy of the information contained in this report. If you intend to rely upon the information contained herein, you must take note that the Information, figures and projections have been provided by various sources and have not been verified by us. We have no belief one way or the other in relation to the accuracy of such information, figures and projections. PRD will not be liable for any loss or damage resulting from any statement, figure, calculation or any other information that you rely upon that is contained in the material. Prepared by PRD Research © All medians and volumes are calculated by PRD Research. Use with written permission only. All other responsibilities disclaimed.

Listing Enquiry

Listing Enquiry

1
2
3

Your Details

1
2
3

Your Enquiry

This site is protected by reCAPTCHA and the Google Privacy Policy and Terms of Service apply.

There was an error sending your enquiry. Please fill all required fields or try again later.

1
2
3

Thank you for your enquiry!

We look forward to assisting you.

Explore

PRD

 Connect with us

arrow