PRD Broome 3 Short Street, Broome, WA 08 9192 1988
Request An Appraisal

31 Clementson Street
broome
WA, 6725

SOLD

Sold for $1,500,000

listing parking 20
Land: 3009 sqm Property: 637 sqm

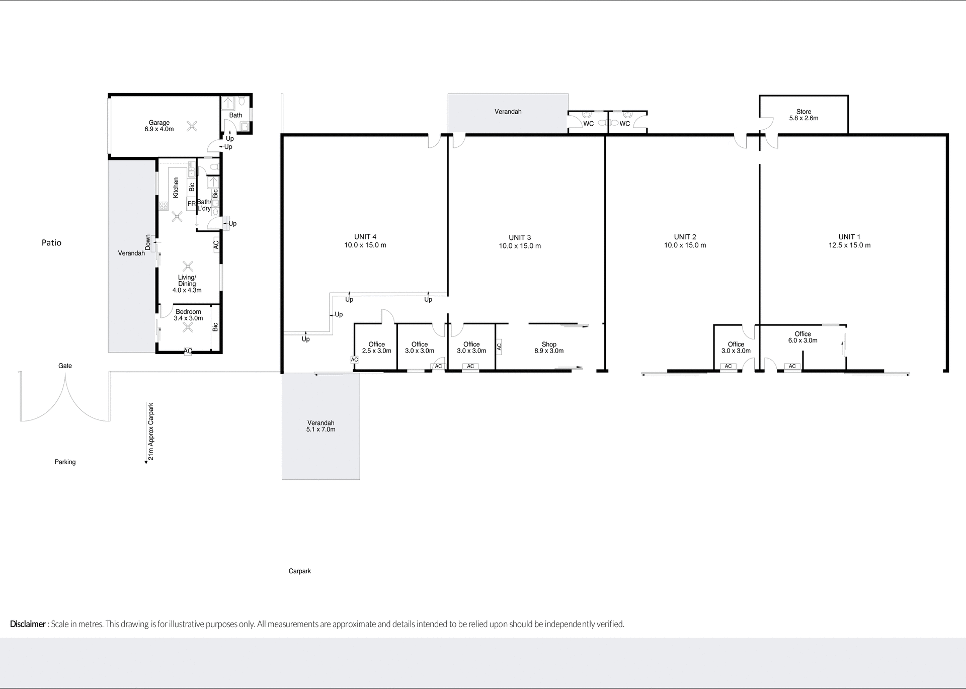
Lucrative Location

The light industrial area of Clementon Street is lined with some of Broome's most successful businesses. Number 31 is well known to the locals and provides situ for two hugely successful tenants.

In the hands of the current owner for almost 30 years, this is home to renowned favourite Tenderspot Butcher Co and locally owned Tyrepower franchise. They both operate in the same complex, each with two units to occupy.

The caretaker's cottage is situated to the rear of the block and has its own enclosed yard for convenience, security and privacy. This is a great spot for a single or couple, complete with light, bright interior, back and front patio verandahs and ample parking inside the fence. Every effort has been made to turn this demountable into a permanent home, with full sized kitchen, bathroom. laundry and built-in robes. If you didn't want to run the show from here, you could always lease it out!

Both tenancies enjoy high clearance warehouse access, shopfront / office / reception aspects to the fronts, and loads of parking for customers, suppliers and staff thanks to the sizeable portion of cleared land.

Both investors and buyers intending to occupy are invited to make enquiries. A property of this calibre does not come about often, so call Rueben NOW: 0408 446 123.

• Unit 1: 12.5x15m
• Unit 2, 3 & 4: 10x15m each
• Two Commercial tenancies in place, occupying two units each
• Caretaker's accommodation with private enclosed yard
• Prime commercial opportunity in the LIA
• Bitumen parking and good access to all of the shed and care taker residence
• 3009m2 in total

Note: the property does not include tenants' fit out of offices, freezers, racks etc. The sale is for the shed, caretaker's building and land only.

Agents

About broome

median House price

685000

median House rent

1000

suburb rental yield

7.6%
Find Out More

Similar Properties

Source: Suburb Flyover Report Series, APM Pricefinder. PRD does not give any warranty in relation to the accuracy of the information contained in this report. If you intend to rely upon the information contained herein, you must take note that the Information, figures and projections have been provided by various sources and have not been verified by us. We have no belief one way or the other in relation to the accuracy of such information, figures and projections. PRD will not be liable for any loss or damage resulting from any statement, figure, calculation or any other information that you rely upon that is contained in the material. Prepared by PRD Research © All medians and volumes are calculated by PRD Research. Use with written permission only. All other responsibilities disclaimed.

Floorplan 1

Listing Enquiry

Listing Enquiry

1
2
3

Your Details

1
2
3

Your Enquiry

This site is protected by reCAPTCHA and the Google Privacy Policy and Terms of Service apply.

There was an error sending your enquiry. Please fill all required fields or try again later.

1
2
3

Thank you for your enquiry!

We look forward to assisting you.

Explore

PRD

 Connect with us

arrow