PRD Laurieton 68 Bold Street, Laurieton, NSW 2443 02 6559 9400
Request An Appraisal

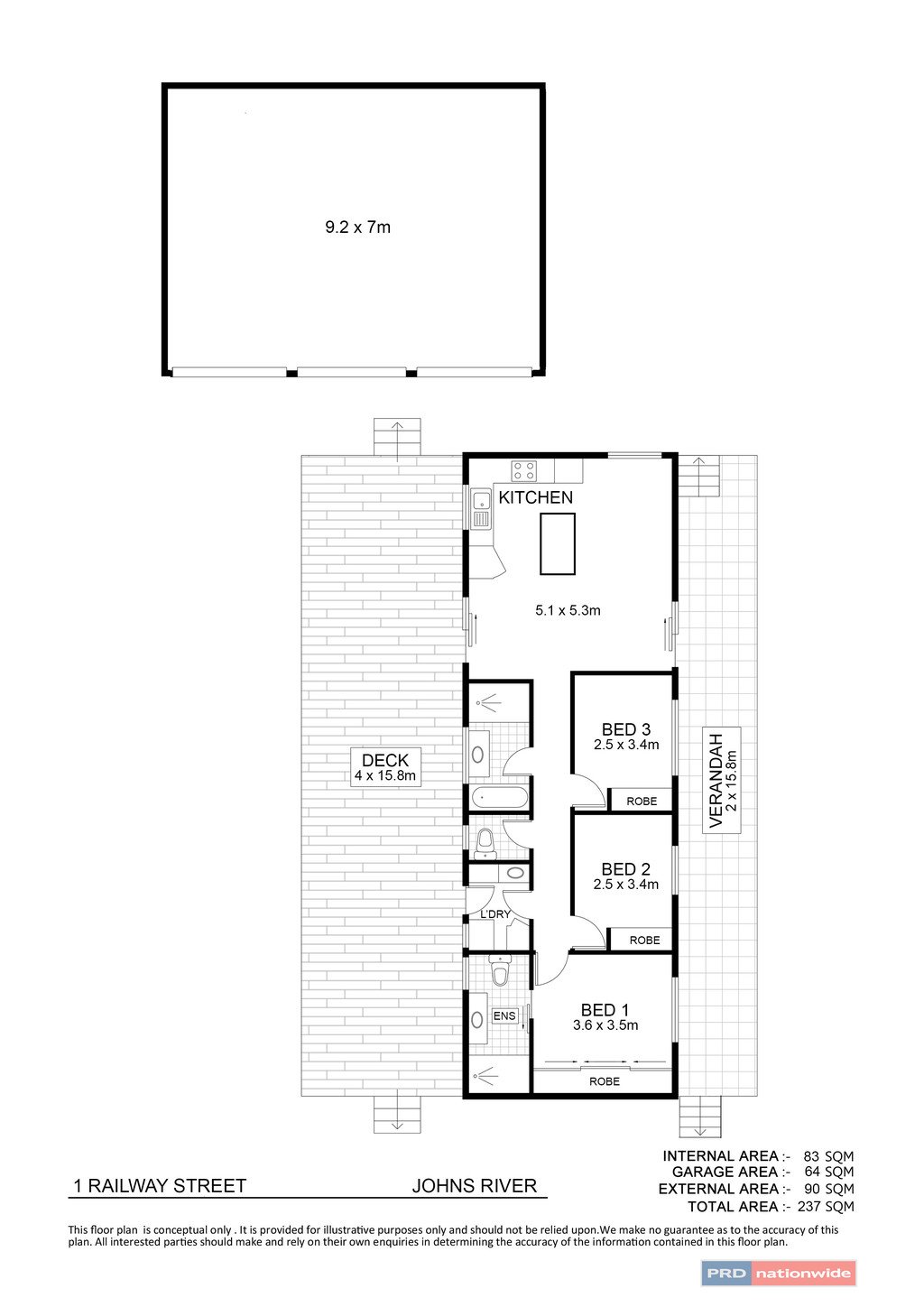
1 Railway Street
johns river
NSW, 2443

SOLD

Sold for $385,000

listing rooms 3
listing bathrooms 2
listing parking 3
Land: 5516 sqm

Near New On A Budget

Have you been looking for a new home but have just found all of them to be out of reach? Well look no further as this near new home is affordable enough to suit almost anyone's budget. All this plus being situated on over an acre of land, the opportunity that you have been waiting for is now right in front of you.
* Neat 3 bedroom home all with built-ins and ensuite to main.
* Large timber decking overlooking parklike block and treeline.
* Abundance of storage with large 3 bay shed plus double Garden Shed.
* Modern and functional kitchen with island bench and vaulted ceiling.
* Level block with 5516sqm of land surrounding property.
* Less than 600m to tavern and cafe, and just 300m to local public school.
* Situated just over minutes to the heart of Laurieton and nearby beaches.

We have obtained all information from sources we believe to be reliable; however we cannot guarantee it's accuracy. Prospective purchasers are advised to carry out their own investigations.

Agents

Nearby Schools

About johns river

median House price

535000

Similar Properties

Source: Suburb Flyover Report Series, APM Pricefinder. PRD does not give any warranty in relation to the accuracy of the information contained in this report. If you intend to rely upon the information contained herein, you must take note that the Information, figures and projections have been provided by various sources and have not been verified by us. We have no belief one way or the other in relation to the accuracy of such information, figures and projections. PRD will not be liable for any loss or damage resulting from any statement, figure, calculation or any other information that you rely upon that is contained in the material. Prepared by PRD Research © All medians and volumes are calculated by PRD Research. Use with written permission only. All other responsibilities disclaimed.

Listing Enquiry

Listing Enquiry

1
2
3

Your Details

1
2
3

Your Enquiry

This site is protected by reCAPTCHA and the Google Privacy Policy and Terms of Service apply.

There was an error sending your enquiry. Please fill all required fields or try again later.

1
2
3

Thank you for your enquiry!

We look forward to assisting you.

Explore

PRD

 Connect with us

arrow