PRD Mildura 119 Langtree Avenue Mildura, VIC, 3500 03 5022 7750
Request An Appraisal

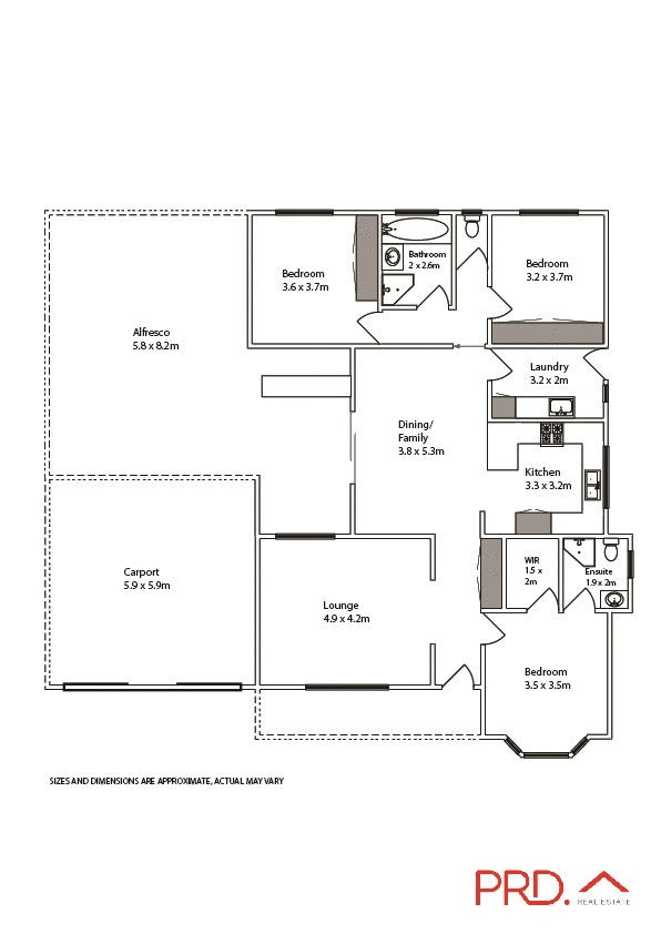
42 Panorama Drive
mildura
VIC, 3500

SOLD
listing rooms 4
listing bathrooms 2
listing parking 2
Land: 714 sqm

Family Entertainer in Leafy Panorama

This superbly presented, quality built home is guaranteed to impress! Combining a thoughtfully designed floor plan on a generous 714m2 (approx.) allotment with the added convenience of a first class location within minutes of schools and the Fifteenth Street Shopping Precinct. The home boasts a formal entrance, large formal lounge, solid timber kitchen complete with stainless steel oven, gas cooking, dishwasher and large pantry overlooking the open light and bright dining area. All three bedrooms are large with the master bed enjoying a feature bay window, WIR and stunning as new ensuite. The remaining bedrooms have BIR's and are conveniently located to the tiled family bathroom and separate laundry. Outside is absolutely brilliant including a huge undercover paved entertaining area with pitched roof, double carport with auto door, huge external fully lined rumpus room/teenage retreat with split system heating/cooling, garden shed and low maintenance landscaped gardens. Extras include near new Plantation shutters to windows in lounge & master bedroom, new carpet to lounge, fresh paintwork, solar gas boosted hot water service, split system reverse cycle air conditioner plus ducted evaporative cooling. Inspection is a must as it is impossible to find a better value or better appointed home in this price range.

Agents

Nearby Schools

About mildura

median House price

560000

suburb growth

20.3%

median House rent

500

suburb rental yield

4.6%
Find Out More

Similar Properties

Source: Suburb Flyover Report Series, APM Pricefinder. PRD does not give any warranty in relation to the accuracy of the information contained in this report. If you intend to rely upon the information contained herein, you must take note that the Information, figures and projections have been provided by various sources and have not been verified by us. We have no belief one way or the other in relation to the accuracy of such information, figures and projections. PRD will not be liable for any loss or damage resulting from any statement, figure, calculation or any other information that you rely upon that is contained in the material. Prepared by PRD Research © All medians and volumes are calculated by PRD Research. Use with written permission only. All other responsibilities disclaimed.

Floorplan 1

Listing Enquiry

Listing Enquiry

1
2
3

Your Details

1
2
3

Your Enquiry

This site is protected by reCAPTCHA and the Google Privacy Policy and Terms of Service apply.

There was an error sending your enquiry. Please fill all required fields or try again later.

1
2
3

Thank you for your enquiry!

We look forward to assisting you.

Explore

PRD

 Connect with us

arrow