PRD Mildura 119 Langtree Avenue Mildura, VIC, 3500 03 5022 7750
Request An Appraisal

5 McEdward Street
birdwoodton
VIC, 3505

SOLD

Sold for $470,000

listing rooms 3
listing bathrooms 2
listing parking 2
Land: 660 sqm

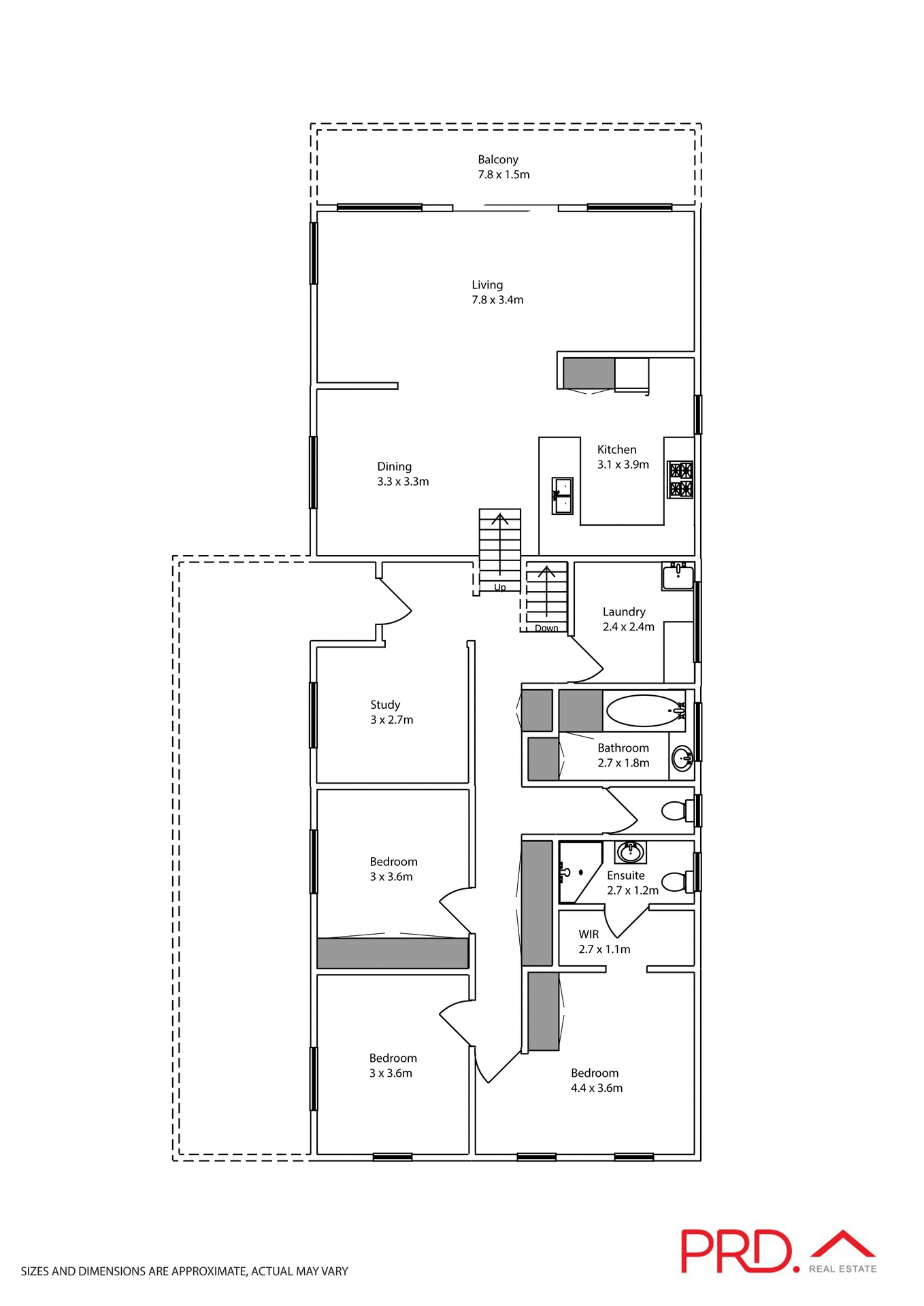
Split-Level Family Living in Merbein

This spacious two-story brick home offers the perfect blend of comfort, convenience, and family living in a sought-after Merbein location near Pump Hill. Designed with practicality in mind, the home features three generous bedrooms with built-in robes, a dedicated study, and two well-appointed bathrooms including a private ensuite. The split-level layout provides excellent separation of space, with two living areas - one upstairs and one downstairs - making it ideal for families who value both connection and privacy. The heart of the home is the large, well-equipped kitchen with ample cupboard storage, electric hotplate, and wall oven. Year-round comfort is assured with ducted evaporative cooling, reverse-cycle heating and cooling, plus ceiling fans throughout. Outside, a double carport, garden shed, and plenty of room for additional vehicles, a boat, or caravan make this property as practical as it is inviting. With a rental appraisal of $480 to $500 per week, it presents an excellent opportunity for investors or those seeking a comfortable family lifestyle.

Agents

Nearby Schools

About birdwoodton

median House price

687500

suburb growth

10.2%

median House rent

510

suburb rental yield

3.9%

Similar Properties

Source: Suburb Flyover Report Series, APM Pricefinder. PRD does not give any warranty in relation to the accuracy of the information contained in this report. If you intend to rely upon the information contained herein, you must take note that the Information, figures and projections have been provided by various sources and have not been verified by us. We have no belief one way or the other in relation to the accuracy of such information, figures and projections. PRD will not be liable for any loss or damage resulting from any statement, figure, calculation or any other information that you rely upon that is contained in the material. Prepared by PRD Research © All medians and volumes are calculated by PRD Research. Use with written permission only. All other responsibilities disclaimed.

Floorplan 1

Listing Enquiry

Listing Enquiry

1
2
3

Your Details

1
2
3

Your Enquiry

This site is protected by reCAPTCHA and the Google Privacy Policy and Terms of Service apply.

There was an error sending your enquiry. Please fill all required fields or try again later.

1
2
3

Thank you for your enquiry!

We look forward to assisting you.

Explore

PRD

 Connect with us

arrow