PRD Port Stephens 4 Central Avenue Salamander Bay, NSW, 2317 02 4984 2000
Request An Appraisal

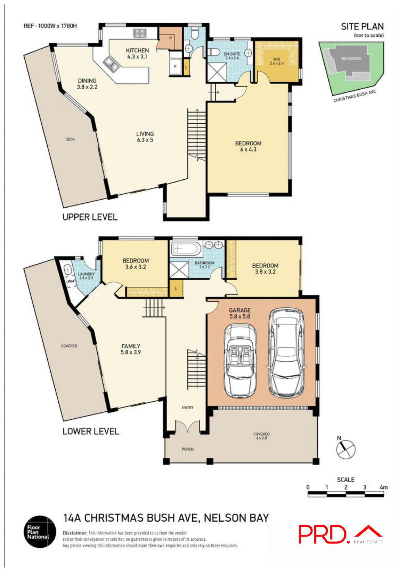
14A Christmas Bush Avenue
nelson bay
NSW, 2315

SOLD

Sold for $2,550,000

listing rooms 3
listing bathrooms 2
listing parking 2

Prestigious Residence in Prized Location

Positioned in one of Port Stephens most highly coveted streets and located approx. 100m to the pristine shores of Dutchman's Beach, this prestigious residence delivers the perfect fusion of grand proportion and luxurious appointments to form an enviable lifestyle.

The setting is serene - secure automatic gates open to reveal tastefully landscaped grounds with a divine blend of easy-care plants, lush greenery and stone accents, creating your own tranquil escape. Take advantage of those hot summer afternoons and take a dip in your plunge pool after a walk along the waterfront.

Internally, the home is a breath taking blend of coastal elegance and contemporary luxury. Filled with distinct charm, the versatile floor plan cascades over three levels and creates sweeping open spaces where you can enjoy the exclusivity of this prime address.

A masterpiece of indoor and outdoor living, each feature of the home is more enticing than the last, an array of louvered windows and glass sliding doors drench the rich timber floors and accentuate the space on the upper level. A striking sunlit deck overlooks the stunning blue vistas and adjoins the indoor dining space to create the perfect indoor-outdoor flow.

Be the envy of your guests as you prepare decadent meals from your sumptuous culinary kitchen, fit with quality integrated appliances and a beautiful stone benchtop. Governing its overall vision and completing the upper level of the home, a bespoke master suite includes a lavish ensuite bathroom and offers ultimate privacy from your family and guests.

Ensuring that space is never compromised, a second living space flows directly out onto the private outdoor alfresco where you can watch the kids splash in the pool from your choice of shaded and sunlit deck spaces, an additional two bedrooms of accommodation; each with built in wardrobes and one with access onto a small courtyard and is central to the grand main bathroom including shower, bath and double vanity space.

Exuding indulgence, the residence is complete with ducted air-conditioning, a spacious double garage and access to a private gate to lead you down the path and directly to the beach. Situated directly opposite Dutchman's Beach, spend your mornings walking along the beach or enjoy listening to the sound of birdsong as you walk down the pathway to the Nelson Bay CBD to grab a coffee!

Live in style, holiday in paradise or invest in your future. It's all here. Please contact Dane Queenan on 0412 351 819, Erin Sharp on 0400 560 067 or Tristan Esquilant 0435 642 942 to arrange your own private appointment or to receive a full information package including building and pest report, rental appraisals, recent sales and contract for sale.

Disclaimer:
All information contained herein is gathered from sources we deem reliable. However, we cannot guarantee its accuracy and act as a messenger only in passing on the details. Interested parties should rely on their own enquiries. Some of our properties are marketed from time to time without a price guide at the vendors request. This website may have filtered the property into a price bracket for website functionality purposes. Any personal information given to us during the course of the campaign will be kept on our database for follow up and to market other services and opportunities unless instructed in writing. https://www.prd.com.au/portstephens/privacy-terms-conditions/

Agents

Nearby Schools

About nelson bay

median House price

1050000

median House rent

700

suburb rental yield

3.5%

Similar Properties

Source: Suburb Flyover Report Series, APM Pricefinder. PRD does not give any warranty in relation to the accuracy of the information contained in this report. If you intend to rely upon the information contained herein, you must take note that the Information, figures and projections have been provided by various sources and have not been verified by us. We have no belief one way or the other in relation to the accuracy of such information, figures and projections. PRD will not be liable for any loss or damage resulting from any statement, figure, calculation or any other information that you rely upon that is contained in the material. Prepared by PRD Research © All medians and volumes are calculated by PRD Research. Use with written permission only. All other responsibilities disclaimed.

Floorplan 1

Listing Enquiry

Listing Enquiry

1
2
3

Your Details

1
2
3

Your Enquiry

This site is protected by reCAPTCHA and the Google Privacy Policy and Terms of Service apply.

There was an error sending your enquiry. Please fill all required fields or try again later.

1
2
3

Thank you for your enquiry!

We look forward to assisting you.

Explore

PRD

 Connect with us

arrow