PRD Port Stephens 4 Central Avenue Salamander Bay, NSW, 2317 02 4984 2000
Request An Appraisal

14 Tallean Road
nelson bay
NSW, 2315

SOLD

Sold for $1,500,000

listing rooms 5
listing bathrooms 2
listing parking 2

Stunning Coastal Retreat in Nelson Bay

Positioned in a prime location just moments from the heart of Nelson Bay, this beautifully renovated five-bedroom home combines modern luxury with unbeatable convenience. Featuring breathtaking water views across the bay, this solidly built residence offers an exceptional lifestyle for families or the dream holiday home.

Inside, you'll find two expansive living areas, perfect for both relaxation and entertaining, with access to two covered balconies that provide a seamless indoor-outdoor flow. The spacious, state-of-the-art kitchen with AEG appliances is a true highlight, designed for those who love to cook and entertain. For added versatility, a kitchenette on the lower level allows the option for a self-contained guest area, ideal for visiting family or generating income through Airbnb.

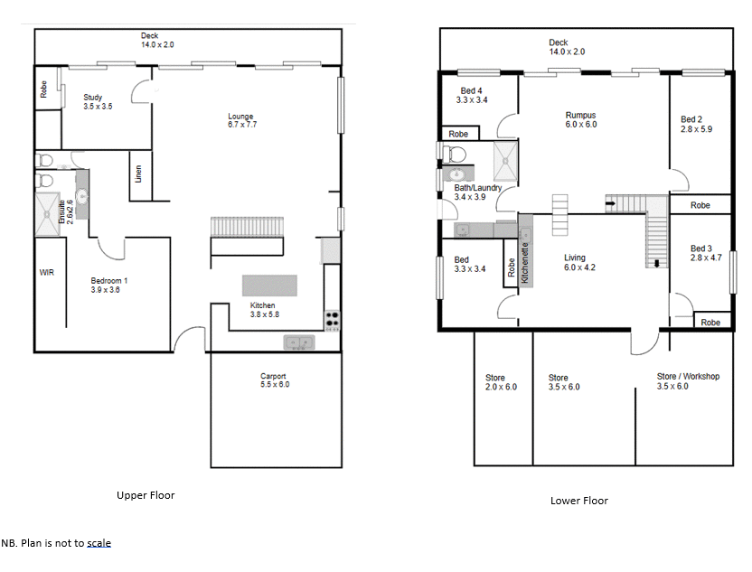
The home boasts five generous bedrooms plus a study, two modern bathrooms, and ample parking for cars. With a 10.3kw solar system, air conditioning and massive storage areas, this home has been designed for comfortable living. Outside, the low-maintenance backyard offers a tranquil escape with a lovely outlook over the surrounding trees.

This stunning home offers the ultimate blend of style, functionality, and location, making it a must-see for those seeking a luxury lifestyle or a smart investment in Nelson Bay.

Please contact Dane Queenan on 0412 351819 or Erin Sharp on 0400 560 067 to arrange your own private appointment or to receive a full information package including recent sales, building & pest reports, contract for sale and rental appraisals.

Disclaimer:
All information contained herein is gathered from sources we deem reliable. However, we cannot guarantee its accuracy and act as a messenger only in passing on the details. Interested parties should rely on their own enquiries. Some of our properties are marketed from time to time without a price guide at the vendors request. This website may have filtered the property into a price bracket for website functionality purposes. Any personal information given to us during the course of the campaign will be kept on our database for follow up and to market other services and opportunities unless instructed in writing. https://www.prd.com.au/portstephens/privacy-terms-conditions/

Agents

Nearby Schools

About nelson bay

median House price

1040000

median House rent

700

suburb rental yield

3.5%

Similar Properties

Source: Suburb Flyover Report Series, APM Pricefinder. PRD does not give any warranty in relation to the accuracy of the information contained in this report. If you intend to rely upon the information contained herein, you must take note that the Information, figures and projections have been provided by various sources and have not been verified by us. We have no belief one way or the other in relation to the accuracy of such information, figures and projections. PRD will not be liable for any loss or damage resulting from any statement, figure, calculation or any other information that you rely upon that is contained in the material. Prepared by PRD Research © All medians and volumes are calculated by PRD Research. Use with written permission only. All other responsibilities disclaimed.

Floorplan 1

Listing Enquiry

Listing Enquiry

1
2
3

Your Details

1
2
3

Your Enquiry

This site is protected by reCAPTCHA and the Google Privacy Policy and Terms of Service apply.

There was an error sending your enquiry. Please fill all required fields or try again later.

1
2
3

Thank you for your enquiry!

We look forward to assisting you.

Explore

PRD

 Connect with us

arrow