PRD Tamworth 02 6763 7000
PRD Liverpool Plains 02 5740 6060
Request An Appraisal

40 Cook Street
tamworth
NSW, 2340

For Lease or Sale

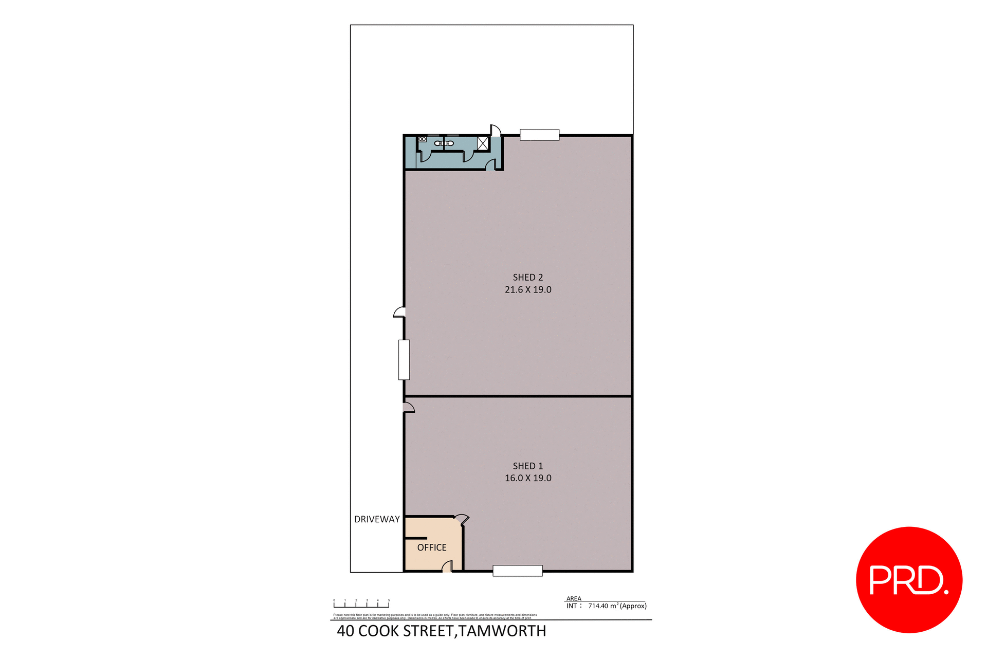
Land: 1404 sqm Property: 714 sqm

All Reasonable Offers Considered

Positioned in a tightly held central industrial location, this versatile industrial property offers an approx. 714m2 shed, partitioned into two lettable areas, however easily converted back into one large shed, with endless potential.
Just minutes from Tamworth Regional Airport, Intermodal Hub, Tamworth Business Park and the Tamworth CBD, the site is perfectly placed to meet the demands of growing businesses.

Whether you're an owner occupier, investor, or looking to do both, the flexibility to lease one unit and operate from the other makes this an outstanding opportunity. Set on a level approx. 1404m2 block with strong frontage and easy access.

Contact PRD Tamworth & Liverpool Plains Today for your inspection.

Agents

About tamworth

median House price

676250

suburb growth

50.3%

median House rent

475

suburb rental yield

3.7%

Similar Properties

Source: Suburb Flyover Report Series, APM Pricefinder. PRD does not give any warranty in relation to the accuracy of the information contained in this report. If you intend to rely upon the information contained herein, you must take note that the Information, figures and projections have been provided by various sources and have not been verified by us. We have no belief one way or the other in relation to the accuracy of such information, figures and projections. PRD will not be liable for any loss or damage resulting from any statement, figure, calculation or any other information that you rely upon that is contained in the material. Prepared by PRD Research © All medians and volumes are calculated by PRD Research. Use with written permission only. All other responsibilities disclaimed.

Floorplan 1

Listing Enquiry

Listing Enquiry

1
2
3

Your Details

1
2
3

Your Enquiry

This site is protected by reCAPTCHA and the Google Privacy Policy and Terms of Service apply.

There was an error sending your enquiry. Please fill all required fields or try again later.

1
2
3

Thank you for your enquiry!

We look forward to assisting you.

Explore

PRD

 Connect with us

arrow