PRD Ballarat 03 5331 1111
PRD Creswick 03 5345 2326
Request An Appraisal

38 Trounces Lane
mount egerton
VIC, 3352

SOLD
listing rooms 2
listing bathrooms 1

Something Just A Bit Different, 15 Minutes To Ballan

This captivating country home nestles into the natural landscape beautifully and offers a smart looking corrugated iron finish.

Just on 12 months young this split level home offers energy efficiency with timber double glazed windows, quality sub floor, ceiling and external wall insulation to cater for our climate and provide warmth in the cooler months.

The home is north facing with house eaves allowing winter sun to hit the glass and summer sun to be shaded.

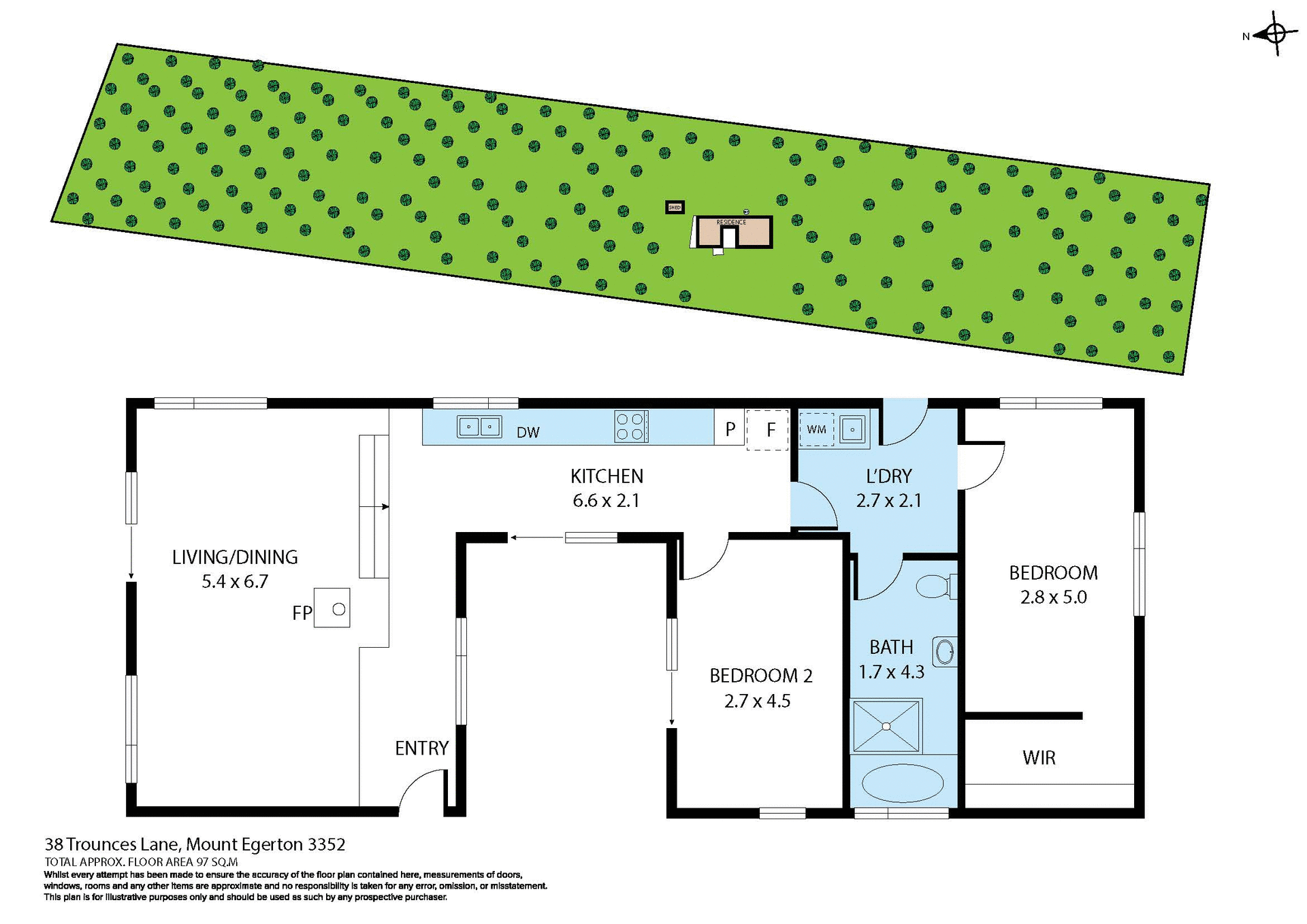
The house footprint consists of 2 bedrooms, master with walk in robe and a light filled family bathroom complete with side by side bath tub & walk in shower plus toilet. The galley style kitchen features a dishwasher, gas cooktop and electric oven.

The sunken loungeroom with wood fire offers access through to the north facing deck which overlooks the landscaped gardens. Throughout the entire home is a unique brick paving flooring which offers a very earthy & warm feel.

Services connected include underground mains power, tank water approx. 42,000L, reed bed septic system, solar hot water with instant gas back up, with a reliable satellite NBN for internet & phone calls offering work from home options.

The natural bush setting measures approx. 3.70 acres or 1.50 hectares with 2 resident wallabies, a family of kangaroos, wedge tail eagles that grace the sky line & koalas to put a smile on your face.

The property is best accessed from Sharrocks road and is a 20 minute drive to Ballarat via Yendon, 10 minutes through to Gordon and the Western Highway. For those that want to visit Melbourne a 15 minute drive will have you at the Ballan Train Station.

This home offers huge energy efficient upside with a modern approach. It truly reflects the simple things that we need in life to simply sit back and watch the world go by but above all create a home or nest for your family.

Agents

Nearby Schools

About mount egerton

median House price

690000

suburb growth

13.6%

Similar Properties

Source: Suburb Flyover Report Series, APM Pricefinder. PRD does not give any warranty in relation to the accuracy of the information contained in this report. If you intend to rely upon the information contained herein, you must take note that the Information, figures and projections have been provided by various sources and have not been verified by us. We have no belief one way or the other in relation to the accuracy of such information, figures and projections. PRD will not be liable for any loss or damage resulting from any statement, figure, calculation or any other information that you rely upon that is contained in the material. Prepared by PRD Research © All medians and volumes are calculated by PRD Research. Use with written permission only. All other responsibilities disclaimed.

Floorplan 1

Listing Enquiry

Listing Enquiry

1
2
3

Your Details

1
2
3

Your Enquiry

This site is protected by reCAPTCHA and the Google Privacy Policy and Terms of Service apply.

There was an error sending your enquiry. Please fill all required fields or try again later.

1
2
3

Thank you for your enquiry!

We look forward to assisting you.

Explore

PRD

 Connect with us

arrow