PRD Ballarat 03 5331 1111
PRD Creswick 03 5345 2326
Request An Appraisal

35 Evergreen Way
gordon
VIC, 3345

SOLD
listing rooms 4
listing bathrooms 2
listing parking 3
Land: 10 Acre

Lifestyle Opportunity In Premium Location

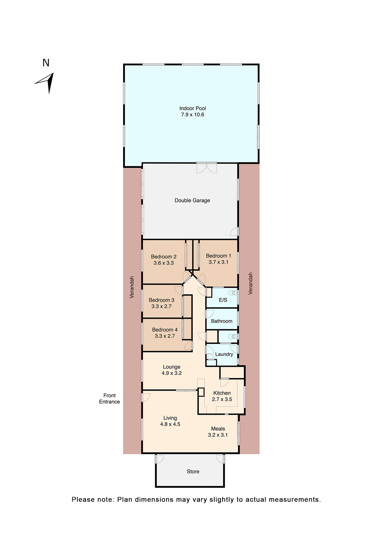
Set on approx. 10 acres just minutes from the Gordon Township and Western Freeway is this fantastic lifestyle opportunity with plenty of options. The Brick home offers 4 bedrooms, master with ensuite, 2 living areas, wood heating and separate dining area.

Externally, you will be impressed with the space on offer with 2 main paddocks, a smaller holding paddock, huge backyard and a private front yard with established trees. Multiple garden sheds, fruit trees, a single machinery shed/carport, a single car shed, cattle ramp and a feature dam all add to the appeal of this property. The large rear paddock would be ideal for horses or cattle as it is well sheltered.

One of the main features of the property is the indoor swimming pool making this home ideal for entertainers! The property is ideally located just 20 minutes from Ballarat and 1 hour from Melbourne, so be sure to book your inspection ASAP!

Agents

Nearby Schools

About gordon

median House price

850000

suburb growth

33.3%

median House rent

595

suburb rental yield

3.6%

Similar Properties

Source: Suburb Flyover Report Series, APM Pricefinder. PRD does not give any warranty in relation to the accuracy of the information contained in this report. If you intend to rely upon the information contained herein, you must take note that the Information, figures and projections have been provided by various sources and have not been verified by us. We have no belief one way or the other in relation to the accuracy of such information, figures and projections. PRD will not be liable for any loss or damage resulting from any statement, figure, calculation or any other information that you rely upon that is contained in the material. Prepared by PRD Research © All medians and volumes are calculated by PRD Research. Use with written permission only. All other responsibilities disclaimed.

Floorplan 1

Listing Enquiry

Listing Enquiry

1
2
3

Your Details

1
2
3

Your Enquiry

This site is protected by reCAPTCHA and the Google Privacy Policy and Terms of Service apply.

There was an error sending your enquiry. Please fill all required fields or try again later.

1
2
3

Thank you for your enquiry!

We look forward to assisting you.

Explore

PRD

 Connect with us

arrow