PRD Ballarat 03 5331 1111
PRD Creswick 03 5345 2326
Request An Appraisal

29 Melaleuca Road
enfield
VIC, 3352

SOLD

Sold for $440,000

listing rooms 4
listing bathrooms 1
listing parking 6
Land: 9475 sqm

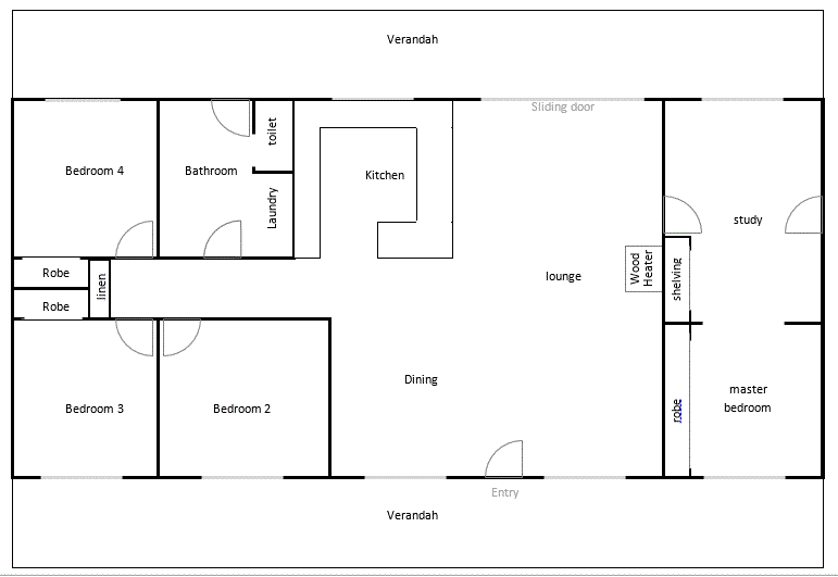
Neat Family Home In Popular Estate

Set on just over 2 & a ¼ acres is this very neat family home situated in the very popular area of Enfield.

Offering four bedrooms, a spacious living area with Tassie Oak flooring, wood heating, split system air con, kitchen with electric cooking , dishwasher and a study area.

Kick back under the front & rear verandah and watch the kids & pets roam in the spacious grounds. The feature dam, large shed with concrete flooring & power & established trees add to the appeal of the property which is only a short drive from Napoleons, Buninyong & Ballarat. The school bus pick up for Napoleons primary school stops out the front of the property.

The home is connected to a 1kw solar system as well as mains power, approx. 50,000l of tank water and has plenty of car accommodation with a 4 car garage and a 2 car carport.

Homes in the area have been selling fast so be sure to book your inspection ASAP by calling Matt Edwards on 0401 728 881 or Jacqui Sfetcopoulos on 0411 065 339.

Agents

Nearby Schools

About enfield

median House price

600000

Similar Properties

Source: Suburb Flyover Report Series, APM Pricefinder. PRD does not give any warranty in relation to the accuracy of the information contained in this report. If you intend to rely upon the information contained herein, you must take note that the Information, figures and projections have been provided by various sources and have not been verified by us. We have no belief one way or the other in relation to the accuracy of such information, figures and projections. PRD will not be liable for any loss or damage resulting from any statement, figure, calculation or any other information that you rely upon that is contained in the material. Prepared by PRD Research © All medians and volumes are calculated by PRD Research. Use with written permission only. All other responsibilities disclaimed.

Floorplan 1

Listing Enquiry

Listing Enquiry

1
2
3

Your Details

1
2
3

Your Enquiry

This site is protected by reCAPTCHA and the Google Privacy Policy and Terms of Service apply.

There was an error sending your enquiry. Please fill all required fields or try again later.

1
2
3

Thank you for your enquiry!

We look forward to assisting you.

Explore

PRD

 Connect with us

arrow