PRD Ballarat 03 5331 1111
PRD Creswick 03 5345 2326
Request An Appraisal

1018-1022 Grevillea Road
wendouree
VIC, 3355

SOLD
listing rooms 1
listing bathrooms 1

A Plethora Of Potential Uses

Where do we start, this is simply one of the most unique listings we have had.

Built in its original form in 1964 then evolving to its current structure in 1999 but sadly nearing the end of its tenure as Uniting Church, Wendouree, this property is to be offered up for sale by Expressions of Interest.
Best described as a contemporary design, the building offers a multitude of uses (STCA) comprising of varying areas with a myriad of dimensions & user templates.
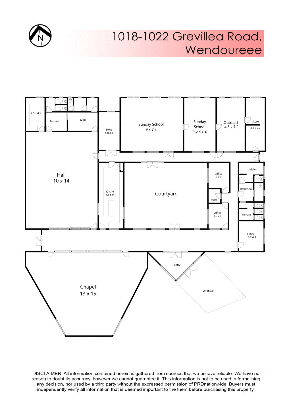
The total floor area consists of the main hall, the chapel, a courtyard, the vestry, 6 office areas, 2 kitchens, male, female toilets & disabled toilets.
Heating is covered by various gas heating appliances & parking caters for approx 30 cars on site.
The land mass is 3,314m2 approx and zoned General Res 1. (STCA) The potential for this site is quite varied, it is potentially a child minding facility, a Community Health Centre, a Business Hub or ideally used in the same vain as a place of Religious congregation or does its appeal lie in redevelopment?

Time will be needed for potential purchasers to carry out their Due Diligence, therefore the EOI campaign will run until close of business on the 30th August, 2019 and it is a requirement that offers be submitted in writing on a Contract of Sale (clearly stating "offer conditions & settlement terms."

The property can only be inspected by private appointment by calling Don Hanlon on 0429 199 158 or Kiara Porra on 0447 834 892

Please note there will be no Sunday inspections at this property.

Agents

Nearby Schools

About wendouree

median House price

505000

suburb growth

17.0%

median House rent

400

suburb rental yield

4.1%

Similar Properties

Source: Suburb Flyover Report Series, APM Pricefinder. PRD does not give any warranty in relation to the accuracy of the information contained in this report. If you intend to rely upon the information contained herein, you must take note that the Information, figures and projections have been provided by various sources and have not been verified by us. We have no belief one way or the other in relation to the accuracy of such information, figures and projections. PRD will not be liable for any loss or damage resulting from any statement, figure, calculation or any other information that you rely upon that is contained in the material. Prepared by PRD Research © All medians and volumes are calculated by PRD Research. Use with written permission only. All other responsibilities disclaimed.

Floorplan 1

Listing Enquiry

Listing Enquiry

1
2
3

Your Details

1
2
3

Your Enquiry

This site is protected by reCAPTCHA and the Google Privacy Policy and Terms of Service apply.

There was an error sending your enquiry. Please fill all required fields or try again later.

1
2
3

Thank you for your enquiry!

We look forward to assisting you.

Explore

PRD

 Connect with us

arrow