PRD Ballarat 03 5331 1111
PRD Creswick 03 5345 2326
Request An Appraisal

9 Hodge Street
miners rest
VIC, 3352

SOLD

Sold for $342,000

listing rooms 3
listing bathrooms 2
listing parking 2
Land: 448 sqm

Set & Forget In Miners Rest!

Are you looking to enter the property market as a first home buyer or you're simply looking for an easy modern lifestyle - this could be the property you've been waiting for!

Set in a young but well-established neighbourhood, this Simmonds home built approx 9 years ago enjoys a fantastic low maintenance format that will ensure loads of free time to relax.

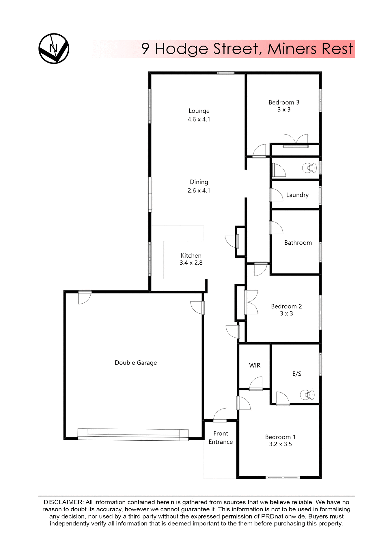
The spacious single level design begins with a tiled entrance, leading through to a bright open plan living/dining zone accompanied by a stylish stone kitchen complete with sleek cabinetry and stainless steel appliances. Further accommodation includes three robed bedrooms (master with walk-in robe and ensuite), a family bathroom with above bench vanity and a bright practical laundry with garden access.

The alfresco area and the garden provide an all-important indoor/outdoor link, while additional features include ducted heating, ceiling fans and a double lock up garage along with a wide concreted driveway.

There is ample room for children's play equipment outdoors, yet just a lazy stroll away there is the Burrumbeet Creek and open rural spaces for everyone to enjoy.

A current return of $320 per week ensures this home is highly recommended to inspect.

Agents

Nearby Schools

About miners rest

median House price

617500

suburb growth

7.4%

median House rent

470

suburb rental yield

4.0%

Similar Properties

Source: Suburb Flyover Report Series, APM Pricefinder. PRD does not give any warranty in relation to the accuracy of the information contained in this report. If you intend to rely upon the information contained herein, you must take note that the Information, figures and projections have been provided by various sources and have not been verified by us. We have no belief one way or the other in relation to the accuracy of such information, figures and projections. PRD will not be liable for any loss or damage resulting from any statement, figure, calculation or any other information that you rely upon that is contained in the material. Prepared by PRD Research © All medians and volumes are calculated by PRD Research. Use with written permission only. All other responsibilities disclaimed.

Floorplan 1

Listing Enquiry

Listing Enquiry

1
2
3

Your Details

1
2
3

Your Enquiry

This site is protected by reCAPTCHA and the Google Privacy Policy and Terms of Service apply.

There was an error sending your enquiry. Please fill all required fields or try again later.

1
2
3

Thank you for your enquiry!

We look forward to assisting you.

Explore

PRD

 Connect with us

arrow