PRD Ballarat 03 5331 1111
PRD Creswick 03 5345 2326
Request An Appraisal

749 Paynes Bridge Road
dereel
VIC, 3352

SOLD

Sold for $510,000

listing rooms 3
listing bathrooms 1
listing parking 1
Land: 10.54 Acre

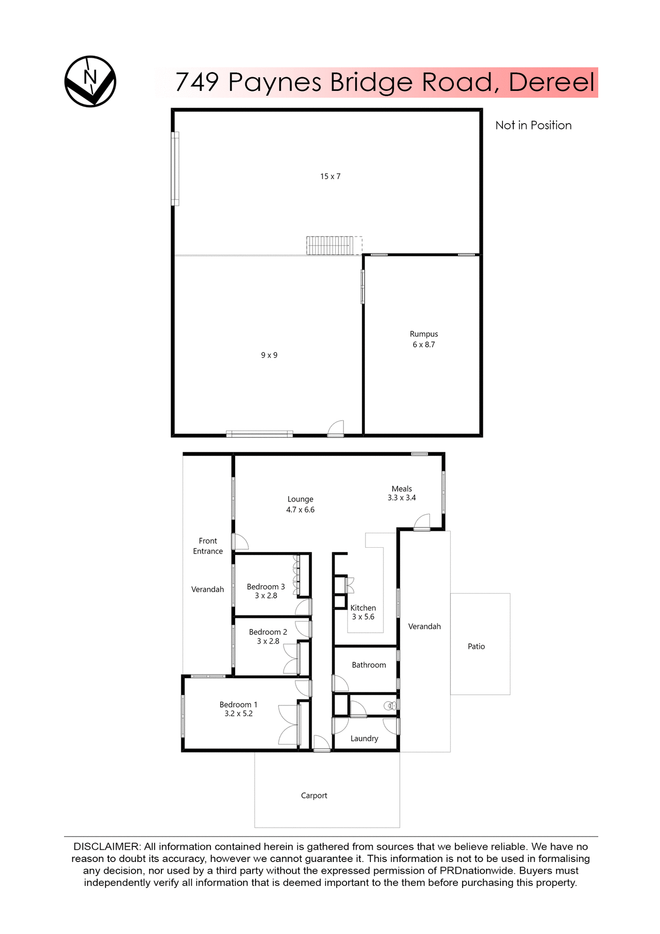
Modern Home On 10 Private Acres

Gently sloping and tucked away from the hustle and bustle, this 10-acre allotment boasts a gorgeous look alike sandstone home with three bedrooms, a family bathroom along with a capacious living/dining zone to take in the views across the land.

Designed with an open plan, this gorgeous family home is supported by fabulous kitchen with an extreme amount of storage, while the entire home is snuggly warmed by a freestanding combustion heater, a split system and ceiling fan.

Nestled amongst a forest of natural gums yet providing a clear house block with a fully fenced rear yard, this property would be perfect for a young family or retirees to pursue their tree change dream.

Two dams provide water for grazing stock, while this delightful country home is flanked by a massive15x16m shed, which includes area of approx. 9x6m as a man cave. The shed has concrete floor, mains power and is lockable.
Mains power, septic system and NBN are connected to the home as well as an underground water tank, approx 30,000 litres in size.

A lily pond is a lovely feature with the natural backdrop, while there is a large paved area to entertain outdoors. Front and back verandas have been orientated to take advantage of the sunsets, while there is ample room to walk, trail ride, pony ride or explore.

Fencing to the boundary perimeter has been renewed recently. Enjoy being 30 minutes' drive to Ballarat, 60 minutes to Geelong and 15 minutes to the napoleons store & primary school.

Agents

Nearby Schools

About dereel

median House price

620000

suburb growth

3.3%

Similar Properties

Source: Suburb Flyover Report Series, APM Pricefinder. PRD does not give any warranty in relation to the accuracy of the information contained in this report. If you intend to rely upon the information contained herein, you must take note that the Information, figures and projections have been provided by various sources and have not been verified by us. We have no belief one way or the other in relation to the accuracy of such information, figures and projections. PRD will not be liable for any loss or damage resulting from any statement, figure, calculation or any other information that you rely upon that is contained in the material. Prepared by PRD Research © All medians and volumes are calculated by PRD Research. Use with written permission only. All other responsibilities disclaimed.

Floorplan 1

Listing Enquiry

Listing Enquiry

1
2
3

Your Details

1
2
3

Your Enquiry

This site is protected by reCAPTCHA and the Google Privacy Policy and Terms of Service apply.

There was an error sending your enquiry. Please fill all required fields or try again later.

1
2
3

Thank you for your enquiry!

We look forward to assisting you.

Explore

PRD

 Connect with us

arrow