PRD Ballarat 03 5331 1111
PRD Creswick 03 5345 2326
Request An Appraisal

3 Earl Street
maryborough
VIC, 3465

SOLD

Sold for $890,000

listing rooms 5
listing bathrooms 4
listing parking 2

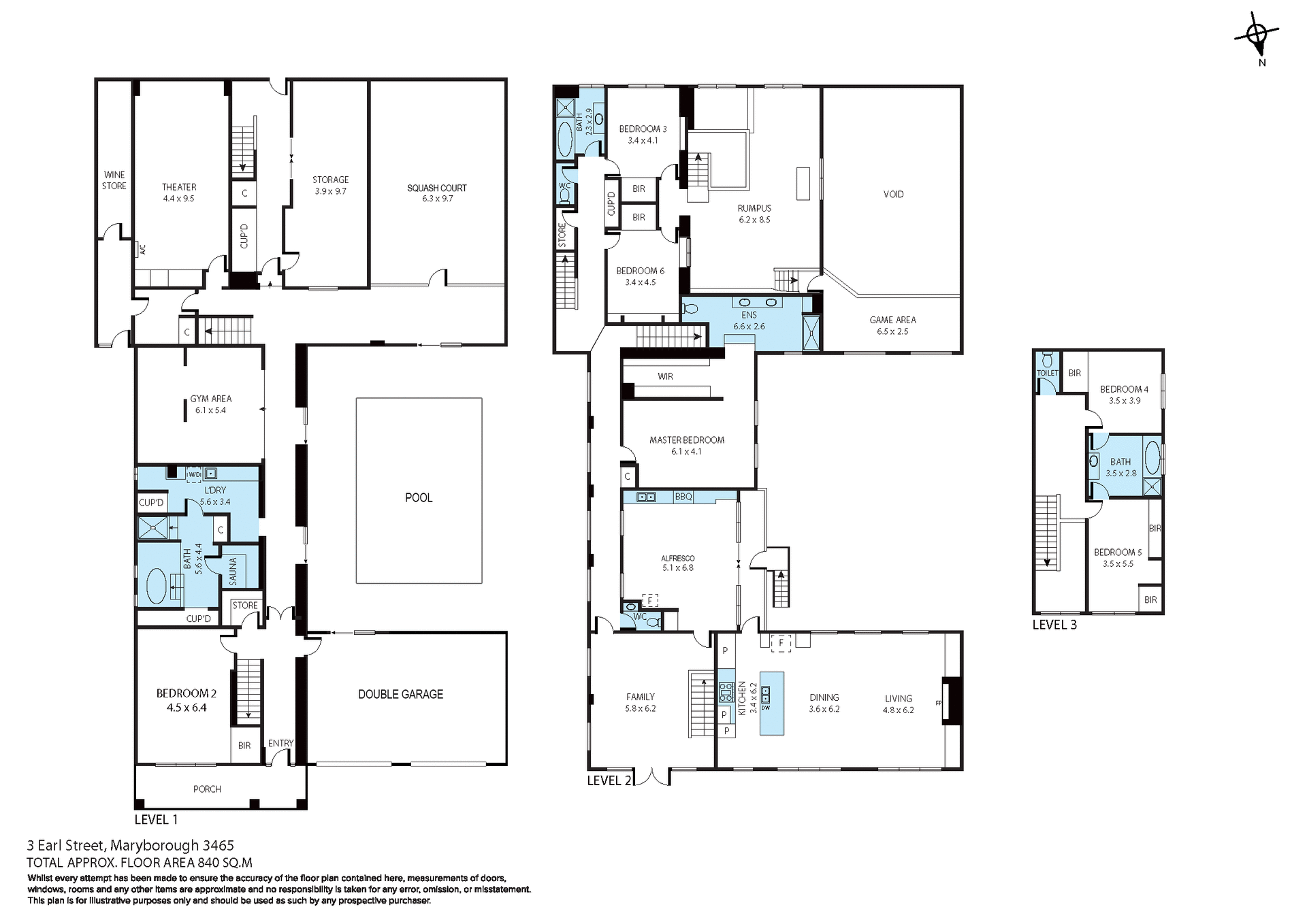
The Duke Of Earl

In a sensational lifestyle location, this spectacular three level home presents a truly rare and rewarding offering. This hidden gem in the gorgeous township of Maryborough is ideal for large, blended families, for short-term accommodation/private business or for the astute purchaser looking for something truly unique.

Beyond the entry you are mesmerised by the five-star resort luxuries with an in-ground saltwater pool, squash court, cinema, cellar, gym, sauna, spa, storage room, and or a sixth bedroom or office area - WOW!
Up one level - and there are views across to the Princes parklands and a sense of togetherness with views over the pool from the balcony and alfresco area, which is fully fitted with an outdoor kitchen, ceiling fan and retractable doors.

Three bedrooms on this level include a master suite with walk in robe and dual vanity ensuite, plus two further bedrooms with walk in robes with easy access to an additional bathroom with separate toilet. Three living areas, a kitchen and dining area plus a further balcony over the squash courts, create an enormous space to cook, relax and lounge outdoors.

Only a few minutes' walk to shopping, cafes, restaurants, Maryborough aquatic Olympic size swimming pool, tennis courts, Lake Victoria and Maryborough's High Street.

New carpets, fresh paint and window furnishings create warmth and style, while 10.6kWs of solar energy alleviate your power bills.

Agents

Nearby Schools

About maryborough

median House price

420000

suburb growth

8.4%

median House rent

380

suburb rental yield

4.7%

Similar Properties

Source: Suburb Flyover Report Series, APM Pricefinder. PRD does not give any warranty in relation to the accuracy of the information contained in this report. If you intend to rely upon the information contained herein, you must take note that the Information, figures and projections have been provided by various sources and have not been verified by us. We have no belief one way or the other in relation to the accuracy of such information, figures and projections. PRD will not be liable for any loss or damage resulting from any statement, figure, calculation or any other information that you rely upon that is contained in the material. Prepared by PRD Research © All medians and volumes are calculated by PRD Research. Use with written permission only. All other responsibilities disclaimed.

Floorplan 1
Floorplan 2

Listing Enquiry

Listing Enquiry

1
2
3

Your Details

1
2
3

Your Enquiry

This site is protected by reCAPTCHA and the Google Privacy Policy and Terms of Service apply.

There was an error sending your enquiry. Please fill all required fields or try again later.

1
2
3

Thank you for your enquiry!

We look forward to assisting you.

Explore

PRD

 Connect with us

arrow