PRD Broome 3 Short Street, Broome, WA 08 9192 1988
Request An Appraisal

45 Taylor Road
cable beach
WA, 6726

SOLD

Sold for $1,300,000

listing rooms 6
listing bathrooms 4
listing parking 3
Land: 905 sqm

SOLD by PRD.

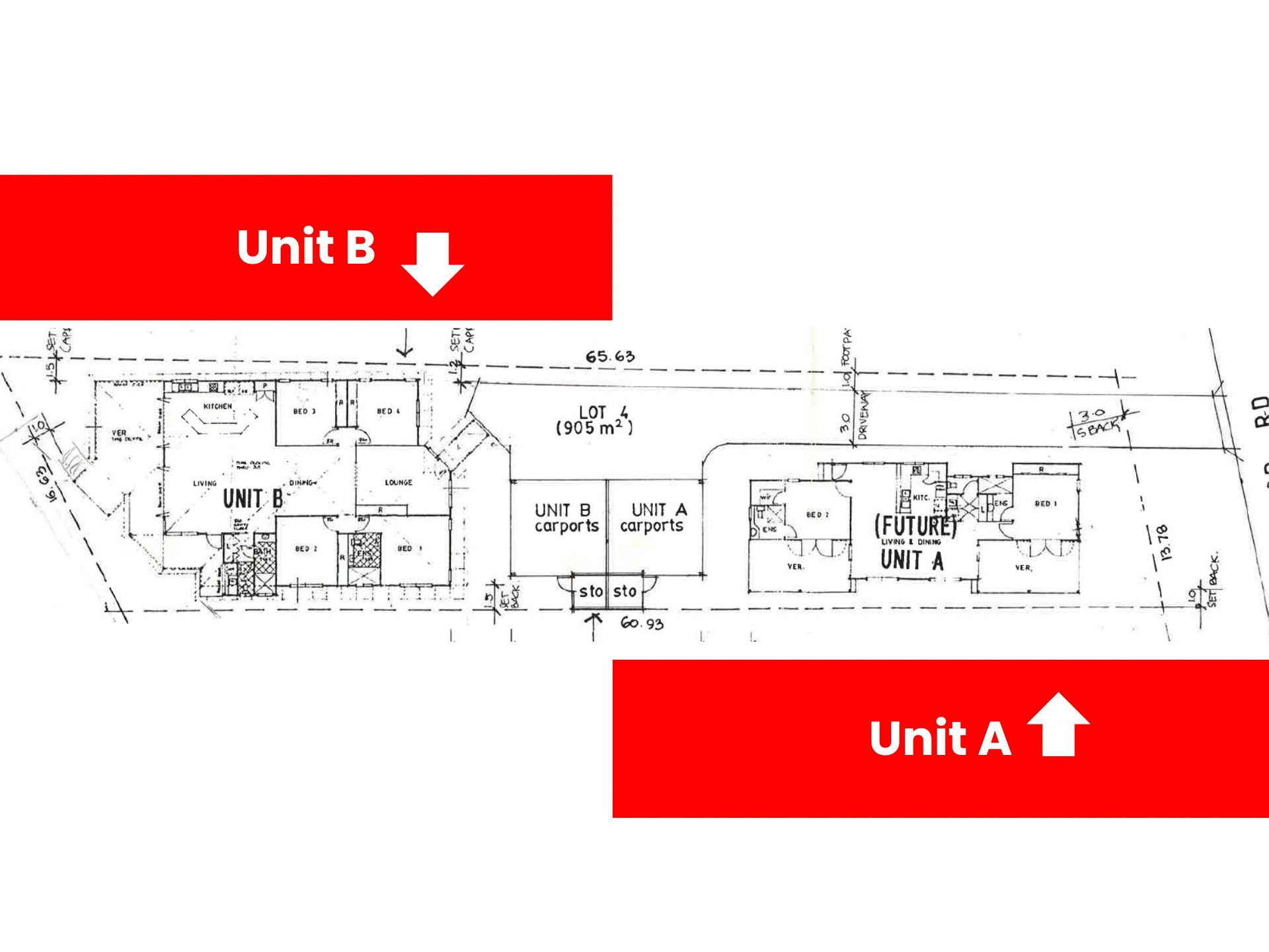
45 Taylor Road. Presenting a rare opportunity on a generous 905sqm block in the heart of Cable Beach, this dual occupancy holding brings together lifestyle and investment appeal. The layout gives you space, privacy and the kind of flexibility that suits investors, multi-generational families or anyone wanting options. With two fully independent dwellings, the property offers solid investment potential without giving up everyday comfort. It's a standout chance in a tightly held coastal pocket.

Each residence enjoys its own private space, giving you the choice to live in one while the other provides steady rental income. This set-up helps ease the mortgage and builds stability with two separate rental streams. It's also ideal for families wanting to keep parents or grown children close while keeping independence intact. The dual-income set-up gives the property a real edge over a standard single dwelling.

Unit A and Unit B both offer generous layouts and easy-care living that appeal to both owners and tenants. Unit A includes two ensuite bedrooms, verandas, air-conditioning and a functional kitchen that opens into a bright, breezy living area. Unit B brings four bedrooms, open living zones and direct access to a pool that looks out over calming greenery. Adding extra value, both dwellings include a 5.5 kW solar power system that helps reduce every day running costs and supports a more energy-efficient lifestyle, along with full fencing, ample parking for cars and boats, genuine bamboo flooring, treated timber decking and outdoor spaces cooled by Indian Ocean breezes, all just across the road from beach access.

Invest Smarter with PRD!
Call Nikki 0438 400 803 today to arrange an inspection.

Agents

Nearby Schools

About cable beach

median House price

740000

median House rent

1100

suburb rental yield

7.7%

Similar Properties

Source: Suburb Flyover Report Series, APM Pricefinder. PRD does not give any warranty in relation to the accuracy of the information contained in this report. If you intend to rely upon the information contained herein, you must take note that the Information, figures and projections have been provided by various sources and have not been verified by us. We have no belief one way or the other in relation to the accuracy of such information, figures and projections. PRD will not be liable for any loss or damage resulting from any statement, figure, calculation or any other information that you rely upon that is contained in the material. Prepared by PRD Research © All medians and volumes are calculated by PRD Research. Use with written permission only. All other responsibilities disclaimed.

Floorplan 1
Floorplan 2

Listing Enquiry

Listing Enquiry

1
2
3

Your Details

1
2
3

Your Enquiry

This site is protected by reCAPTCHA and the Google Privacy Policy and Terms of Service apply.

There was an error sending your enquiry. Please fill all required fields or try again later.

1
2
3

Thank you for your enquiry!

We look forward to assisting you.

Explore

PRD

 Connect with us

arrow