PRD Mildura 119 Langtree Avenue Mildura, VIC, 3500 03 5022 7750
Request An Appraisal

209 Commercial Street
merbein
VIC, 3505

SOLD

Sold for $475,000

listing rooms 3
listing bathrooms 1
listing parking 2
Land: 826 sqm

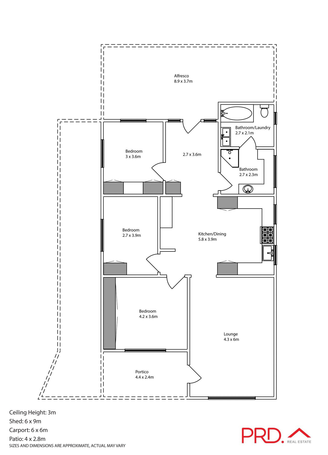
Family-Friendly Home with Shed & Outdoor Entertaining

This spacious 3-bedroom home offers everything you and your family could need - and more. Each bedroom features built-in robes, ensuring ample storage, while the additional study or playroom provides flexibility for work or family needs. A large lounge room creates the perfect setting for relaxing or entertaining, while the newly updated kitchen boasts modern finishes and functionality. Comfort is guaranteed year-round with brand-new ducted reverse cycle heating and cooling throughout the entire home. Outside, you'll find an impressive shed/workshop or man cave - fully equipped with a concrete floor, power, wood heater, and evaporative cooling. There's also an extra undercover parking area for vehicles or storage. The secure, spacious yard offers a fantastic play area for kids, plus a generous patio entertainment zone complete with a BBQ area - ideal for weekends with family and friends. This property truly is the complete package with everything you and your family need to live comfortably and enjoyably. Rental Appraisal of $490 - $500 Per Week.

Agents

Nearby Schools

About merbein

median House price

439755

suburb growth

12.8%

median House rent

475

suburb rental yield

5.6%

Similar Properties

Source: Suburb Flyover Report Series, APM Pricefinder. PRD does not give any warranty in relation to the accuracy of the information contained in this report. If you intend to rely upon the information contained herein, you must take note that the Information, figures and projections have been provided by various sources and have not been verified by us. We have no belief one way or the other in relation to the accuracy of such information, figures and projections. PRD will not be liable for any loss or damage resulting from any statement, figure, calculation or any other information that you rely upon that is contained in the material. Prepared by PRD Research © All medians and volumes are calculated by PRD Research. Use with written permission only. All other responsibilities disclaimed.

Floorplan 1

Listing Enquiry

Listing Enquiry

1
2
3

Your Details

1
2
3

Your Enquiry

This site is protected by reCAPTCHA and the Google Privacy Policy and Terms of Service apply.

There was an error sending your enquiry. Please fill all required fields or try again later.

1
2
3

Thank you for your enquiry!

We look forward to assisting you.

Explore

PRD

 Connect with us

arrow