PRD Ballarat 03 5331 1111
PRD Creswick 03 5345 2326
Request An Appraisal

547 Hardies Hill Road
garibaldi
VIC, 3352

SOLD

Sold for $500,000

listing rooms 4
listing bathrooms 2
listing parking 6
Land: 6 Acre

"Candlebark" - Totally Off The Grid With No Utility Bills!

Tucked away in a private a peaceful position and set on approx. 6 acres is this charming log cabin style home offering the perfect opportunity to live the quiet country life without the hassle of bills.

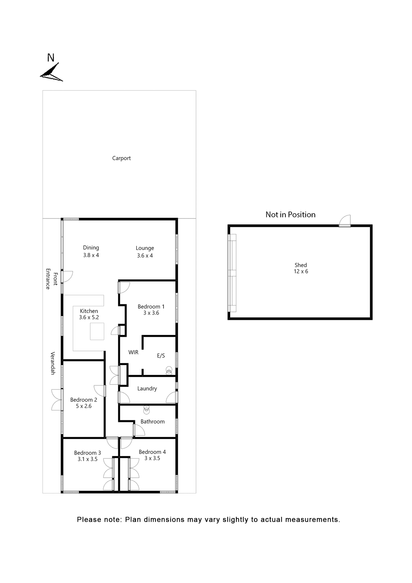
The flexible floorplan offers the option of 4 bedrooms or 3 bedrooms and 2 living areas. The 2nd living or 4th bedrooms is light filled and has north facing French doors to the verandah. The recently updated kitchen offers good bench space, slate flooring, 900mm gas cooktop and overlooks the lounge where you can relax in the warmth of wood heating.

Externally, you will be impressed with what's on offer with a feature dam, a garden shed, hot house, double bay stables, wood shed, generator shed, a new 11m x 8m carport and a 6m x 12 m shed with concrete flooring and power. Live a self-sufficient lifestyle with an off grid 5kw solar system, back up generator and tank water connection.

"Candlebark" was once part of the Enfield state forest and backs onto it but is also on the very edge of the bush meaning you can enjoy the lifestyle of being near bushland with less worries about being in the thick of it. From its backyard, miles of kilometres of forest trails run through the forest high in recreational value for horse riding, bush walking, mountain bike and trail bike riding.

A short drive will have you at the Buninyong shops and the distance to Ballarat is a breeze for commuting. Geelong commuters are well catered for with the property being 1hr away from the middle of Geelong.

A peaceful retreat to come home to at the end of a busy day, easy living in an environment that attracts and nurtures an abundance of native flora and fauna, this attractive property is best appreciated with an inspection.
To book an inspection simply contact Matt Edwards on 0401 728 881 or Jacqui Sfetcopoulos on 0411 065 339.

Agents

Nearby Schools

About garibaldi

Similar Properties

Source: Suburb Flyover Report Series, APM Pricefinder. PRD does not give any warranty in relation to the accuracy of the information contained in this report. If you intend to rely upon the information contained herein, you must take note that the Information, figures and projections have been provided by various sources and have not been verified by us. We have no belief one way or the other in relation to the accuracy of such information, figures and projections. PRD will not be liable for any loss or damage resulting from any statement, figure, calculation or any other information that you rely upon that is contained in the material. Prepared by PRD Research © All medians and volumes are calculated by PRD Research. Use with written permission only. All other responsibilities disclaimed.

Floorplan 1

Listing Enquiry

Listing Enquiry

1
2
3

Your Details

1
2
3

Your Enquiry

This site is protected by reCAPTCHA and the Google Privacy Policy and Terms of Service apply.

There was an error sending your enquiry. Please fill all required fields or try again later.

1
2
3

Thank you for your enquiry!

We look forward to assisting you.

Explore

PRD

 Connect with us

arrow