PRD Hunter Valley 103-107 Newcastle Road East Maitland, NSW, 2323 02 4934 2000
Request An Appraisal

12 Parkside Crescent
thornton
NSW, 2322

SOLD

Sold for $425,000

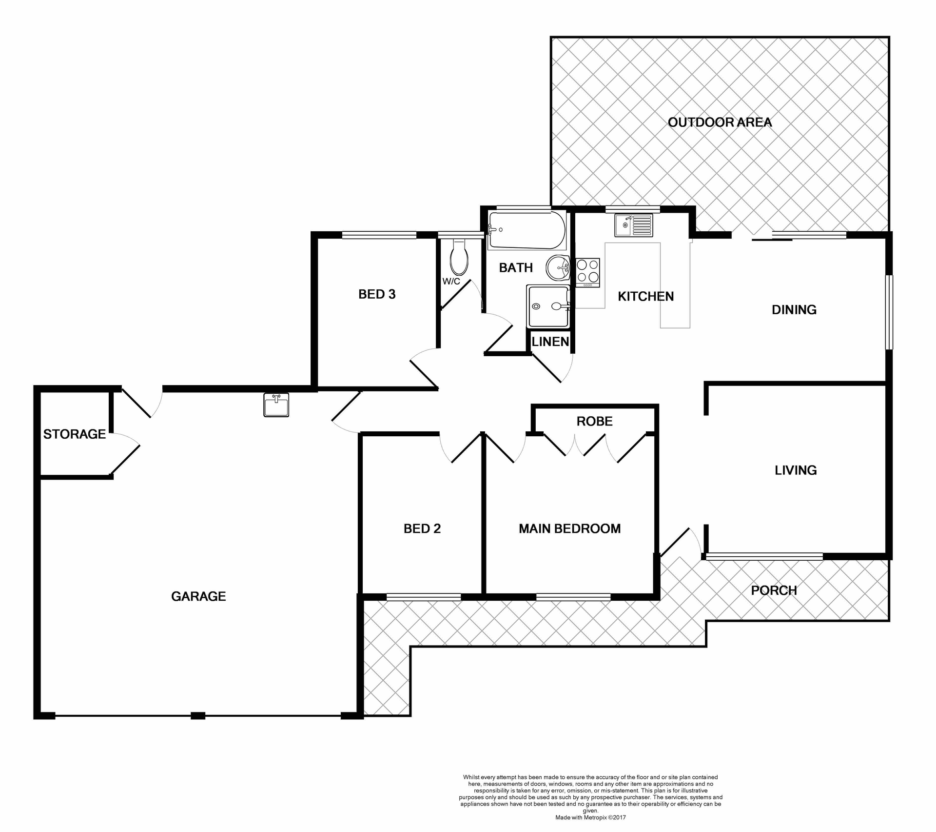
listing rooms 3
listing bathrooms 1
listing parking 2
Land: 491 sqm

Easy Family Living

Beyond it's attractive façade, this spacious single level home displays an abundance of light filled contemporary flair and quality inclusions. Situated in an extremely quiet street, surrounded by quality homes makes for the perfect location, where you are just a short walk to Thornton train station, local shops, schools, parks and sporting fields while still being just a easy 10 minute drive to under construction Greenhill's shopping centre.

Stepping inside the home to your right is the spacious lounge room which is kept comfortable with a split system air-conditioner. Floating floor boards lead us into the dining room where the kitchen is modern in design and offers stainless steel appliances, ample cupboard space and a dishwasher. All 3 bedrooms are a generous size and have ceiling fans for the warmer months, while the master bedroom offers a built in wardrobe. The bathroom is centrally located to the sleeping arrangements and features both a bathtub and shower plus a separate toilet for family convenience.

Externally the home is sitting pretty on a low maintenance 491 sqm parcel of land, offering a double garage with tool storage space, under cover alfresco area and a garden shed to store all the lawn equipment. This one is sure to tick all the boxes, be quick and enquire today for your inspection.

Agents

Nearby Schools

About thornton

median House price

850000

suburb growth

6.2%

median House rent

675

suburb rental yield

4.1%

Similar Properties

Source: Suburb Flyover Report Series, APM Pricefinder. PRD does not give any warranty in relation to the accuracy of the information contained in this report. If you intend to rely upon the information contained herein, you must take note that the Information, figures and projections have been provided by various sources and have not been verified by us. We have no belief one way or the other in relation to the accuracy of such information, figures and projections. PRD will not be liable for any loss or damage resulting from any statement, figure, calculation or any other information that you rely upon that is contained in the material. Prepared by PRD Research © All medians and volumes are calculated by PRD Research. Use with written permission only. All other responsibilities disclaimed.

Floorplan 1

Listing Enquiry

Listing Enquiry

1
2
3

Your Details

1
2
3

Your Enquiry

This site is protected by reCAPTCHA and the Google Privacy Policy and Terms of Service apply.

There was an error sending your enquiry. Please fill all required fields or try again later.

1
2
3

Thank you for your enquiry!

We look forward to assisting you.

Explore

PRD

 Connect with us

arrow