PRD Hunter Valley 103-107 Newcastle Road East Maitland, NSW, 2323 02 4934 2000
Request An Appraisal

86 Canterbury Drive
raworth
NSW, 2321

SOLD
listing rooms 5
listing bathrooms 3
listing parking 9
Land: 7168 sqm

"Oborn House" Morpeth Manor

Surrounded by a high, private, hedged boundary with a commanding street presence, OBORN HOUSE is a stunning Georgian-style home in Morpeth Manor. A grand presence and a strong sense of history can be felt the moment you enter through the iron gates and pass the gracious water fountain to this homes spectacular wide front veranda. Upon entering the cedar front door, the authenticity of the era continues and creates a special warm and inviting feel.

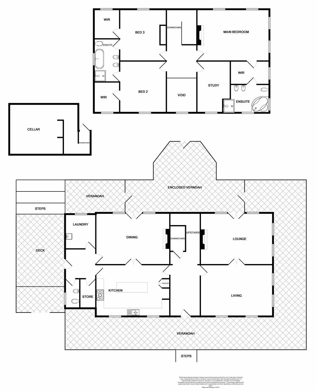
On the ground level, the heart of the home being the kitchen is gracious in design and delivers a stylish yet functional country-style chefs kitchen that has been well appointed with European appliances including dishwasher, ducted range hood, stainless steel six burner gas cooktop and electric fan forced oven. The formal dining room features a traditional timber mantle piece and an open gas fireplace while showcasing timber French doors that open onto a screened alfresco entertaining space. An elegant sitting room can also be found which connects into the informal living room, perfect for relaxing, reading or watching television. The kitchen leads out to the service area which features a tiled powder room, walk in storage and laundry/utility room.

A carpeted timber staircase leads us upstairs to the landing which is filled with an abundance of natural light and is the entry way to the bedrooms. To one side is the spacious master bedroom appointed with a open fireplace, a beautiful ensuite and a walk-in-robe. Across the landing are two king size bedrooms, both fitted with spacious walk-in robes and both connect to a shared, full size federation styled bathroom which features a claw-foot bath, shower and toilet.

A covered breezeway connects to the loft building which is effectively another living space, perfect for independent family members as it has its own entrance, 4.2 x 6.5 metre bedroom, 4.9 x 6.5 metre lounge room or office, triple-car garage, open plan kitchen/dining room, bathroom and home theatre room.
Ground level in the loft is every family's dream games room which has been fitted with a superb antique full size Snooker table and a well appointed timber bar area.

Externally, this beautiful home is sitting on a extravagant 7,168sqm parcel of extremely private land. A newly built 12 x 18 metre garage can also be found with 100mm concrete panel walls, it can easily house 6 cars and the family caravan making this every buyers dream garage. It also features a workshop area and a mezzanine for more storage space. During the warmer months, the fully enclosed sparkling in-ground pool area will become the whole family's casual lifestyle and for those who enjoy a game of tennis on the floodlit, synthetic tennis court.

Additional features include:

- Spacious study room
- Ducted air-conditioning throughout
- Ducted vacuum cleaner in both buildings
- 3x water tanks
- Downstairs wine cellar
- Remote controlled garages
- Built in ceiling speakers to main residence
- Built in BBQ kitchen in the pool house

Web Book
https://prdhuntervalley.reawebbooks.com.au/login-buyer/86-Canterbury-Drive-Raworth-2019-01-17

Agents

Nearby Schools

About raworth

median House price

915000

suburb growth

15.5%

median House rent

650

suburb rental yield

3.7%

Similar Properties

Source: Suburb Flyover Report Series, APM Pricefinder. PRD does not give any warranty in relation to the accuracy of the information contained in this report. If you intend to rely upon the information contained herein, you must take note that the Information, figures and projections have been provided by various sources and have not been verified by us. We have no belief one way or the other in relation to the accuracy of such information, figures and projections. PRD will not be liable for any loss or damage resulting from any statement, figure, calculation or any other information that you rely upon that is contained in the material. Prepared by PRD Research © All medians and volumes are calculated by PRD Research. Use with written permission only. All other responsibilities disclaimed.

Floorplan 1

Listing Enquiry

Listing Enquiry

1
2
3

Your Details

1
2
3

Your Enquiry

This site is protected by reCAPTCHA and the Google Privacy Policy and Terms of Service apply.

There was an error sending your enquiry. Please fill all required fields or try again later.

1
2
3

Thank you for your enquiry!

We look forward to assisting you.

Explore

PRD

 Connect with us

arrow