PRD Hunter Valley 103-107 Newcastle Road East Maitland, NSW, 2323 02 4934 2000
Request An Appraisal

62 Lindesay Street
east maitland
NSW, 2323

LEASED

listing rooms 4
listing bathrooms 2
listing parking 3
Land: 670 sqm

CHARACTER & CHARM

Situated only meters from Lawes St Shopping Village, Victoria St Train Station, Local Schools, East Maitland Golf Club & much more, you have an perfect location with amazing convenience. You are also only minutes to Greenhills shopping Center, The New Maitland Hospital Site & 25mins to Newcastle.
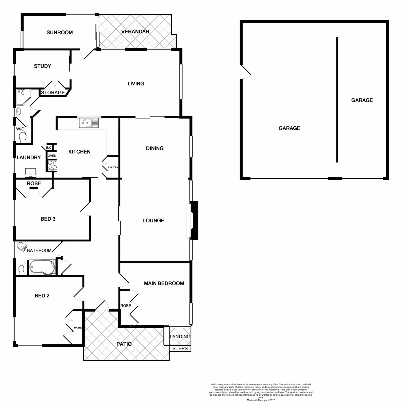
Arriving to this period solid brick home you are greeted with private gardens & plenty of character from the front. This continues inside with beautiful polished timber floors, high ceilings, tall skirting, stunning ornate cornice, premium light fittings & a wide hallway. The hallway will lead you to 3 fantastic size bedrooms each with built in robe & ceiling fan. These all share a generous size main bathroom with additional 2nd bathroom at the rear of the home. Further along is a grand formal living & dining room with in built gas fire place & stunning ceilings. This opens out onto a 2nd informal living with views over your great size yard & servery into the kitchen. Your solid timber kitchen has a beautiful Hampton style with abundance of cupboard & bench space. In addition to all of this you also have an optional 4th bedroom or study & a rear sun room overlooking the whole yard.
Outside the yard is very private with great sized grass area & gated side access to a huge 3 car garage. There is also plenty of additional secure parking.

"Whilst all care has been taken preparing this advertisement and the information contained herein has been obtained from sources, we believe to be reliable, PRDnationwide Hunter Valley does not warrant, represent or guarantee the accuracy, adequacy, or completeness of the information. PRDnationwide Hunter Valley accepts no liability for any loss or damage (whether caused by negligence or not) resulting from reliance on this information, and potential clients should make their own investigations."

Agents

Nearby Schools

About east maitland

median House price

810000

suburb growth

9.3%

median House rent

640

suburb rental yield

4.1%
Find Out More

Similar Properties

Source: Suburb Flyover Report Series, APM Pricefinder. PRD does not give any warranty in relation to the accuracy of the information contained in this report. If you intend to rely upon the information contained herein, you must take note that the Information, figures and projections have been provided by various sources and have not been verified by us. We have no belief one way or the other in relation to the accuracy of such information, figures and projections. PRD will not be liable for any loss or damage resulting from any statement, figure, calculation or any other information that you rely upon that is contained in the material. Prepared by PRD Research © All medians and volumes are calculated by PRD Research. Use with written permission only. All other responsibilities disclaimed.

Listing Enquiry

Listing Enquiry

1
2
3

Your Details

1
2
3

Your Enquiry

This site is protected by reCAPTCHA and the Google Privacy Policy and Terms of Service apply.

There was an error sending your enquiry. Please fill all required fields or try again later.

1
2
3

Thank you for your enquiry!

We look forward to assisting you.

Explore

PRD

 Connect with us

arrow